Vuokrataan toimistotilat - Oulu
Mäkelininkatu 43, Keskusta, 90100 Oulu #10831272
Osoite
Mäkelininkatu 43, 90100 Oulu
Tilatyyppi
Toimistotilaa
159 m2
Muuta
Vuokrataan toimistotilaa näkyvältä paikalta Mäkelininkadun ja Saaristonkadun kulmasta kävelymatkan päästä keskustasta.
Kiinteistö on peruskorjattu 2015-2016.
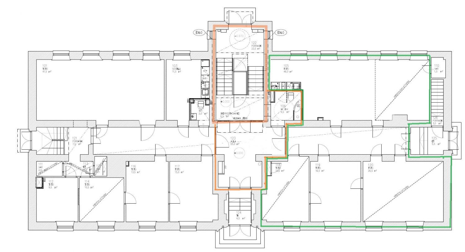
1. kerroksen huoneiston pinta-ala on 159 jyvm2. Talossa on hissi.
Huoneistossa on iso keittö- ja neukkaritila ja lisäksi siinä on 3 isompaa toimistohuonetta sekä esteetön wc eteisaulassa. Huoneissa on tekstiilipalalaatta.
- Kellarikerroksessa sosiaalitilat sekä pukukaappeja.
Kerroksessa on yhteinen eteisaulatila toisen toimijan kanssa. Eteisaulassa yhteinen esteetön wc. Molemmille on omat sisäänkäyntiovet eteisestä.
Rakennuksessa on koneellinen tulo- ja poistoilmanvaihto tuloilman viilennyksellä.
Ullakkokerroksesta voi vuokrata erilliskorvauksella neuvottelutilaa. (Kiinteistössä on hissi, esteetön kulku).
Huoneisto vapautuu 1.10.2025.
Vuokra 2703,00 eur/kk (17,00e/m2) + alv
Vuokra sidotaan indeksiin, minimikorotus 3% vuodessa.
Vesimaksu 5e/hlö/kk (tasataan vuosittain)
Sähkömaksu mittauksen mukaan vuokranantajalle.
Lisäksi vuokralainen vastaa 1/6 osalla porraskäytävän ja eteisaulan siivouksesta.
Sisäpihalta vuokrattavissa 1-2 kpl pistokkeellisia autopaikkoja 60e/kk/kpl + alv sekä läheisen kerrostalon kellarin autohallista 85- 90,00 e/kk.
Kellarista mahdollisuus vuokrata varastotila (n. 7,5 m2).
Kiinteistö on peruskorjattu 2015-2016.
1. kerroksen huoneiston pinta-ala on 159 jyvm2. Talossa on hissi.
Huoneistossa on iso keittö- ja neukkaritila ja lisäksi siinä on 3 isompaa toimistohuonetta sekä esteetön wc eteisaulassa. Huoneissa on tekstiilipalalaatta.
- Kellarikerroksessa sosiaalitilat sekä pukukaappeja.
Kerroksessa on yhteinen eteisaulatila toisen toimijan kanssa. Eteisaulassa yhteinen esteetön wc. Molemmille on omat sisäänkäyntiovet eteisestä.
Rakennuksessa on koneellinen tulo- ja poistoilmanvaihto tuloilman viilennyksellä.
Ullakkokerroksesta voi vuokrata erilliskorvauksella neuvottelutilaa. (Kiinteistössä on hissi, esteetön kulku).
Huoneisto vapautuu 1.10.2025.
Vuokra 2703,00 eur/kk (17,00e/m2) + alv
Vuokra sidotaan indeksiin, minimikorotus 3% vuodessa.
Vesimaksu 5e/hlö/kk (tasataan vuosittain)
Sähkömaksu mittauksen mukaan vuokranantajalle.
Lisäksi vuokralainen vastaa 1/6 osalla porraskäytävän ja eteisaulan siivouksesta.
Sisäpihalta vuokrattavissa 1-2 kpl pistokkeellisia autopaikkoja 60e/kk/kpl + alv sekä läheisen kerrostalon kellarin autohallista 85- 90,00 e/kk.
Kellarista mahdollisuus vuokrata varastotila (n. 7,5 m2).
Vapautuu
Kysy
Kerros
1
Ota yhteyttä
Catella Property Oy
Kirkkokatu 6, 5. krs, 90100 OULU
Näytä puhelinnumero
010 5220 100
Pekka Laurila-Harju
Näytä puhelinnumero
010 5220 603
Pyydä lisätietoa
