Vuokrataan - Seinäjoki
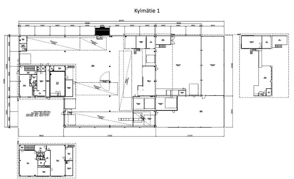
Kylmätie 1, 60100 Seinäjoki #10831196
Roveksen teollisuusalueelta vuokrattavissa tai myytävissä teollisuuskiinteistö. Tilat sijaitsevat kahdessa eri rakennuksessa kahdella eri tontilla. Kokonaisuudessa on hallitilaa n. 4700 m2 ja kylmää varastotilaa n. 370 m2.
Viereiset tontit ovat myös myynnissä ja käyttämätöntä rakennusoikeutta on näillä neljällä tontilla yhteensä n. 14.900 kem2.
Isomman hallin vapaa korkeus on n. 5 metriä ja sieltä löytyy useampia nostimia, paineilmaverkosto ja kompressori. Nosto-ovia on useampia ja sisään pääsee ajamaan kuorma-autolla. Tilasta löytyy useampia kohdepoistoja, rasvamonttu, lattiakaivot ovien edessä. Toisesta rakennuksesta löytyy lisäksi pakastehalli jossa lämpötilan saa laskettua -40 asteeseen. Kokonaisuudessa on myös oma lähettämö ja kylmää varastotilaa.
Tilat ovat aiemmin olleet kylmälaitevalmistajan käytössä ja parhaimmillaan tiloissa on työskennellyt 60 hlö.
Rakennukset on rakennettu 1987-2000 aikana ja niitä on laajennettu ja peruskorjattu useampaan kertaan. Julkisivu on saneerattu 2021. Lämmitysmuotona öljy ja sähkö.
Lisätiedot: 045 610 2752 tai mikko.wallgren@rhg.fi
Lisää kohteita www.rhg.fi
RHG Real Estate
Hämeenkatu 2 B20, 20500 Turku
Näytä puhelinnumero
020 734 4020
Mikko Wallgren
Työntekijä
Näytä puhelinnumero
045 6102 752
