Myydään toimistotilat, liiketilat, näyttelytilat, tuotantotilat, varastotilat, työtilat, autotalli/-hallitilat, muut tilat - Oulu
Kelatie 12, 90620 Oulu #10831070
Ennakkomyynnissä nyt suositulta Ruskon alueelta 3 kpl hallitiloja!
Arvioitu valmistuminen alkuvuodesta 2026.
Osoite
Kelatie 12, 90620 Oulu
Tilatyyppi
Toimistotilaa
10,6 m2
Liiketilaa
115 - 350 m2
Näyttelytilaa
115 - 350 m2
Tuotantotilaa
115 - 350 m2
Varastotilaa
115 - 350 m2
Työtilaa
128 - 394 m2
Autotalli/-hallitilaa
115 - 350 m2
Muuta tilaa
2,4 - 7,2 m2
Yhteensä
128 - 394 m2
Tilajako
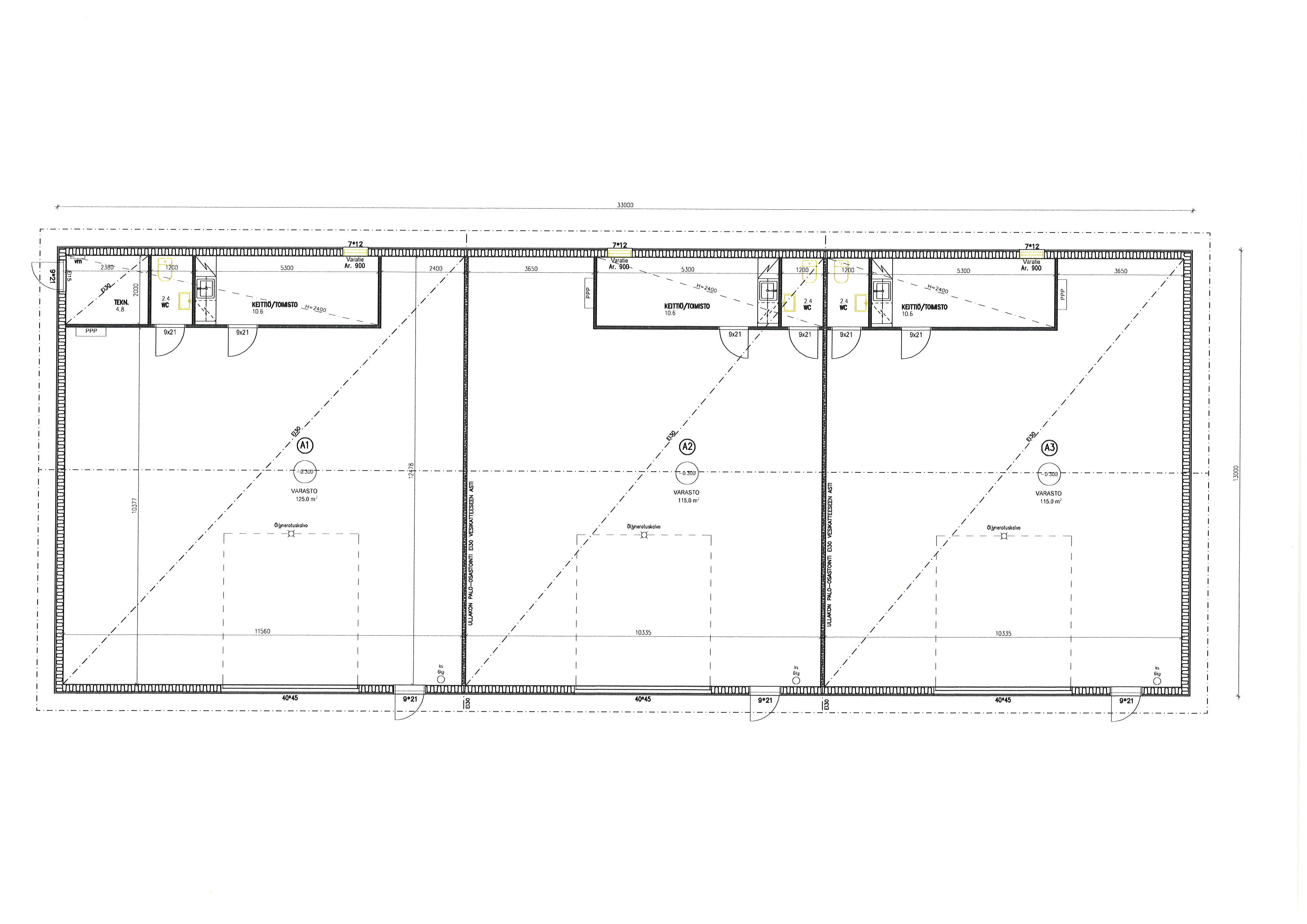
Halli A1 138m², hallit A2 ja A3 128m²/kpl
Pohjapiirros
Myyntihinta
Velaton hinta halleille A2 ja A3 on 172.544€ ja hallille A1 186.024€. Yhtiölainaosuus n. 50%.
Kiinteistö
Oulun kaupungin vuokratontti, vuokra-aika 31.12. 2057 saakka.
Muuta
Hallitilat ovat kooltaan 128m² ja 138m². Voit ostaa yhden hallitilan tai vaikka koko rakennuksen.
Sisätilojen tilaratkaisuihin voit vielä myös itse vaikuttaa.
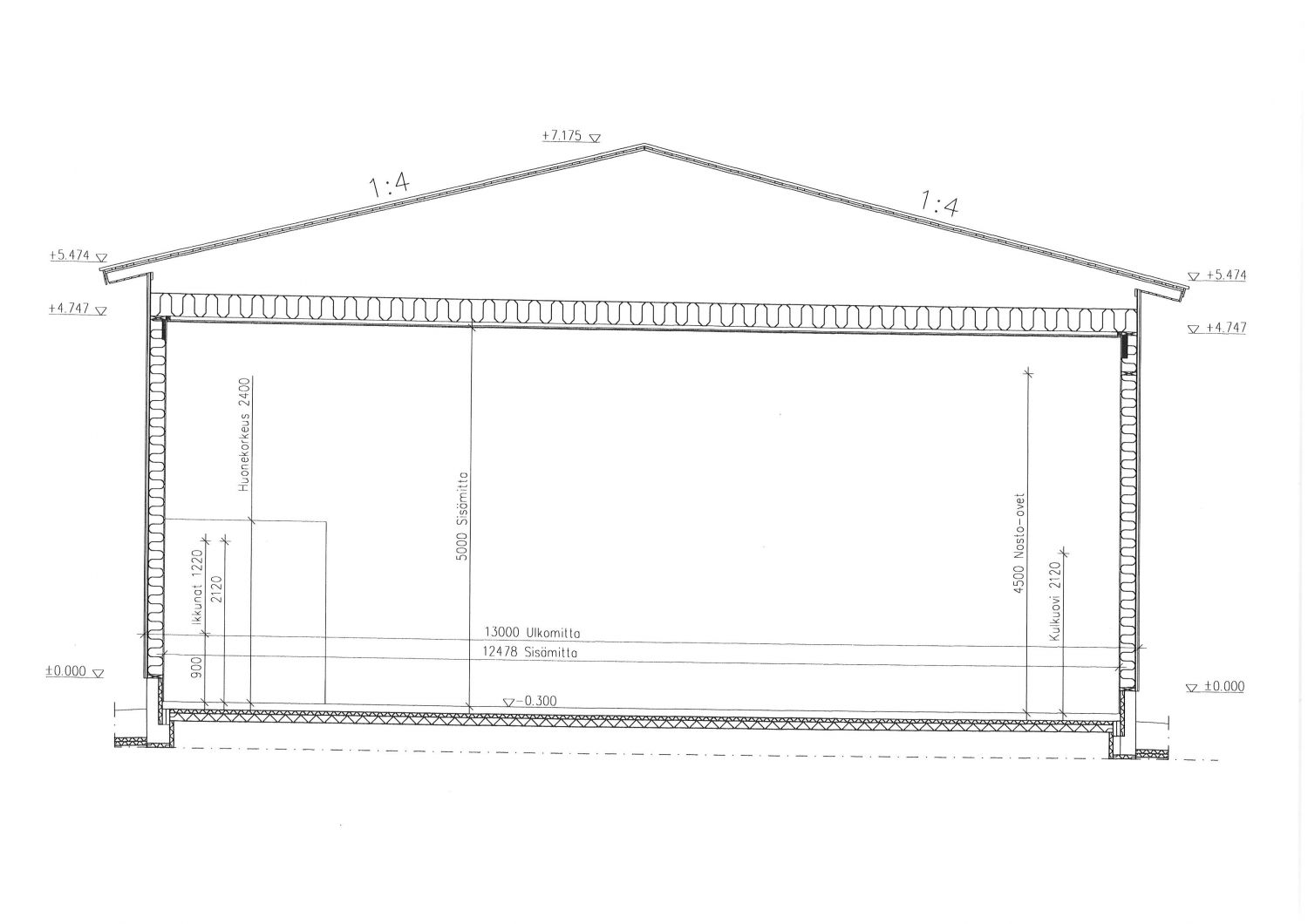
Hallitilan vapaa korkeus on n.5m, nosto-oven leveys 4m ja korkeus 4,5m.
Lämmitysmuotona kaukolämpö ja ilmavaihdosta huolehtii huippuimuri.
Sisätilojen tilaratkaisuihin voit vielä myös itse vaikuttaa.
Hallitilan vapaa korkeus on n.5m, nosto-oven leveys 4m ja korkeus 4,5m.
Lämmitysmuotona kaukolämpö ja ilmavaihdosta huolehtii huippuimuri.
Vapautuu
Arvioitu valmistuminen Q1 / 2026, rakentaminen kestää n. 6kk.
Rakennusvuosi
2025
Energiatehokkuusluokka
C2018
E-luku
156 kWhE/m²/vuosi
Ota yhteyttä
Pohjois-Suomen Toimitilat Oy
Sepänkatu 20, 90100 Oulu
Pekka Valkola
Näytä puhelinnumero
044 311 0555
Pyydä lisätietoa
