Vuokrataan toimistotilat, liiketilat, varastotilat, työtilat, autotalli/-hallitilat - Nurmijärvi
Yrittäjänkulma 5, 01800 Nurmijärvi #10830777
Vuokrattavana laadukas hallirakennus moneen käyttöön! Alkaen 3'495 €/kk + alv (norm.6’990 €/kk + alv (kokonaisuus))
Osoite
Yrittäjänkulma 5, 01800 Nurmijärvi
Tilatyyppi
Toimistotilaa
140 m2
Liiketilaa
240 m2
Varastotilaa
84 m2
Työtilaa
591 m2
Autotalli/-hallitilaa
84 - 591 m2
Yhteensä
84 - 591 m2
Vuokra
Alkaen 3495 €/kk + alv (kokonaisuus)
Vuokraan sisältyy lämpö
Muuta
Nurmijärven Klaukkalassa teollisuusalueella on vuokrattavana iso hallirakennus. Halli on ollut autovaraosia myyvän yrityksen käytössä pitkään. Tilat sopivat mainiosti myymäläkäytön lisäksi esimerkiksi monenlaiseen varastointiin.
Huipputarjous! 3 ensimmäistä kk -50% normaalivuokrahinnasta!
Tiloja tarjolla seuraavasti;
Katutason myymälä 240 m² ja toimistotila 2 krs noin 140 m² kuukausivuokrahinta tarjoushintaan 1495 €/kk + alv (norm. 2’990 € + alv)
Hallitila noin 84 m² kuukausivuokrahinta tarjoushintaan 495 €/kk +alv (norm. 990 € + alv)
Autopesulatila noin 127 m² kuukausivuokrahinta 1'998 € + alv
Mahdollisuus myös vuokrata kokonaisuutena (kaikki vapautuvat tilat) hintaan 3495 €/kk + alv kolme ensimmäistä kuukautta (tarjous ei koske autopesulahallia, kaikkien tilojen yhteishinta 3kk jälkeen norm. 6’990 €/kk + alv).
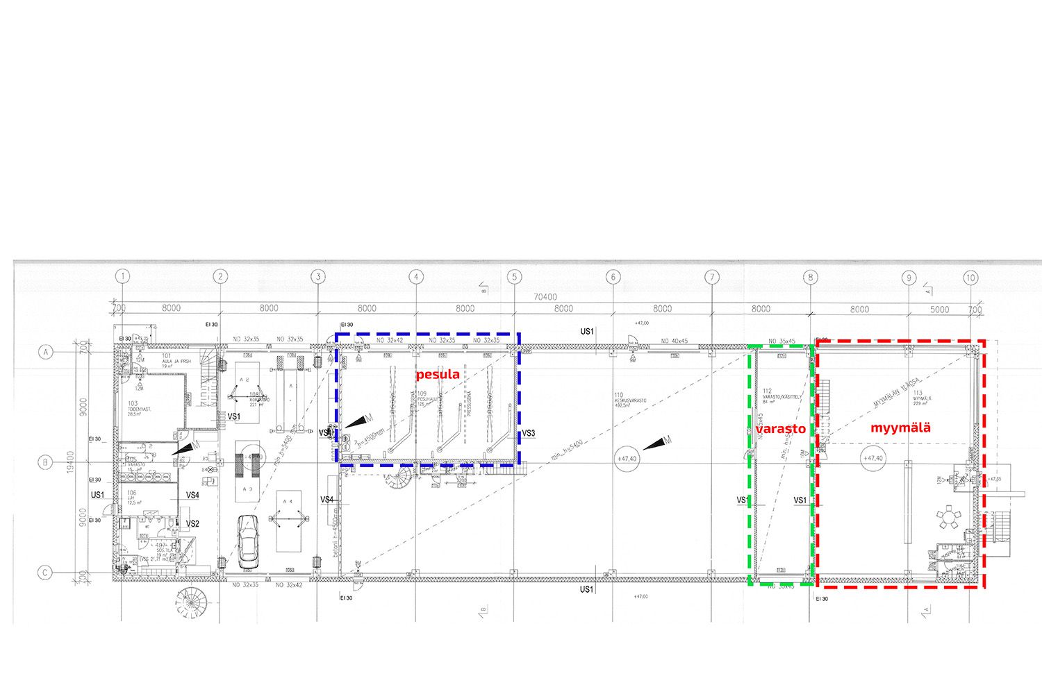
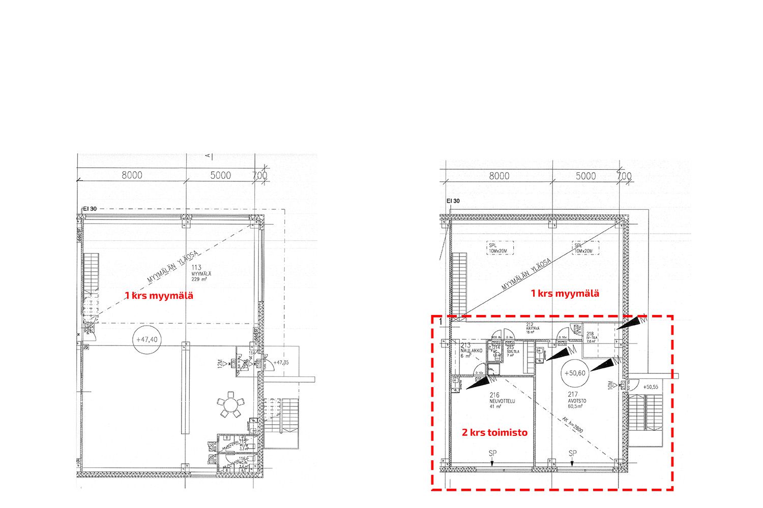
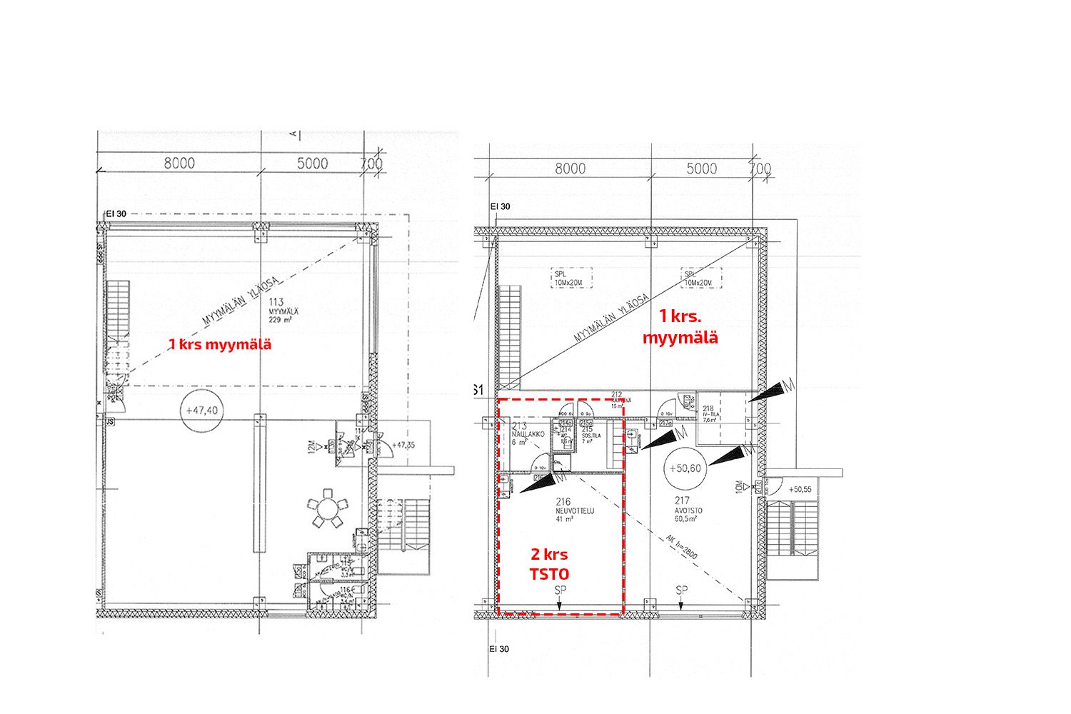
Myymälä on hyväkuntoinen ja valoisa 240 m², jossa isot ikkunat ja täten hyvä näkyvyys! Pohjakuvaan myymälän ja toimiston tila merkittynä punaisella katkoviivalla. Takaosasta löytyy lisäksi wc-tila ja vesipiste. Myymälätilan yläpuolella lisäksi toimistotilaa 140 m². Toimiston yhteydessä minikeittiö, suihku ja wc-tilat.
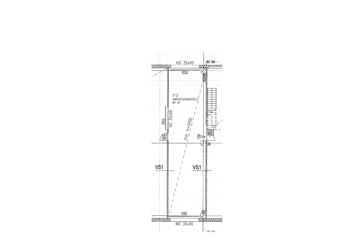
Myymälän vieressä korkea varastohallitila pinta-alaltaan 84 m² (pohjakuvassa vihreällä katkoviivalla). Hallin korkeus vaihtelee 6-8 metrin välillä ja tilan leveys on 4,5 metriä sekä pituus 18,5 metriä. Hallitila on läpiajettava ja nosto-ovien koko on L3,5 m x K 4,5 m. Hallista lisäksi sisäkautta kulku myymälätilaan (isot pariovet). Halli soveltuu hyvin moneen varastointiin eikä siellä ole vesipistettä eikä lattiakaivoja.
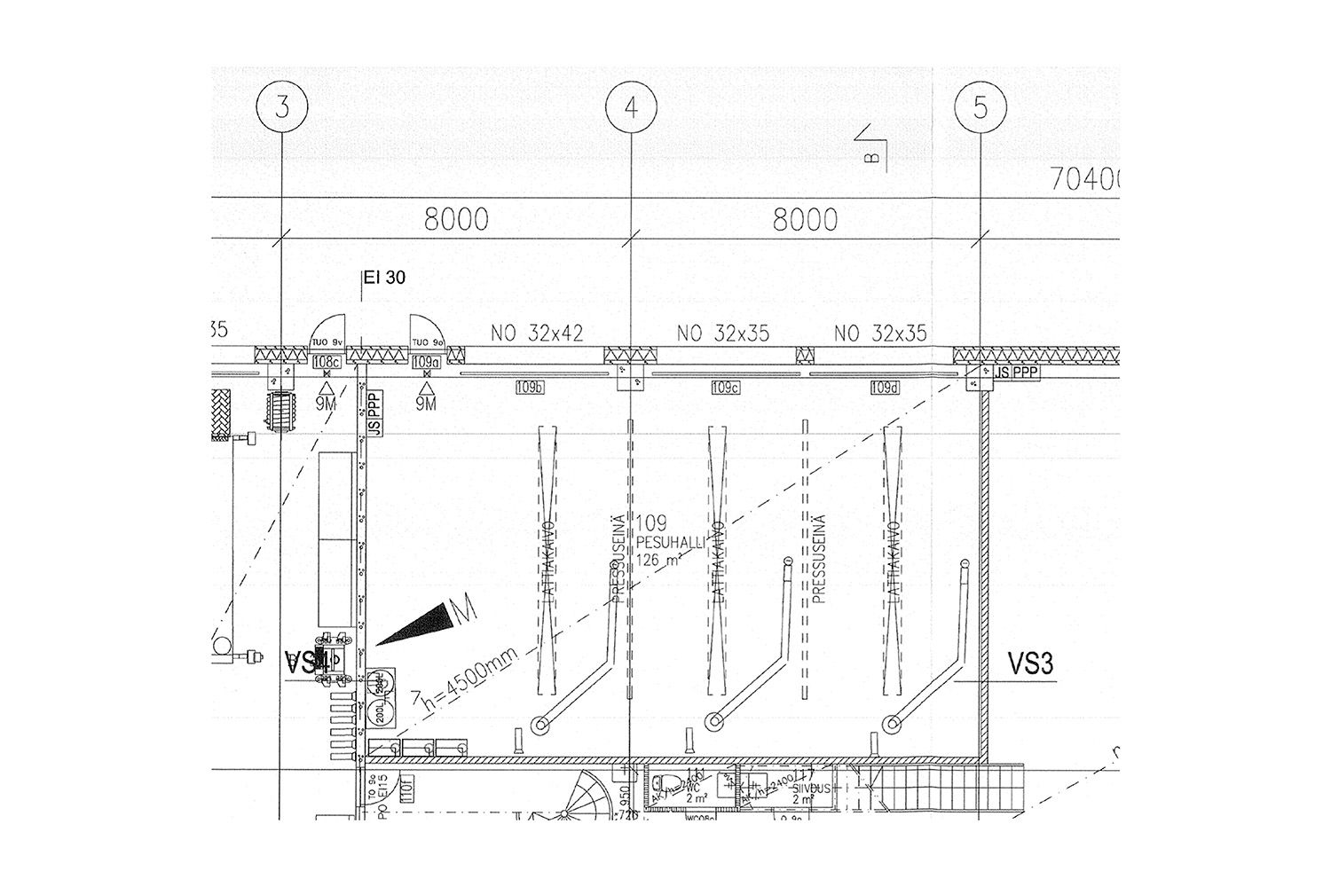
Samassa rakennuksessa myös vuokrattavana iso autopesulahalli (pohjakuvassa sinisellä katkoviivalla). Halli on pinta-alaltaan 127 m² ja siellä on hiekan erottavat lattiakaivot jokaisessa pesulatilassa. Pesuhallin tiloissa edellisen vuokralaisen kustannuksellaan asennuttama poleteilla toimiva pesulaitteisto, joka on mahdollisesti ostettavissa. Pesutilat ovat tilavia ja niiden välissä on korkeat väliseinät. Tilaan on välikkökohtaiset nosto-ovet (L3,2 m x K3,5 m; L3,2 m x K3,5 m ja L3,2 m x K4,2 m) ja päädyssä erillinen käyntiovi.
Vuonna 2011 rakennetussa betonielementtihalli-hallissa on lämmitysmuotona kaukolämpö. Lämmitys sisältyy vuokraan. Vuokralainen vastaa sähkö- ja vesimaksuista sekä jätehuollon kuluista että järjestelyistä. Pesuhallin osalta vuokralainen vastaa lisäksi tilojen ylläpidosta (valaisinhuolto, ovihuolto ja korjaukset sekä hiekanerotuskaivojen ja öljynerotuskaivon tyhjennyksen (min. 1 krt/vuosi)).
Tilat vapautuvat viimeistään joulukuun 1. 2025 ja aikaisemmasta aloitusajankohdasta voidaan tarvittaessa neuvotella.
Rakennuksen piha on asfaltoitu ja aidattu. Aidassa on sähkötoiminen portti. Vuokralaiselle kuuluu pari autopaikkaa pihassa.
Tilat voidaan vuokrata erikseen tai kokonaisuutena – monien mahdollisuuksien tila vuokrattavana!
Kohdetiedot
Sijainti
Katuosoite: Yrittäjänkulma 5, 01800 Nurmijärvi
Kaupunginosa: Klaukkala
Ympäristö: Teollisuusalue
Rakennus/huoneisto
Pinta-ala: 240 m² + 140 m² + 84 m² + 127 m²
Huoneistoselitelmä: Myymälä, toimisto, varastotila ja pesulahalli
Kunto, varusteet ja palvelut: Hyväkuntoiset tilat. Nosto-ovia, lattiakaivoja, toimistotiloja, minikeittiö, wc-tiloja sekä hyvä valaistus
Korkeus: 6 metriä
Vapautuu: 1.12.2025 (viimeistään)
Pysäköinti: Erikseen sovitusti pihassa
Vuokrahinta ja kulut
Kuukausivuokra: Alkaen 3’495 €/kk + alv (norm. 6’990 €/kk + alv (kokonaisuus))
Vesimaksu: Vuokralaisen lukuun
Sähkö: Vuokralaisen lukuun mittauksen mukaan
Lämmitys: Sisältyy vuokraan
Jätehuolto: Vuokralainen vastaa kuluista ja järjestelyistä
Muut ehdot: Minimisopimuskausi 12 kk, vakuus 3 kk:n vuokraa vastaava summa ja luottotietojen on oltava kunnossa
Huipputarjous! 3 ensimmäistä kk -50% normaalivuokrahinnasta!
Tiloja tarjolla seuraavasti;
Katutason myymälä 240 m² ja toimistotila 2 krs noin 140 m² kuukausivuokrahinta tarjoushintaan 1495 €/kk + alv (norm. 2’990 € + alv)
Hallitila noin 84 m² kuukausivuokrahinta tarjoushintaan 495 €/kk +alv (norm. 990 € + alv)
Autopesulatila noin 127 m² kuukausivuokrahinta 1'998 € + alv
Mahdollisuus myös vuokrata kokonaisuutena (kaikki vapautuvat tilat) hintaan 3495 €/kk + alv kolme ensimmäistä kuukautta (tarjous ei koske autopesulahallia, kaikkien tilojen yhteishinta 3kk jälkeen norm. 6’990 €/kk + alv).
Myymälä on hyväkuntoinen ja valoisa 240 m², jossa isot ikkunat ja täten hyvä näkyvyys! Pohjakuvaan myymälän ja toimiston tila merkittynä punaisella katkoviivalla. Takaosasta löytyy lisäksi wc-tila ja vesipiste. Myymälätilan yläpuolella lisäksi toimistotilaa 140 m². Toimiston yhteydessä minikeittiö, suihku ja wc-tilat.
Myymälän vieressä korkea varastohallitila pinta-alaltaan 84 m² (pohjakuvassa vihreällä katkoviivalla). Hallin korkeus vaihtelee 6-8 metrin välillä ja tilan leveys on 4,5 metriä sekä pituus 18,5 metriä. Hallitila on läpiajettava ja nosto-ovien koko on L3,5 m x K 4,5 m. Hallista lisäksi sisäkautta kulku myymälätilaan (isot pariovet). Halli soveltuu hyvin moneen varastointiin eikä siellä ole vesipistettä eikä lattiakaivoja.
Samassa rakennuksessa myös vuokrattavana iso autopesulahalli (pohjakuvassa sinisellä katkoviivalla). Halli on pinta-alaltaan 127 m² ja siellä on hiekan erottavat lattiakaivot jokaisessa pesulatilassa. Pesuhallin tiloissa edellisen vuokralaisen kustannuksellaan asennuttama poleteilla toimiva pesulaitteisto, joka on mahdollisesti ostettavissa. Pesutilat ovat tilavia ja niiden välissä on korkeat väliseinät. Tilaan on välikkökohtaiset nosto-ovet (L3,2 m x K3,5 m; L3,2 m x K3,5 m ja L3,2 m x K4,2 m) ja päädyssä erillinen käyntiovi.
Vuonna 2011 rakennetussa betonielementtihalli-hallissa on lämmitysmuotona kaukolämpö. Lämmitys sisältyy vuokraan. Vuokralainen vastaa sähkö- ja vesimaksuista sekä jätehuollon kuluista että järjestelyistä. Pesuhallin osalta vuokralainen vastaa lisäksi tilojen ylläpidosta (valaisinhuolto, ovihuolto ja korjaukset sekä hiekanerotuskaivojen ja öljynerotuskaivon tyhjennyksen (min. 1 krt/vuosi)).
Tilat vapautuvat viimeistään joulukuun 1. 2025 ja aikaisemmasta aloitusajankohdasta voidaan tarvittaessa neuvotella.
Rakennuksen piha on asfaltoitu ja aidattu. Aidassa on sähkötoiminen portti. Vuokralaiselle kuuluu pari autopaikkaa pihassa.
Tilat voidaan vuokrata erikseen tai kokonaisuutena – monien mahdollisuuksien tila vuokrattavana!
Kohdetiedot
Sijainti
Katuosoite: Yrittäjänkulma 5, 01800 Nurmijärvi
Kaupunginosa: Klaukkala
Ympäristö: Teollisuusalue
Rakennus/huoneisto
Pinta-ala: 240 m² + 140 m² + 84 m² + 127 m²
Huoneistoselitelmä: Myymälä, toimisto, varastotila ja pesulahalli
Kunto, varusteet ja palvelut: Hyväkuntoiset tilat. Nosto-ovia, lattiakaivoja, toimistotiloja, minikeittiö, wc-tiloja sekä hyvä valaistus
Korkeus: 6 metriä
Vapautuu: 1.12.2025 (viimeistään)
Pysäköinti: Erikseen sovitusti pihassa
Vuokrahinta ja kulut
Kuukausivuokra: Alkaen 3’495 €/kk + alv (norm. 6’990 €/kk + alv (kokonaisuus))
Vesimaksu: Vuokralaisen lukuun
Sähkö: Vuokralaisen lukuun mittauksen mukaan
Lämmitys: Sisältyy vuokraan
Jätehuolto: Vuokralainen vastaa kuluista ja järjestelyistä
Muut ehdot: Minimisopimuskausi 12 kk, vakuus 3 kk:n vuokraa vastaava summa ja luottotietojen on oltava kunnossa
Vapautuu
Heti
Ota yhteyttä
Tilat.fi
KTM, LKV Antti Soivio
Näytä puhelinnumero
0400 446 553
OTM, LKV Riikka Tuominen
Näytä puhelinnumero
0400 551 790
KTM, LKV Maria-Sofia Puhakka
Näytä puhelinnumero
0400-150330
MBA Susanne Wallenius
Näytä puhelinnumero
0400-128877
Yrityksen virallinen nimi: LKV Tilat.fi Oy.
Toimitilojen välitykseen erikoistunut yritys.
Pyydä lisätietoa
