Vuokrataan toimistotilat - Helsinki
Fredrikinkatu 47, Kamppi, 00100 Helsinki #10830710
Kustannustehokasta toimistotilaa keskeisellä sijainnilla
Osoite
Fredrikinkatu 47, 00100 Helsinki
Tilatyyppi
Toimistotilaa
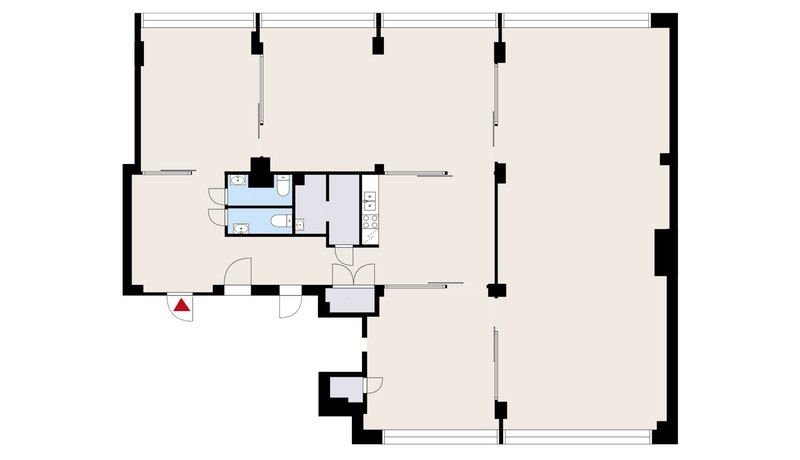
230 m2
Muuta
Vuokrattavana 230m2 toimistotila osoitteessa Fredrikinkatu 47. Tila on joustavasti muunneltavissa ja sen pohjaratkaisu sekä viimeistely voidaan toteuttaa vuokralaisen toiveiden mukaisiksi.
Kohteessa on tehty perusteellinen ilmanvaihto- ja jäähdytysremontti 2000-luvulla, mikä parantaa sisäilman laatua ja työskentelymukavuutta. Viimeisimpänä on uudistettu pääsisäänkäynnin ilmettä sekä opasteita. Kiinteistö toimii kaukolämmön lisäksi täysin uusiutuvalla energialla, jossa yhdistyvät tuuli-, vesi- ja aurinkosähkö. Tämä tarjoaa vuokralaiselle mahdollisuuden pienentää tilankäytön hiilijalanjälkeä ja vastata vastuullisuustavoitteisiin.
Kiinteistössä on lisätilaratkaisuja, kuten 10â50 m² varastoja eri käyttötarkoituksiin sekä tavarahissi. Autoilijoille ja pyöräilijöille on tarjolla suojaisia säilytysmahdollisuuksia kaksikerroksisessa parkkihallissa ja sisäpihalla. Työmatkapyöräilijöiden käyttöön on lisäksi suihkutilat. Kohteessa on ollut pitkäaikaisia ja tyytyväisiä vuokralaisia, mikä kertoo tilojen toimivuudesta ja sijainnin vetovoimasta.
Alueella on erittäin monipuolinen palvelutarjonta. Lounas- ja afterwork-vaihtoehtoja löytyy runsaasti, ja työyhteisöt löytävät helposti itselleen sopivat paikat ruokailuun ja virkistäytymiseen. Kampin metroasema ja useiden raitiovaunujen pysäkit (mm. linjat 1, 3, 6, 7, 7H ja 9) sijaitsevat noin 300 metrin säteellä. Myös bussiliikenteen yhteydet Kampista, Fredrikinkadulta ja Bulevardilta ovat erinomaiset.
Tervetuloa tutustumaan, varaathan välittäjältä oman esittelyaikasi. Voit kysyä meiltä myös muita sopivia vaihtoehtoja, kauttamme löydät juuri Teidän tarpeisiinne sopivat tilat. Palvelumme on tilanhakijalle veloitukseton!
Kohteessa on tehty perusteellinen ilmanvaihto- ja jäähdytysremontti 2000-luvulla, mikä parantaa sisäilman laatua ja työskentelymukavuutta. Viimeisimpänä on uudistettu pääsisäänkäynnin ilmettä sekä opasteita. Kiinteistö toimii kaukolämmön lisäksi täysin uusiutuvalla energialla, jossa yhdistyvät tuuli-, vesi- ja aurinkosähkö. Tämä tarjoaa vuokralaiselle mahdollisuuden pienentää tilankäytön hiilijalanjälkeä ja vastata vastuullisuustavoitteisiin.
Kiinteistössä on lisätilaratkaisuja, kuten 10â50 m² varastoja eri käyttötarkoituksiin sekä tavarahissi. Autoilijoille ja pyöräilijöille on tarjolla suojaisia säilytysmahdollisuuksia kaksikerroksisessa parkkihallissa ja sisäpihalla. Työmatkapyöräilijöiden käyttöön on lisäksi suihkutilat. Kohteessa on ollut pitkäaikaisia ja tyytyväisiä vuokralaisia, mikä kertoo tilojen toimivuudesta ja sijainnin vetovoimasta.
Alueella on erittäin monipuolinen palvelutarjonta. Lounas- ja afterwork-vaihtoehtoja löytyy runsaasti, ja työyhteisöt löytävät helposti itselleen sopivat paikat ruokailuun ja virkistäytymiseen. Kampin metroasema ja useiden raitiovaunujen pysäkit (mm. linjat 1, 3, 6, 7, 7H ja 9) sijaitsevat noin 300 metrin säteellä. Myös bussiliikenteen yhteydet Kampista, Fredrikinkadulta ja Bulevardilta ovat erinomaiset.
Tervetuloa tutustumaan, varaathan välittäjältä oman esittelyaikasi. Voit kysyä meiltä myös muita sopivia vaihtoehtoja, kauttamme löydät juuri Teidän tarpeisiinne sopivat tilat. Palvelumme on tilanhakijalle veloitukseton!
Vapautuu
Kysy
Kerros
5
Ota yhteyttä
Tuloskiinteistöt Oy
Rikhardinkatu 2 B 5, 00130 Helsinki
Näytä puhelinnumero
(09) 6841 620
Nina Meyke
Commercial Real Estate Advisor
Näytä puhelinnumero
+358 50 466 1519
Otto Ahtola
Commercial Real Estate Advisor
Näytä puhelinnumero
+358 40 042 2830
Pyydä lisätietoa
