Vuokrataan toimistotilat - Oulu
Kasarmintie 15, Intiö, 90130 Oulu #10830690
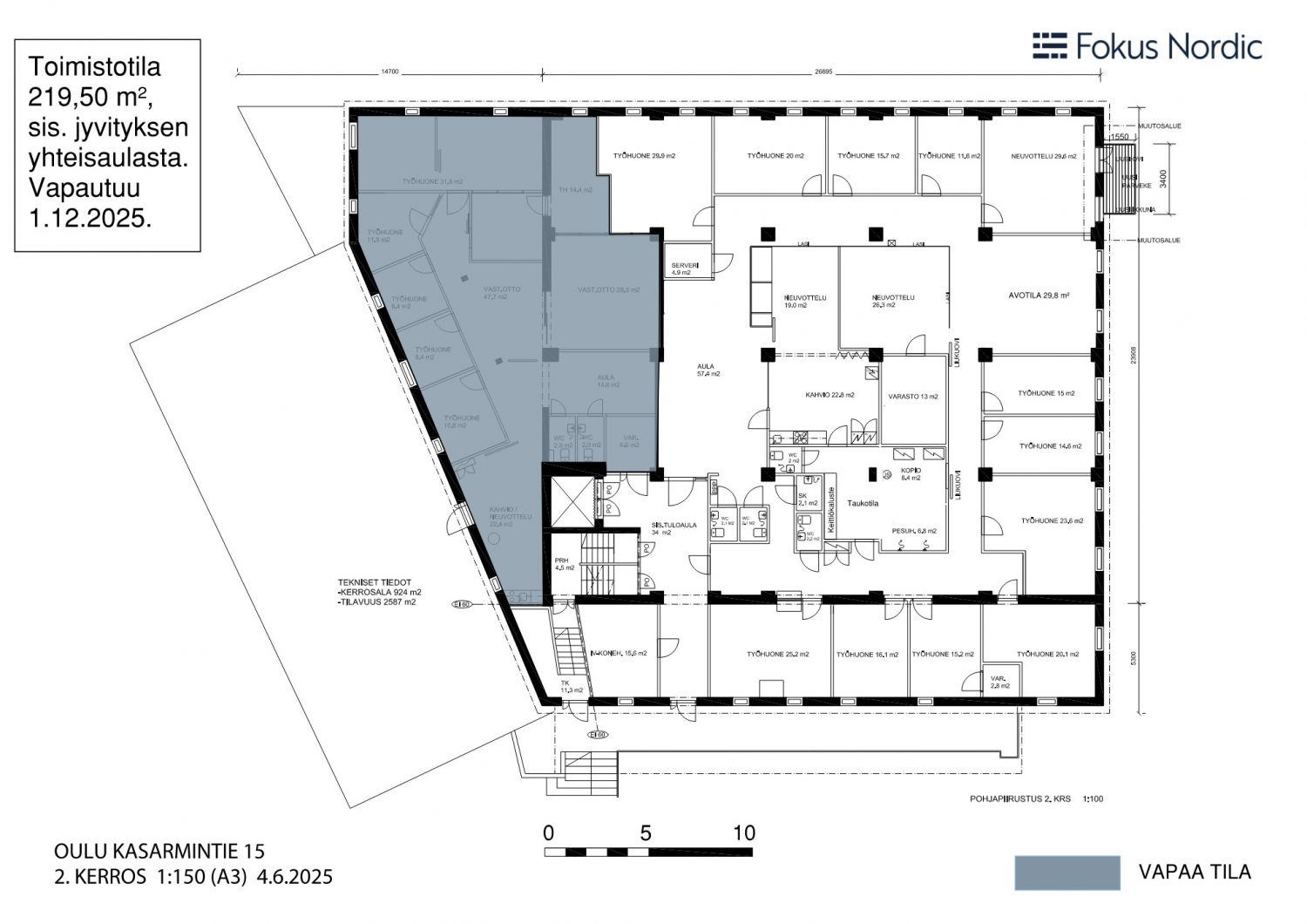
Vuokrataan upealta sijainnilta 219,5 m²:n toimistotila, sis. jyvityksen yhteisaulasta. Keittiö ja sosiaalitilat. Vapaa!
Osa valokuvista on virtuaalistailattuja kuvia tilasta. Kurkista tilaan kalus...
Osoite
Kasarmintie 15, 90130 Oulu
Tilatyyppi
Toimistotilaa
219,5 m2
Kiinteistö
Uniikkia toimistotilaa Oulusta !
Vapaata toimistotilaa vuokrattavana keskusta-alueella Oulujoen rannalla uniikissa vuonna 1926 valmistuneessa kuusikerroksisessa toimistorakennuksessa. Rakennus on saneerattu toimistokäyttöön vuonna 2005. Kohteen kokonaisala on 3069 m2.
Uniikki rakennus sekä sijainti lähellä keskustaa Oulujoen rannalla tekevät kohteesta mielenkiintoisen ja hyvät näköalat luovat osaltaan miellyttävää työympäristöä.
Rakennuksessa on koneellinen ilmanvaihto. Osassa toimistoti...
Vapaata toimistotilaa vuokrattavana keskusta-alueella Oulujoen rannalla uniikissa vuonna 1926 valmistuneessa kuusikerroksisessa toimistorakennuksessa. Rakennus on saneerattu toimistokäyttöön vuonna 2005. Kohteen kokonaisala on 3069 m2.
Uniikki rakennus sekä sijainti lähellä keskustaa Oulujoen rannalla tekevät kohteesta mielenkiintoisen ja hyvät näköalat luovat osaltaan miellyttävää työympäristöä.
Rakennuksessa on koneellinen ilmanvaihto. Osassa toimistoti...
Sijainti
Kiinteistö sijaitsee 1.5 km pohjoiseen Oulun ydinkeskustasta Oulujoen etelärannalla osoitteessa Kasarmintie 15. Lentokenttä sijaitsee n. 16 km päässä ja rautatieasema on n. 1.5 km päässä kiinteistöstä.
Pysäköinti
Parkkipaikkoja vuokrattavissa piha-alueelta.
Muuta
Vuokrataan upealta sijainnilta 219,5 m²:n toimistotila, sis. jyvityksen yhteisaulasta. Keittiö ja sosiaalitilat. Vapaa!
Osa valokuvista on virtuaalistailattuja kuvia tilasta. Kurkista tilaan kalustetun 3D-pohjakuvan avulla!
* Kampanja *
Loppuvuosi 2026: -50 % vuokrasta/pääomavuokrasta vähintään vuoden vuokrasopimuksiin. Tarjous koskee vain erikseen nimettyjen kiinteistöjen vapaita tiloja. Tarjous on voimassa 31.10.2026 asti.
Parkkipaikkoja vuokrattavissa piha-alueelta sekä varastotiloja 1 krs:sta.
Soita Kirsi Väisänen p. 050 549 5101 ja kysy lisätietoja!
Katso lisätiedot
Osa valokuvista on virtuaalistailattuja kuvia tilasta. Kurkista tilaan kalustetun 3D-pohjakuvan avulla!
* Kampanja *
Loppuvuosi 2026: -50 % vuokrasta/pääomavuokrasta vähintään vuoden vuokrasopimuksiin. Tarjous koskee vain erikseen nimettyjen kiinteistöjen vapaita tiloja. Tarjous on voimassa 31.10.2026 asti.
Parkkipaikkoja vuokrattavissa piha-alueelta sekä varastotiloja 1 krs:sta.
Soita Kirsi Väisänen p. 050 549 5101 ja kysy lisätietoja!
Katso lisätiedot
Vapautuu
Kysy
Rakennusvuosi
1926
Energiatehokkuusluokka
D
Ota yhteyttä
Fokus Nordic Finland Oy
Näytä puhelinnumero
+358 50 549 5101
Kirsi Väisänen
Näytä puhelinnumero
+358 50 549 5101
Näytä puhelinnumero
+358 50 549 5101
Pyydä lisätietoa
