Vuokrataan toimistotilat - Jyväskylä
Asemakatu 11, Keskusta, 40100 Jyväskylä #10830599
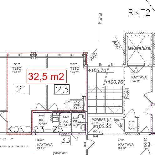
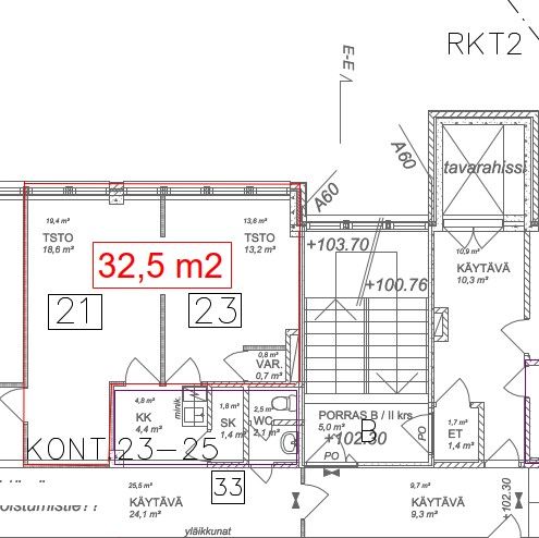
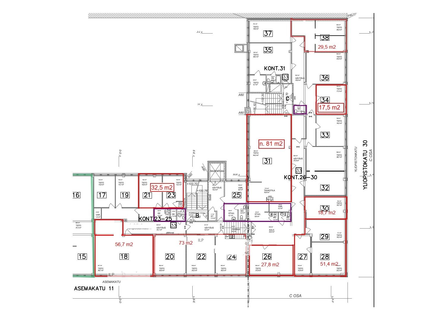
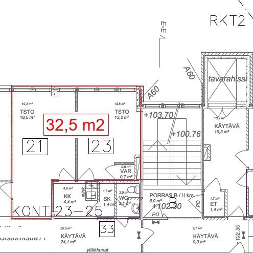
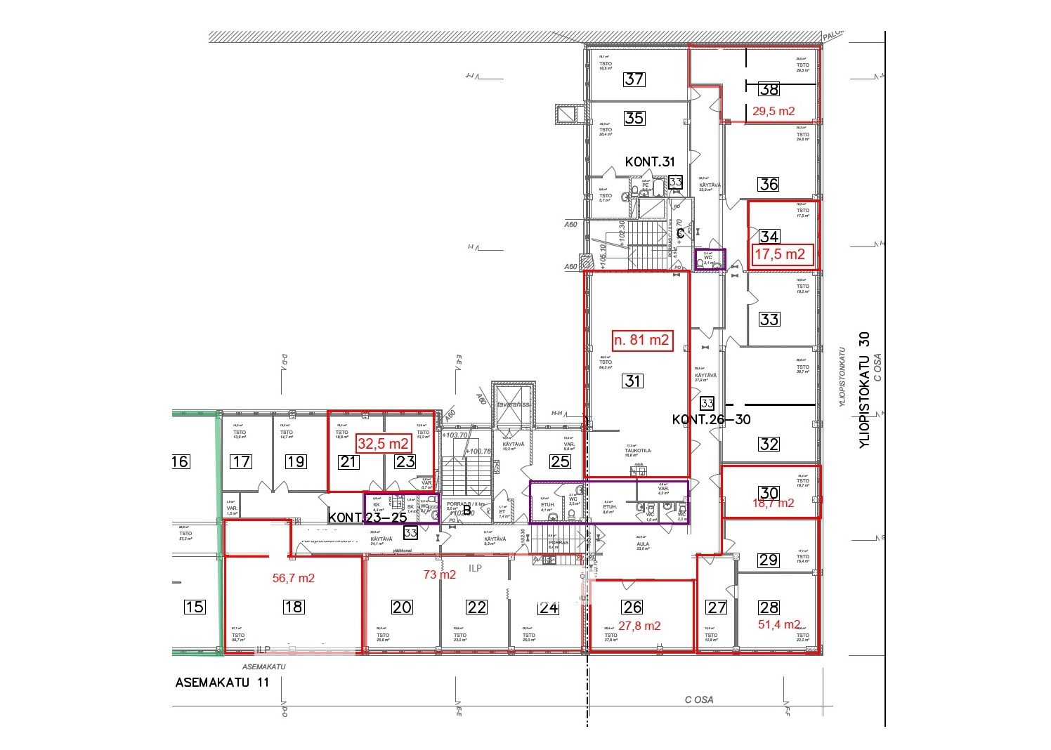
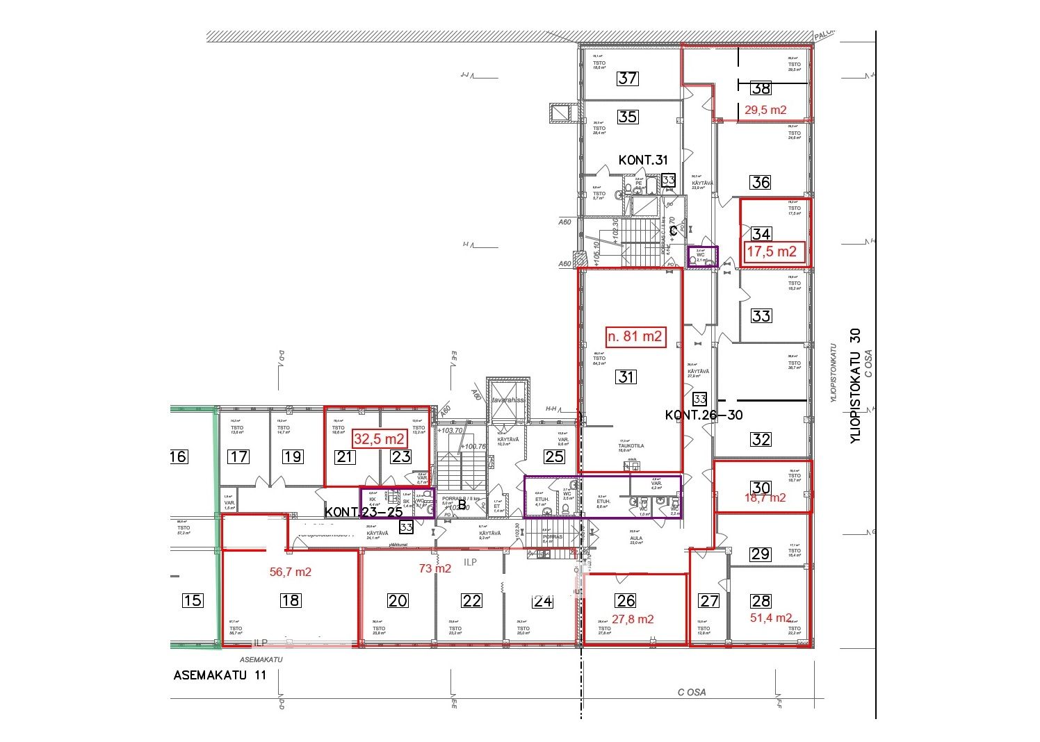
Vuokrattavana heti vapaa 32,5 m2 toimistotila aivan Jyväskylän ydinkeskustasta
Osoite
Asemakatu 11, 40100 Jyväskylä
Tilatyyppi
Toimistotilaa
32,5 m2
Muuta
Vuokrattavana heti vapaa kahden huoneen toimistohuoneisto Asemakadun ja Yliopistonkadun kulmassa sijaitsevasta Sik-Lan kiinteistön 2. kerroksesta, sisäpihan puolelta. Vuokra sisältää lämmityksen, veden sekä yhteiskäyttötilojen käytön ja siivouksen.
Sik-Lan kulman vapaiden tilojen koot vaihtelevat noin 15 - 81 m2 välillä. Tilojen käyttäjillä on yhteiskäyttöiset wc- ja keittiötilat. Ota yhteyttä näyttöä varten!
Sik-Lan kulman vapaiden tilojen koot vaihtelevat noin 15 - 81 m2 välillä. Tilojen käyttäjillä on yhteiskäyttöiset wc- ja keittiötilat. Ota yhteyttä näyttöä varten!
Vapautuu
Kysy
Kerros
2
Ota yhteyttä
Pyydä lisätietoa
