Vuokrataan toimistotilat, tuotantotilat, varastotilat, muut tilat - Jyväskylä
Yritystie 5, Palokangas, 40320 Jyväskylä #10830327
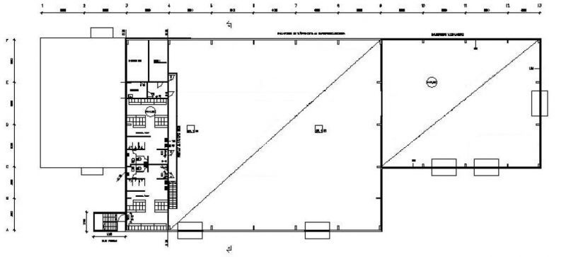
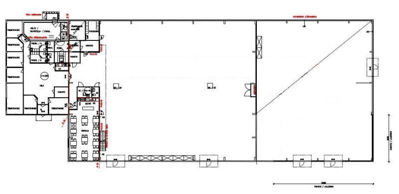
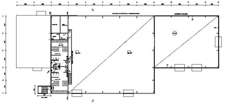
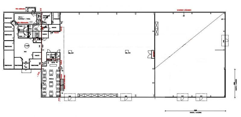
Vuokrataan halli- / tuotanto- ja toimistotilaa Palokankaalta. Tila on luvitettu myös liikuntakäyttöön. Kohteessa tehdään peruskorjauksia ja kohde vapautuu uudelle käyttäjälle vuoden vaihteessa 2025 / 2026. Reilun kokoinen ja tilava noin hehtaarin tontti / piha-alue, joka on aidattu ja asvaltoitu. Rakennusoikeutta jäljellä n. 3000 Kem2.
Halliosat ovat valmistuneet 1992 ja toimisto-osa 2002. Toimisto-osa remontoidaan käyttäjän tarpeiden mukaan. Väestösuojaan on rakennettu sauna-osasto.
Kiinteistö koostuu toimistotiloista sekä kahdesta erikokoisesta hallista. Kerrospinta-alaa on yhteensä n. 1762 m2, josta hallitilaa n. 1245 m2, toimistotilaa n. 187 m2 ( 7h, neukkari + sauna) ja sosiaali - / pukutilaa n. 330 m2.
Suurempi ja korkeampi halli on pinta-alaltaan noin 992m2 ja pienempi ja matalampi halli noin 418m2. Korkeamman hallin vapaa korkeus on noin 7,5m ja matalamman n. 4,5m. Kiinteistössä on 5 kpl nosto-ovia. Kiinteistö lämpiää kaukolämmöllä. Pienemmässä hallissa on öljyn- ja hiekanerotuskaivo.
Tila on aiemmin toiminut urheiluhallikäytössä, mutta se on muutettavissa takaisin tuotantotilaksi.
Lisätiedot ja näytöt:
Henri Kumpulainen, Puh. 040 864 3631, henri.kumpulainen@aveon.fi
Katutasossa
Näkyvällä paikalla
Jaettavissa
Aveon Real Estate Oy
Kauppakatu 18 C 26, 40100 Jyväskylä
Henri Kumpulainen
Puh.
Näytä puhelinnumero
040 864 3631
henri.kumpulainen@aveon.fi
Olemme kiinteistöliiketoiminnan asiantuntija, joka toimii yrittäjämäisesti neuvonantajana kiinteistökaupoissa, toimitilavälittämisessä sekä kiinteistökehityksessä.
Asiakkaitamme ovat kotimaiset ja ulkomaiset kiinteistönomistajat, -sijoittajat sekä tilojen käyttäjät kaikkialla Suomessa.
