Vuokrataan toimistotilat - Helsinki
Itämerentori 2, Ruoholahti, 00180 Helsinki #10830322
Valla - Toimistotilaa 123 - 10000 m²
Osoite
Itämerentori 2, 00180 Helsinki
Tilatyyppi
Toimistotilaa
123 - 10000 m2
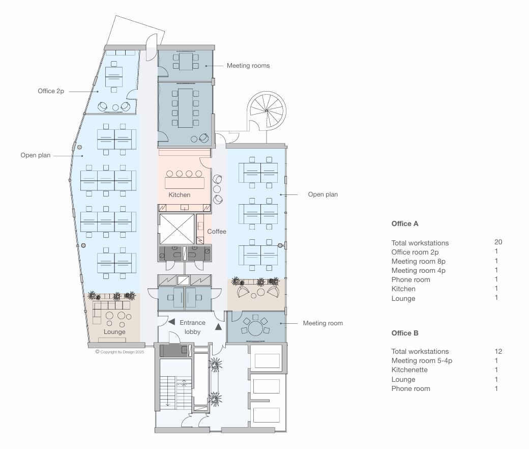
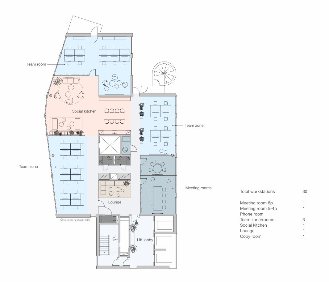
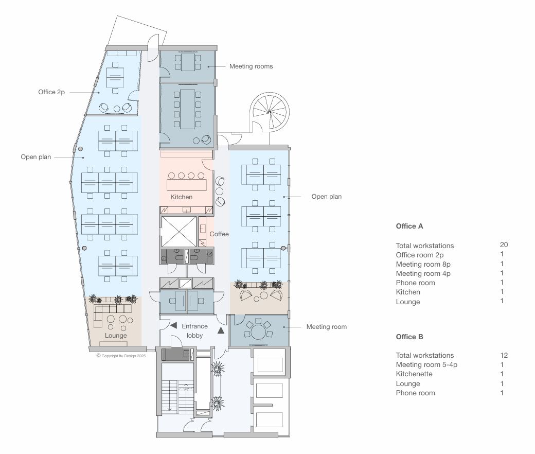
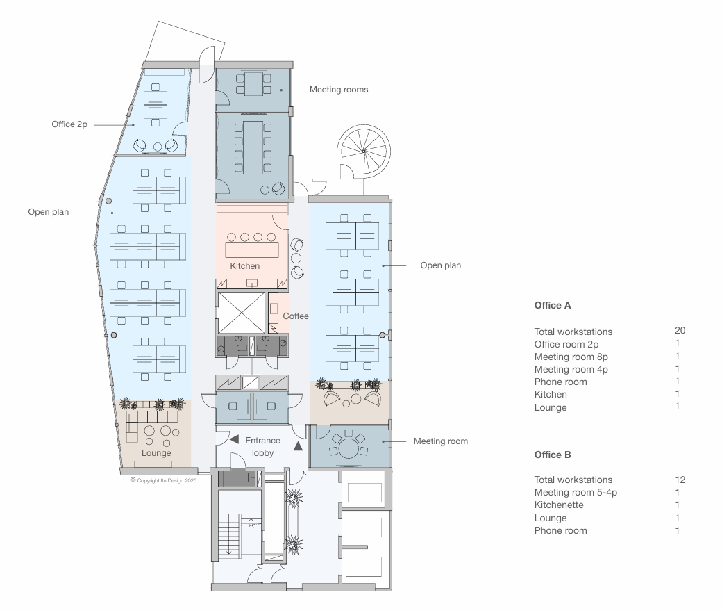
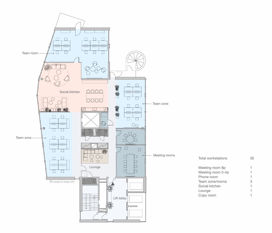
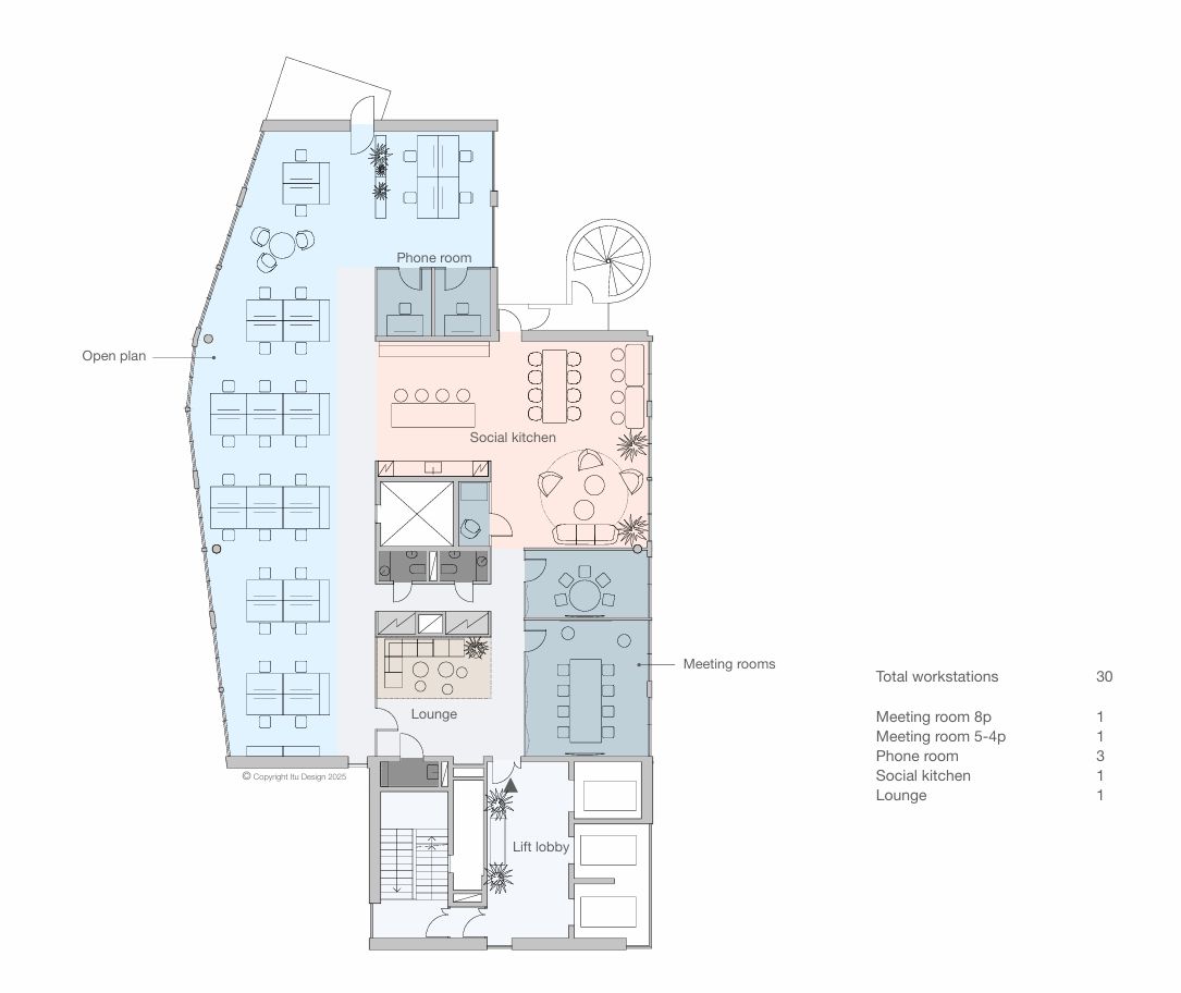
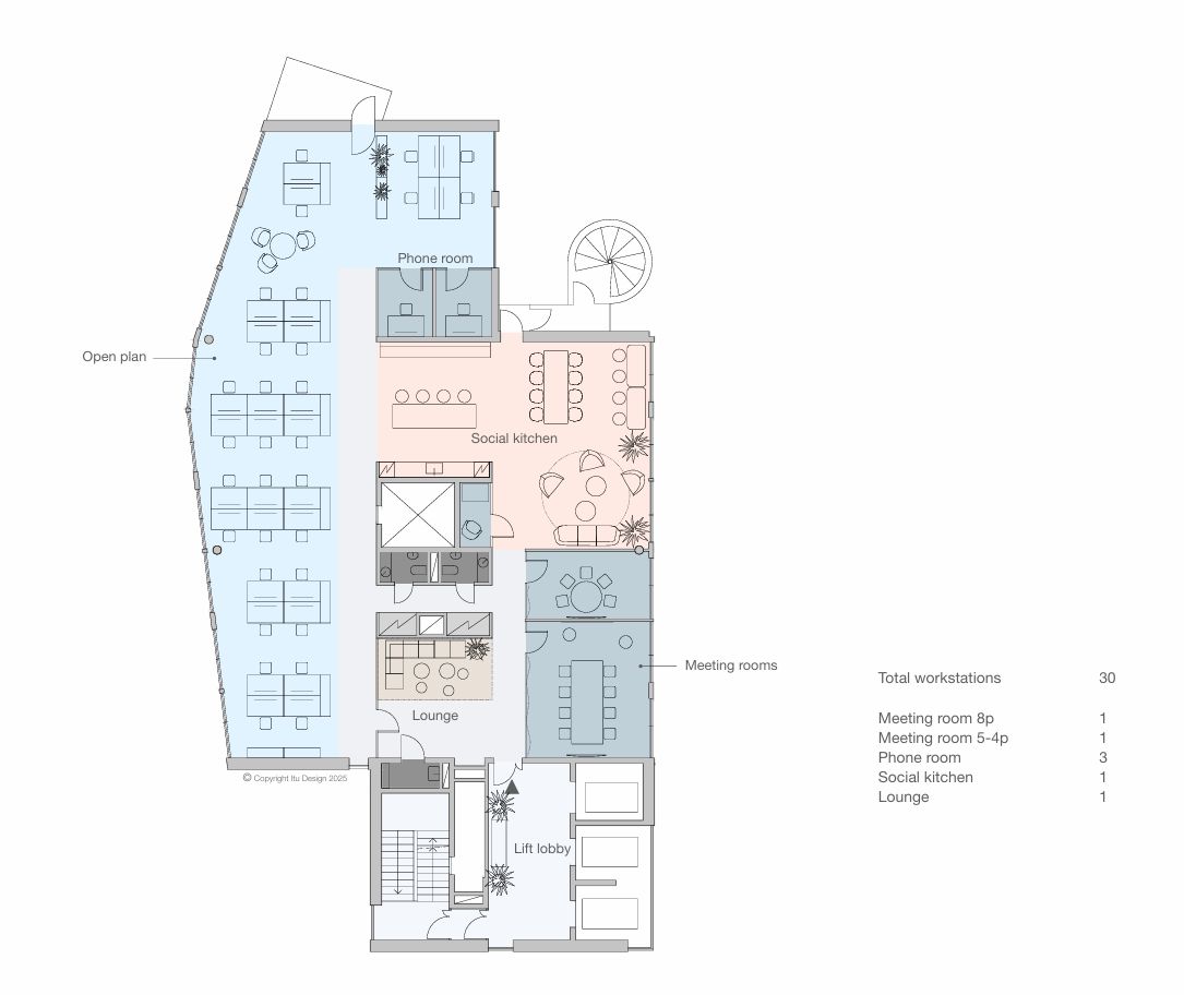
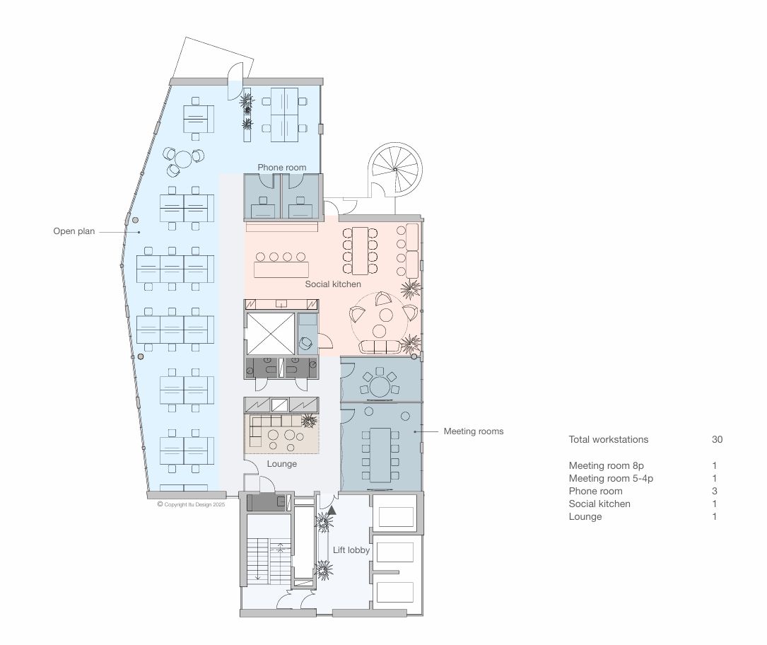
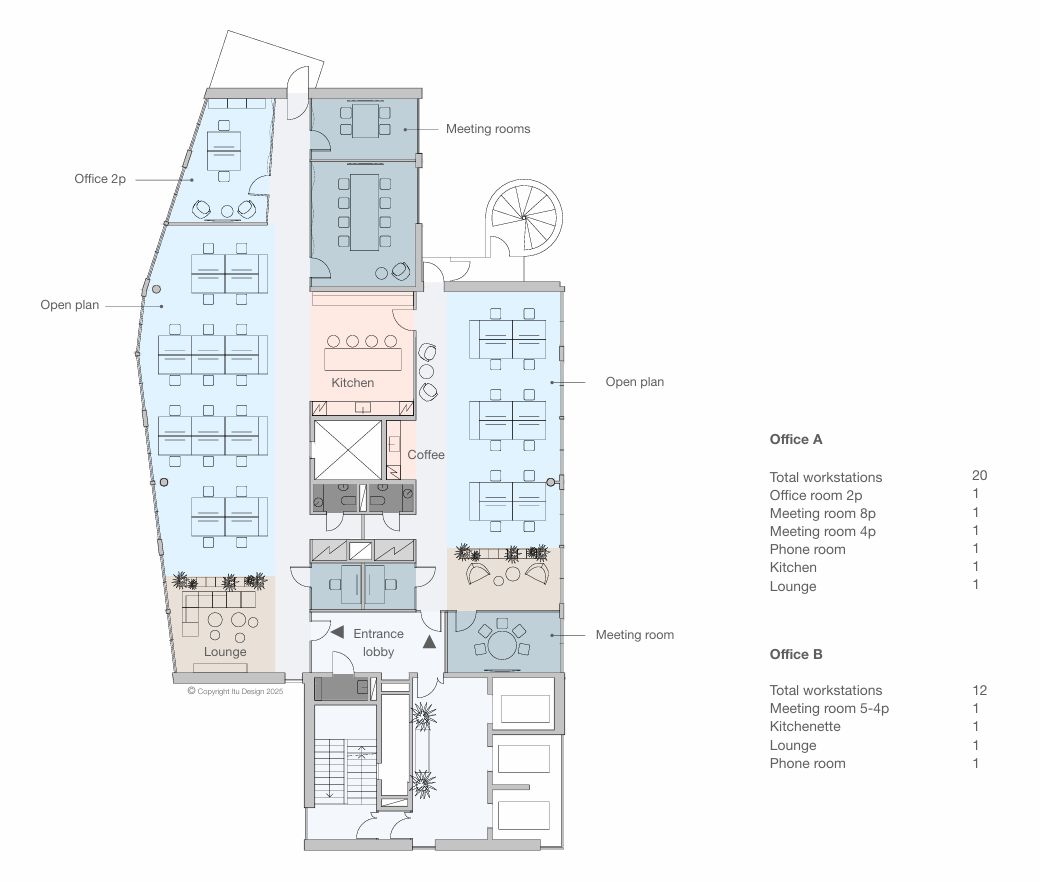
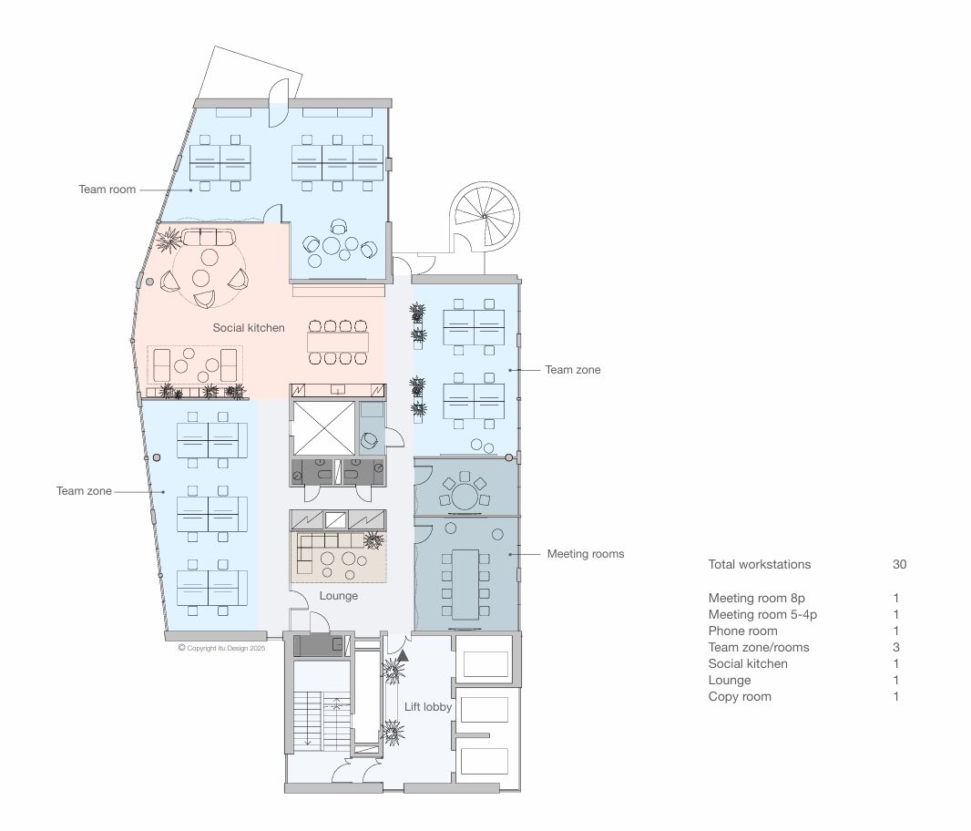
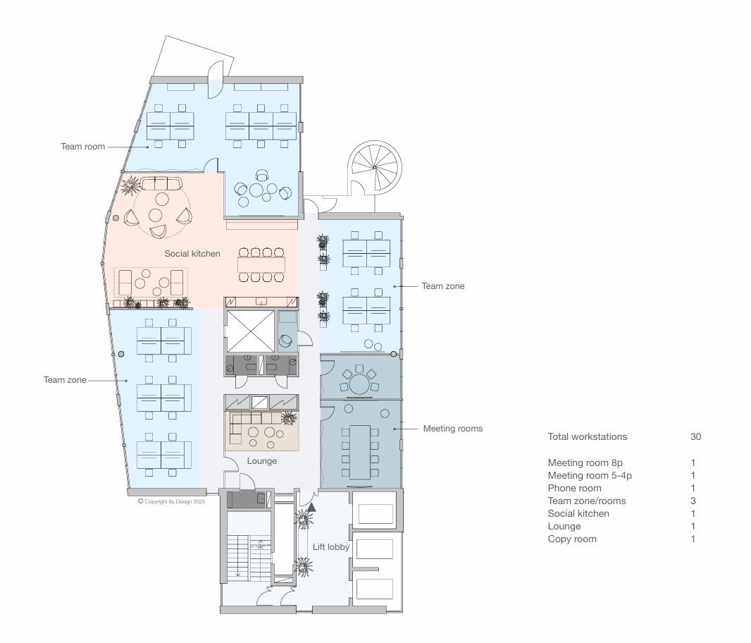
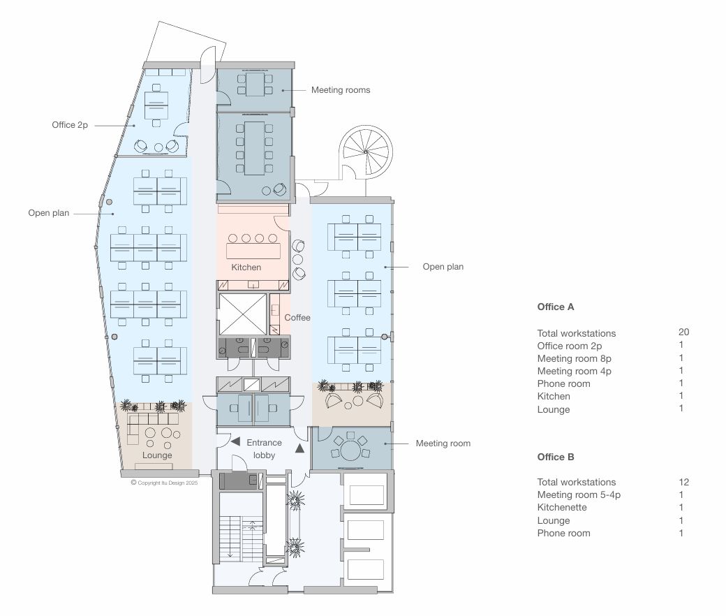
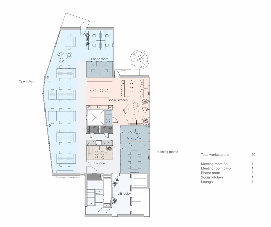
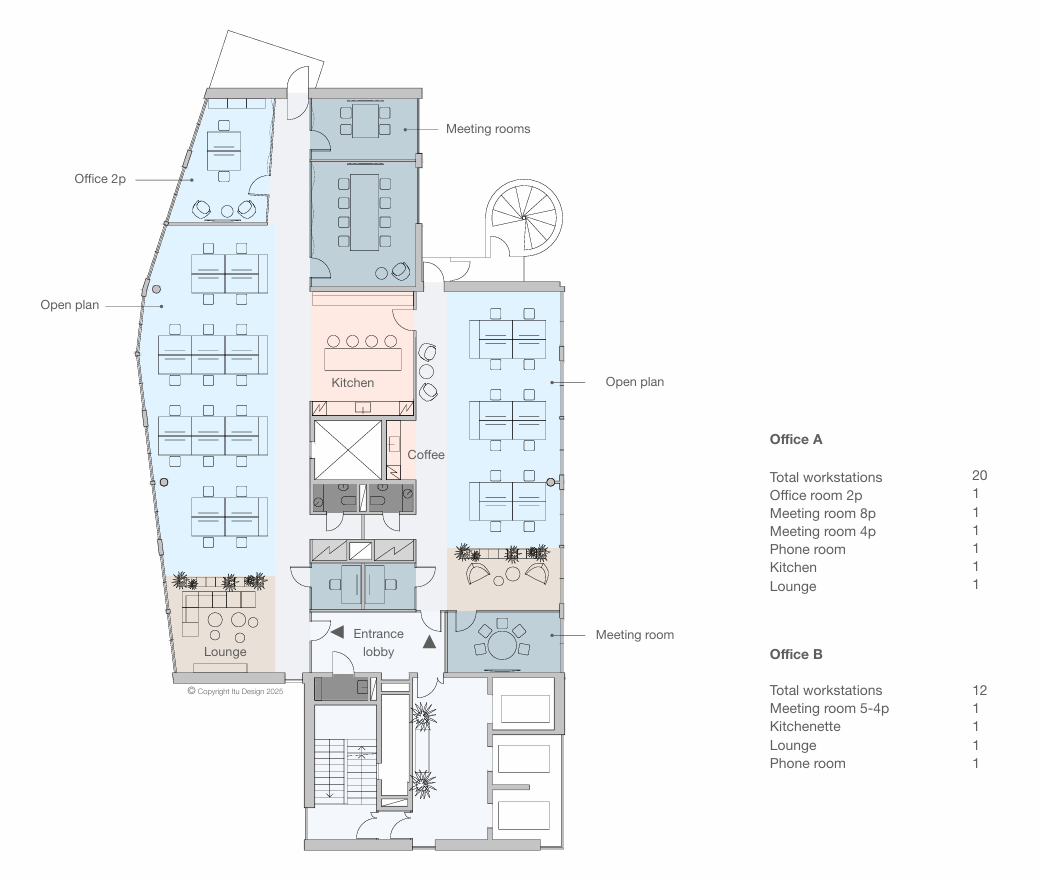
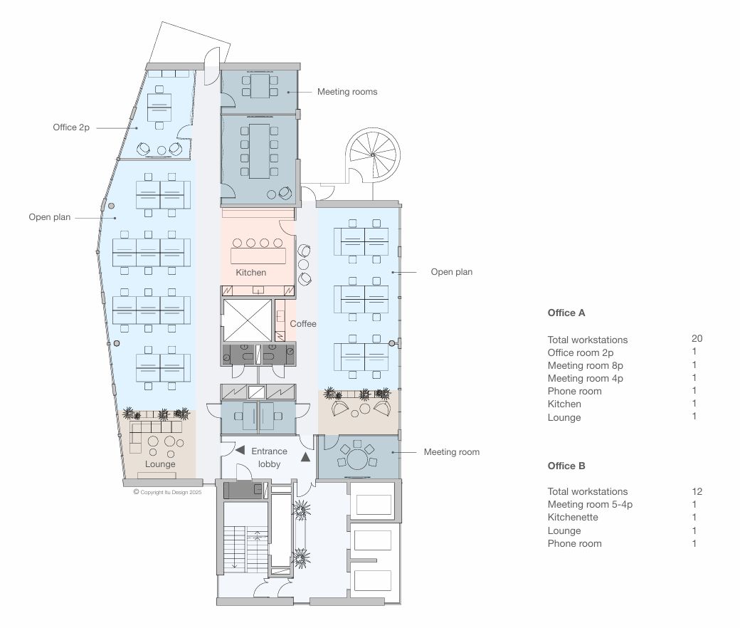
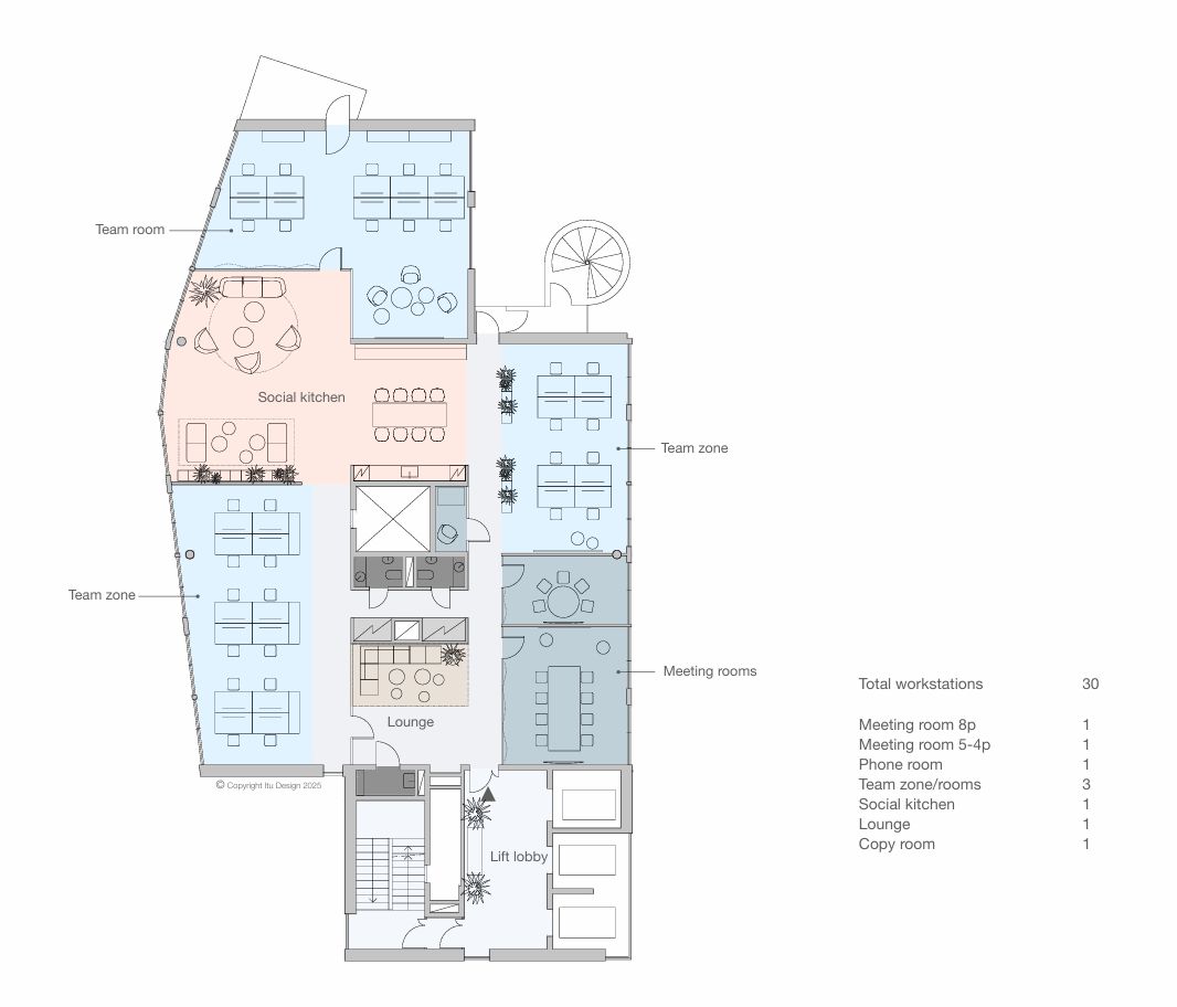
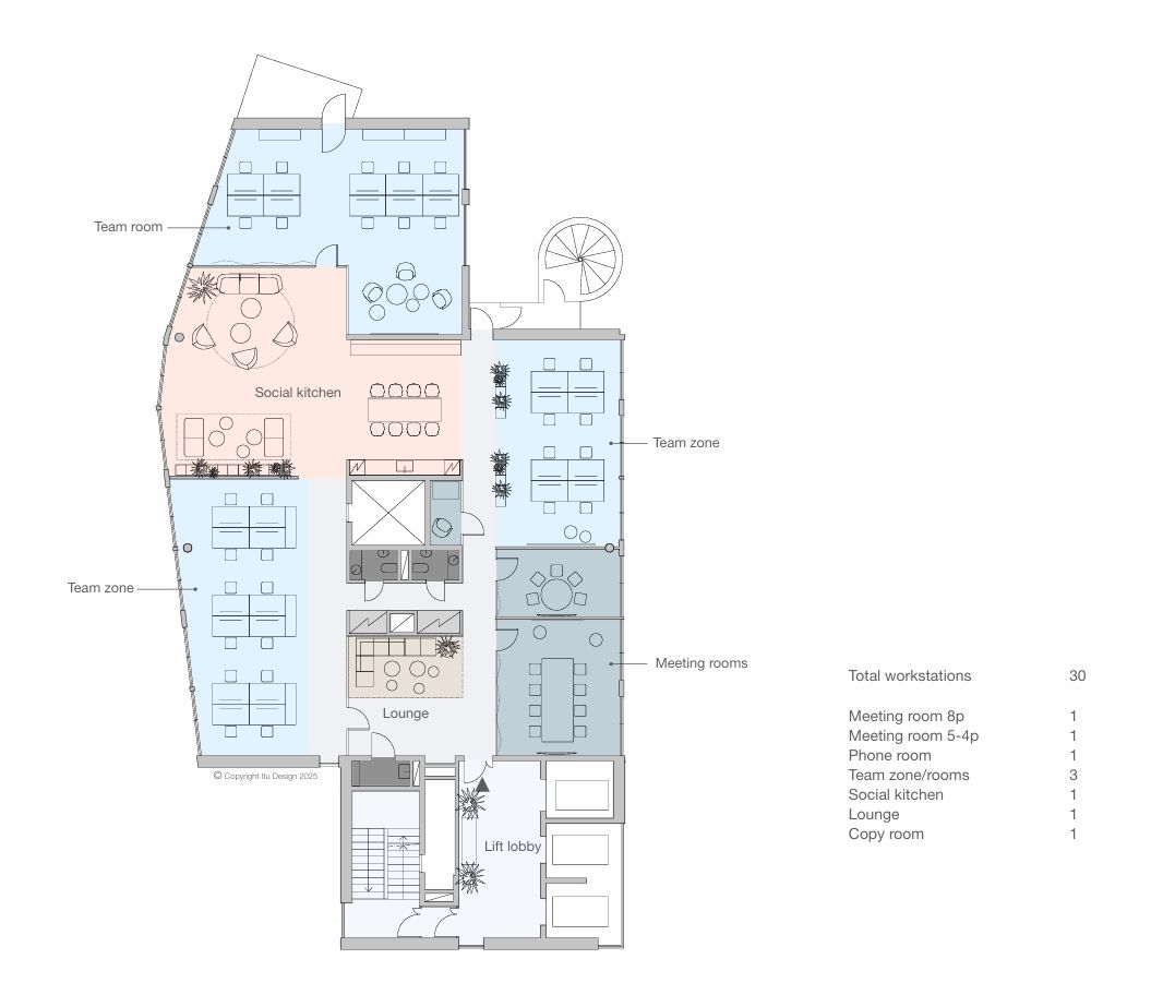
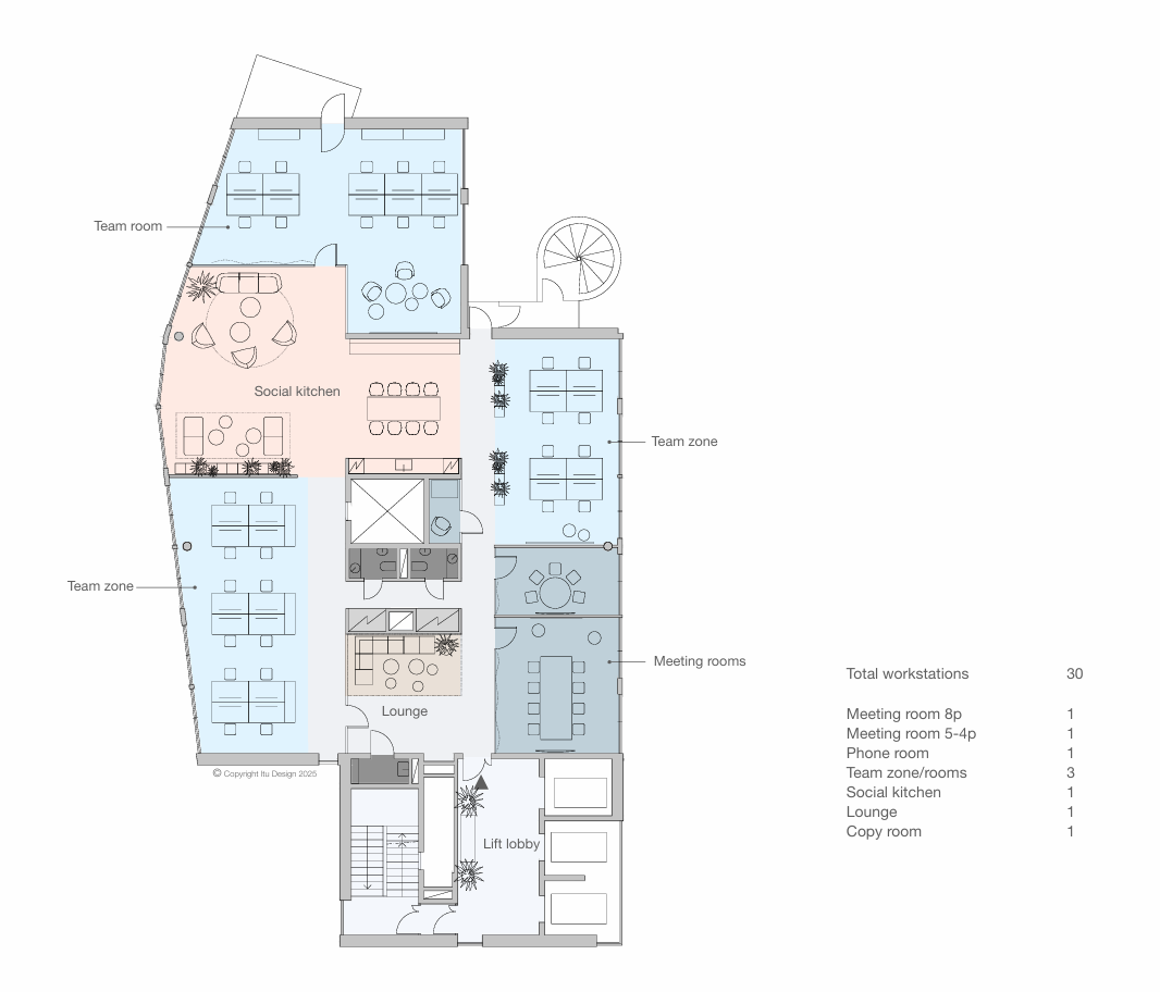
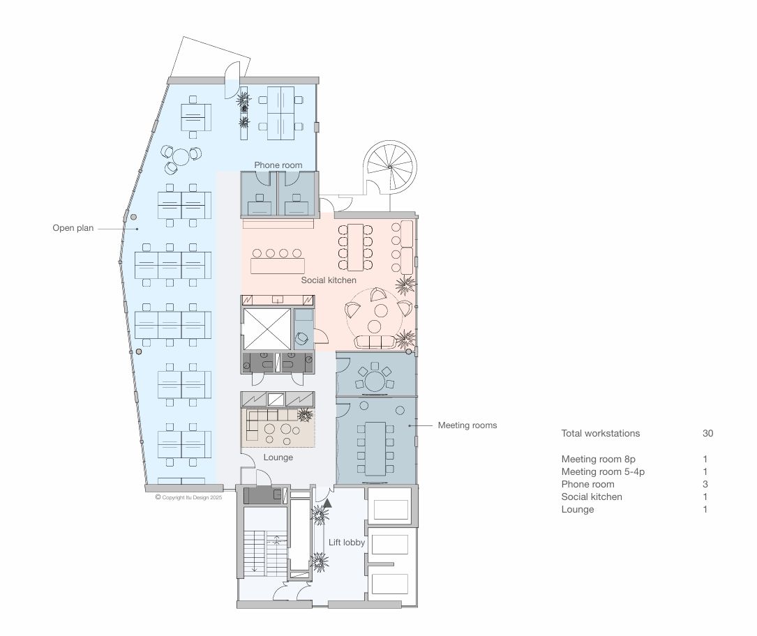
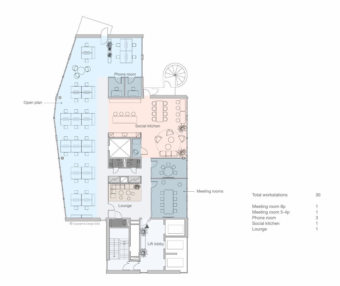
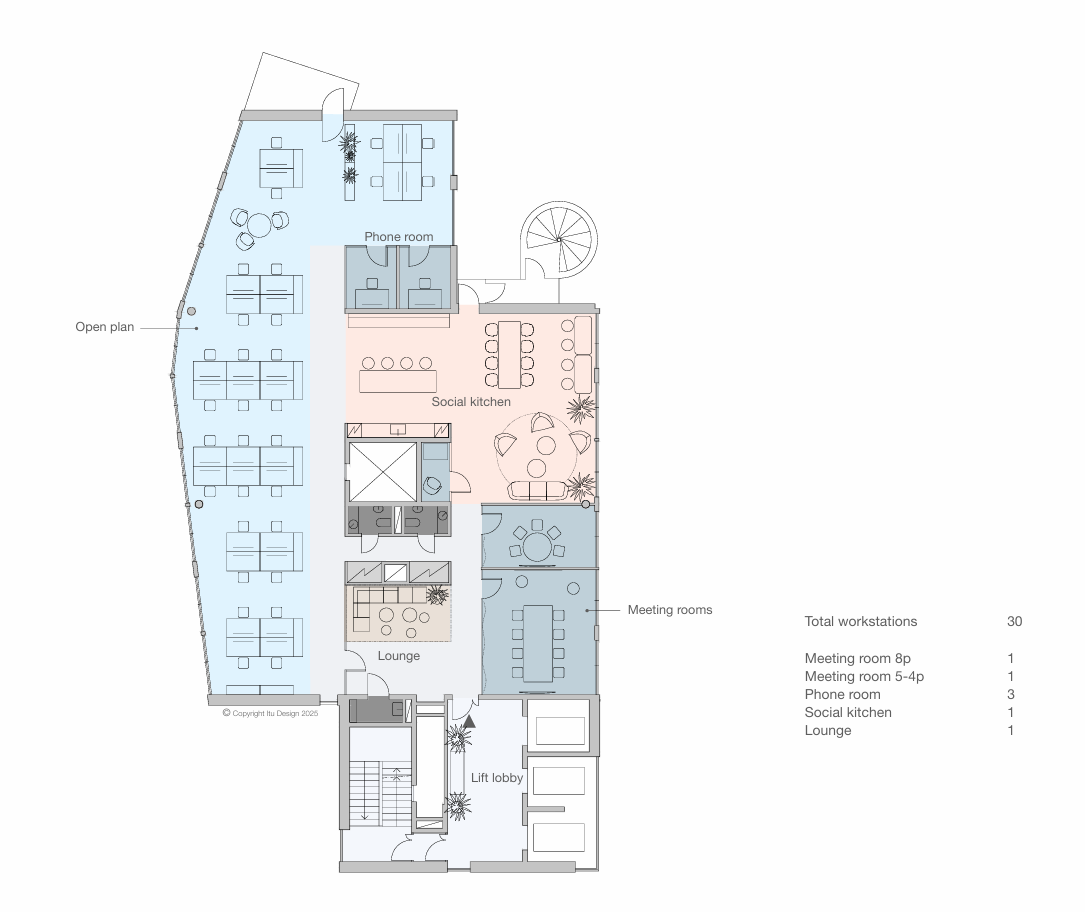
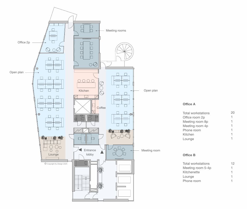
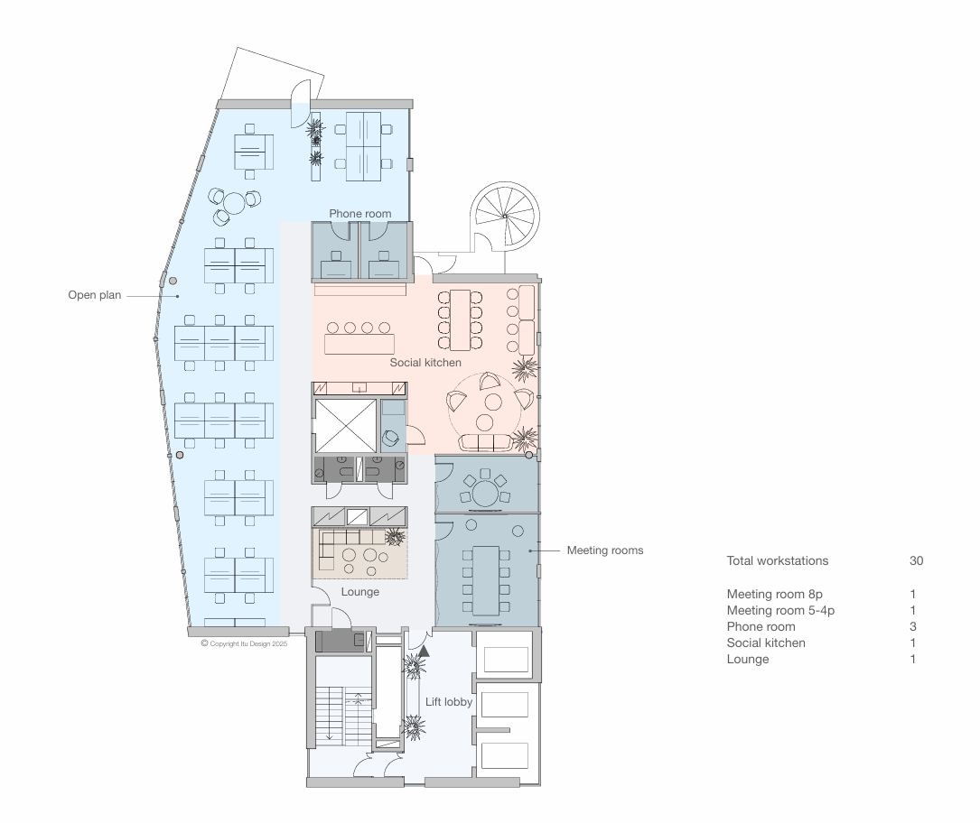
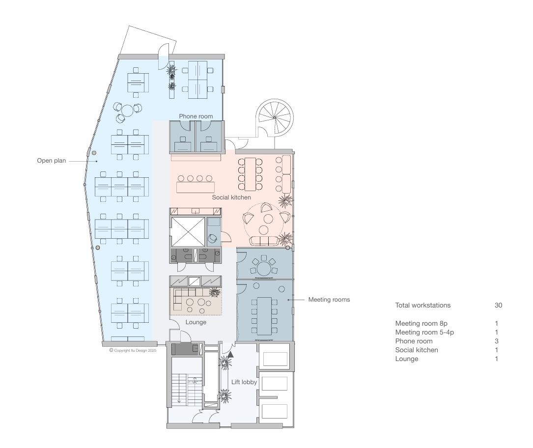
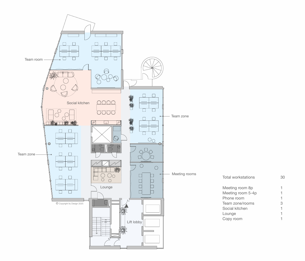
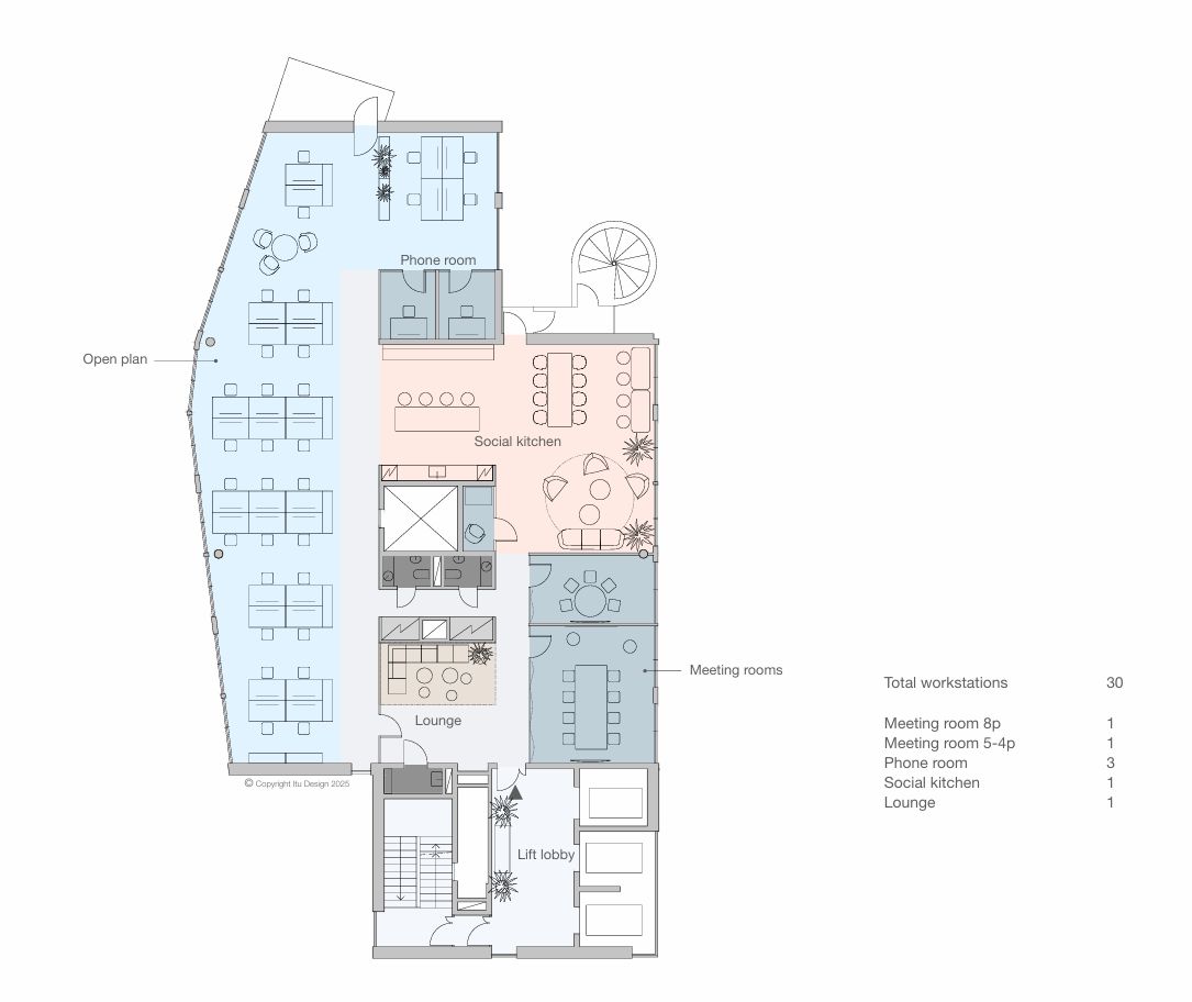
Pohjapiirros
Kiinteistö
Erikokoisia toimistotiloja 123 - 10000 m²
Etsitkö toimistotilaa, joka yhdistää modernin arkkitehtuurin, erinomaiset palvelut ja huikeat näkymät? Valla tarjoaa toimistotiloja 123 m²:stä aina 10 000 m²:iin asti, juuri teidän yrityksenne tarpeisiin räätälöitynä.
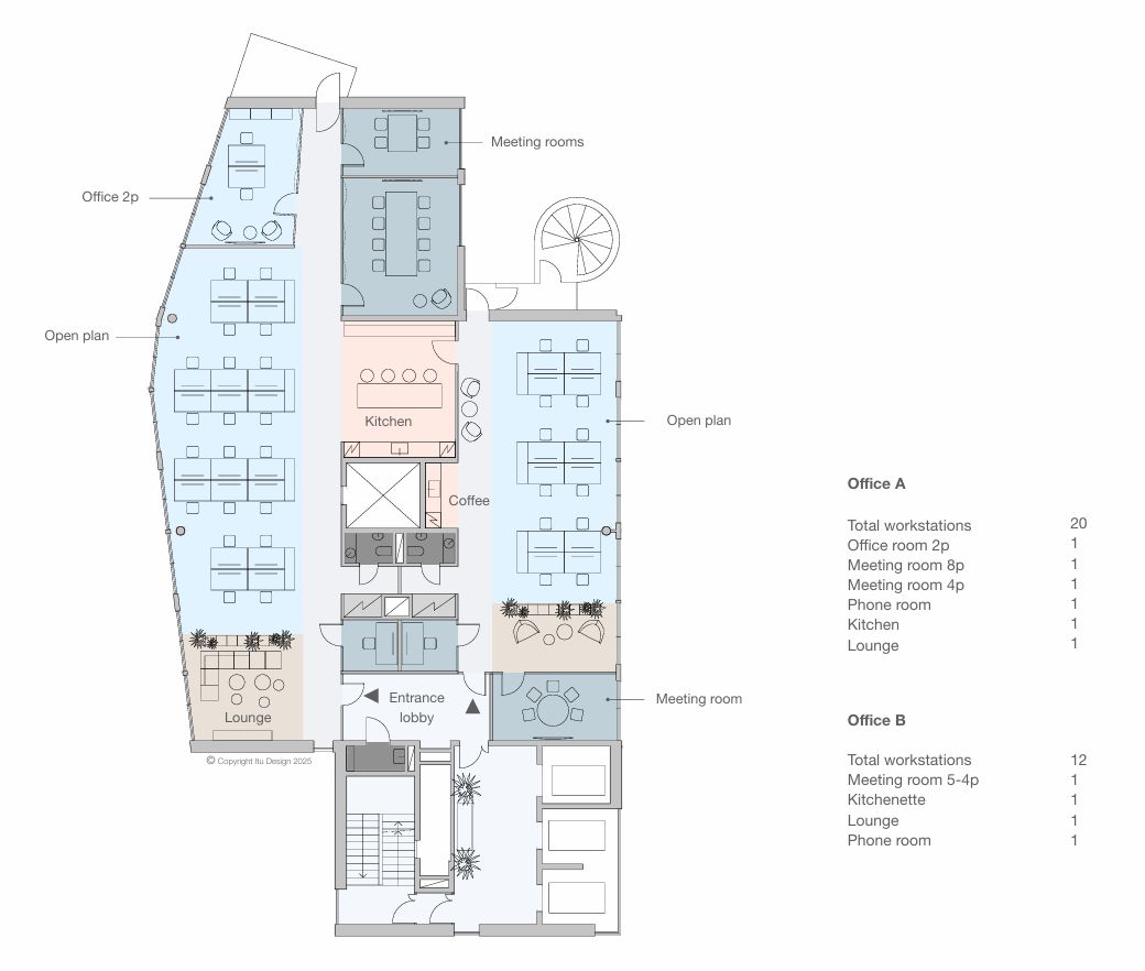
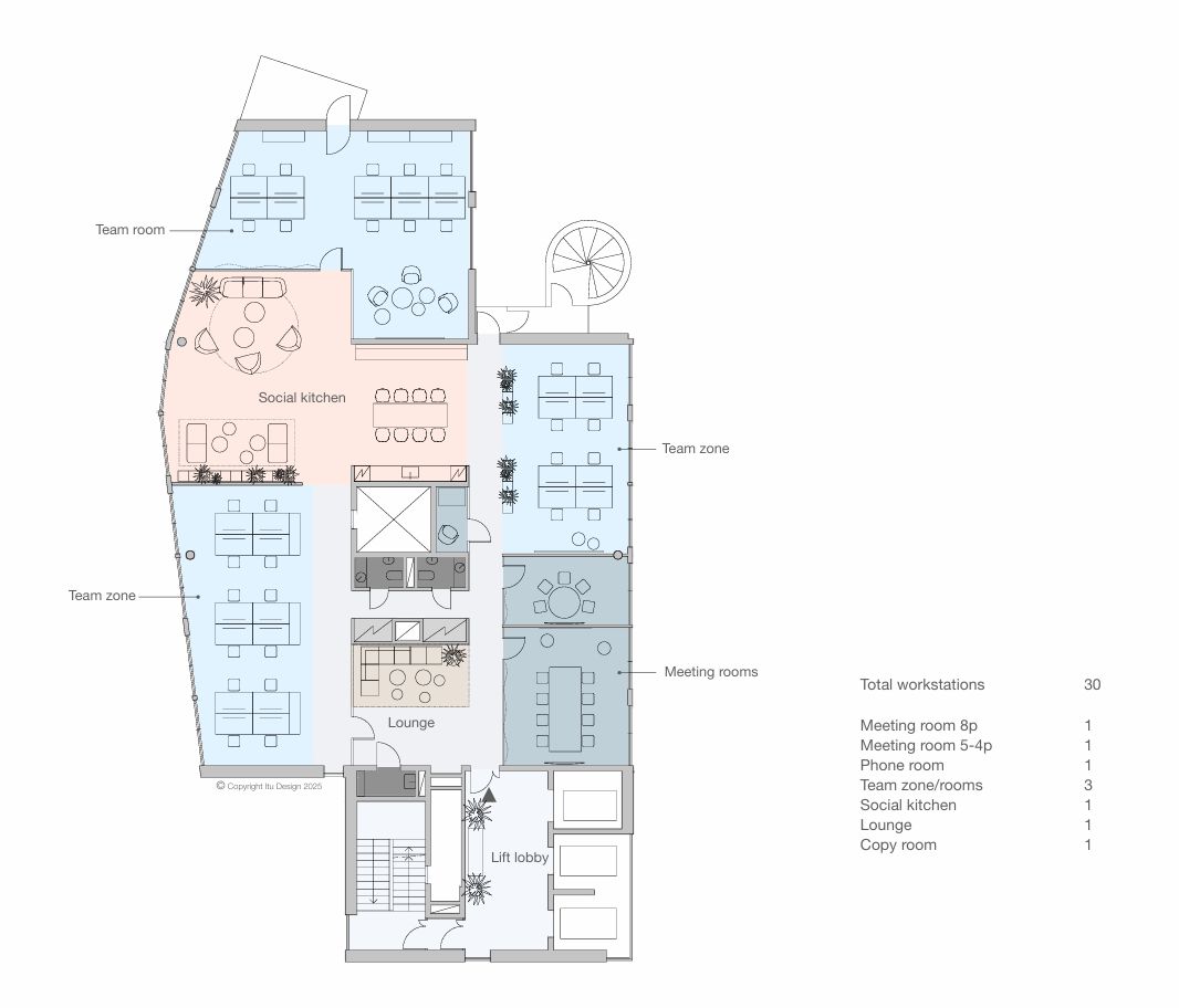
Katso pohjakuvat eri tilavaihtoehdoista ohessa ja tule tutustumaan!
Valla – Toimitilaa Ruoholahden sydämessä
Arkkitehti Pekka Helinin suunnittelema, arkkitehtonisesti vaikuttava kiinteistö muodostuu matalasta osasta ja näyttävästä, 70 metriä korkeasta tornista. Valoisa lasiatrium toimii rakennuksen sydämenä, ja tornin ylimmissä kerroksissa sijaitseva kattoterassi sekä hirsisauna kruunaavat kokonaisuuden.
Vallan tilat ovat muuntojoustavia ja suunnitellaan yrityskohtaisesti. Tornin toimistotiloista avautuvat esteettömät näkymät yli Ruoholahden aina merelle saakka. Valoisat ja viihtyisät tilat tukevat työntekoa ja arjen inspiraatiota.
Sijainti
Valla sijaitsee erinomaisella paikalla aivan Ruoholahden metroasemaa vastapäätä. Keskeinen sijainti tarjoaa helpon saavutettavuuden niin julkisilla kulkuvälineillä, pyörällä kuin autolla. Lähialueelta löytyvät monipuoliset palvelut, kuten useita lounasravintoloita ja kauppakeskus.
Palvelut
Korkeatasoinen kokous- ja tapahtumatarjonta
Uudet, laadukkaat kokoustilat katutasossa
Yli 200 hengen auditorio LED-seinällä
Neuvotteluhuoneita sekä Tornin 15. kerroksen kokoustilat ja 16. kerroksen Huippu-tapahtumatila työpajoihin ja illanviettoihin
Kattoterassin tunnelmallinen hirsisauna ja poreallas
Kolme ravintolaa, jotka tarjoavat aamupalaa, lounasta, illallista ja catering-palveluita
Aulapalvelu ja host-palvelu
Kauppakassipalvelu
Pesulapalvelu
Pakettiautomaatti
Postituspalvelut
Hierontapalvelut
Kiinteistön vartiointi
Uudistettu kuntosali, suihku- ja pukuhuoneet
Pyöräparkki noin 125 polkupyörälle, huolto- ja pesupiste sekä sähköpyörien lataus
Autohalli, jossa 360 autopaikkaa ja valmius 180 sähköauton latauspaikalle
Autonpesu ja rengaspalvelut
Vastuullisuus
Valla on ollut hiilineutraali vuodesta 2023. Kiinteistössä hyödynnetään hiilineutraalia kaukolämpöä, hiilineutraalia kaukokylmää, alkuperätakuin varmennettua kotimaista tuulivoimaa sekä kiinteistön omaa 80 MWh:n aurinkovoimalaa. Vallalle on myönnetty BREEAM In-Use Excellent -tason ympäristösertifikaatti, mikä korostaa energiatehokkuutta, vastuullista kiinteistönhallintaa ja pitkäjänteistä kehittämistyötä. Saneeratun kiinteistön valinta tukee kiertotaloutta ja vähentää materiaalihukkaa, ja Vallassa vuokralaisia kuunnellaan aktiivisesti asiakastyytyväisyystutkimuksin vuosittain.
Ota yhteyttä
Kiinnostuitko Vallasta?
Ota yhteyttä ja varaa aika tutustumiskäynnille – toimitilavälityspalvelumme on tilanhakijalle maksutonta.
Etsitkö toimistotilaa, joka yhdistää modernin arkkitehtuurin, erinomaiset palvelut ja huikeat näkymät? Valla tarjoaa toimistotiloja 123 m²:stä aina 10 000 m²:iin asti, juuri teidän yrityksenne tarpeisiin räätälöitynä.
Katso pohjakuvat eri tilavaihtoehdoista ohessa ja tule tutustumaan!
Valla – Toimitilaa Ruoholahden sydämessä
Arkkitehti Pekka Helinin suunnittelema, arkkitehtonisesti vaikuttava kiinteistö muodostuu matalasta osasta ja näyttävästä, 70 metriä korkeasta tornista. Valoisa lasiatrium toimii rakennuksen sydämenä, ja tornin ylimmissä kerroksissa sijaitseva kattoterassi sekä hirsisauna kruunaavat kokonaisuuden.
Vallan tilat ovat muuntojoustavia ja suunnitellaan yrityskohtaisesti. Tornin toimistotiloista avautuvat esteettömät näkymät yli Ruoholahden aina merelle saakka. Valoisat ja viihtyisät tilat tukevat työntekoa ja arjen inspiraatiota.
Sijainti
Valla sijaitsee erinomaisella paikalla aivan Ruoholahden metroasemaa vastapäätä. Keskeinen sijainti tarjoaa helpon saavutettavuuden niin julkisilla kulkuvälineillä, pyörällä kuin autolla. Lähialueelta löytyvät monipuoliset palvelut, kuten useita lounasravintoloita ja kauppakeskus.
Palvelut
Korkeatasoinen kokous- ja tapahtumatarjonta
Uudet, laadukkaat kokoustilat katutasossa
Yli 200 hengen auditorio LED-seinällä
Neuvotteluhuoneita sekä Tornin 15. kerroksen kokoustilat ja 16. kerroksen Huippu-tapahtumatila työpajoihin ja illanviettoihin
Kattoterassin tunnelmallinen hirsisauna ja poreallas
Kolme ravintolaa, jotka tarjoavat aamupalaa, lounasta, illallista ja catering-palveluita
Aulapalvelu ja host-palvelu
Kauppakassipalvelu
Pesulapalvelu
Pakettiautomaatti
Postituspalvelut
Hierontapalvelut
Kiinteistön vartiointi
Uudistettu kuntosali, suihku- ja pukuhuoneet
Pyöräparkki noin 125 polkupyörälle, huolto- ja pesupiste sekä sähköpyörien lataus
Autohalli, jossa 360 autopaikkaa ja valmius 180 sähköauton latauspaikalle
Autonpesu ja rengaspalvelut
Vastuullisuus
Valla on ollut hiilineutraali vuodesta 2023. Kiinteistössä hyödynnetään hiilineutraalia kaukolämpöä, hiilineutraalia kaukokylmää, alkuperätakuin varmennettua kotimaista tuulivoimaa sekä kiinteistön omaa 80 MWh:n aurinkovoimalaa. Vallalle on myönnetty BREEAM In-Use Excellent -tason ympäristösertifikaatti, mikä korostaa energiatehokkuutta, vastuullista kiinteistönhallintaa ja pitkäjänteistä kehittämistyötä. Saneeratun kiinteistön valinta tukee kiertotaloutta ja vähentää materiaalihukkaa, ja Vallassa vuokralaisia kuunnellaan aktiivisesti asiakastyytyväisyystutkimuksin vuosittain.
Ota yhteyttä
Kiinnostuitko Vallasta?
Ota yhteyttä ja varaa aika tutustumiskäynnille – toimitilavälityspalvelumme on tilanhakijalle maksutonta.
Vapautuu
Kysy
Kerros
2-14
Ota yhteyttä
Logistila Oy
Kylätie 11-13, 00320 HELSINKI
Karoliina Turppo
Näytä puhelinnumero
050 345 3258
Pyydä lisätietoa
