Vuokrataan toimistotilat - Helsinki
Esterinportti 2, Länsi-Pasila, 00240 Helsinki #10829819
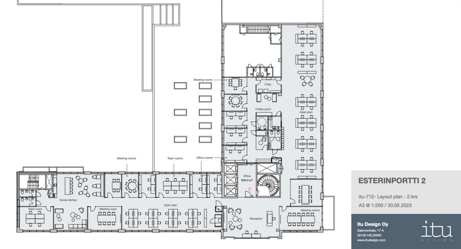
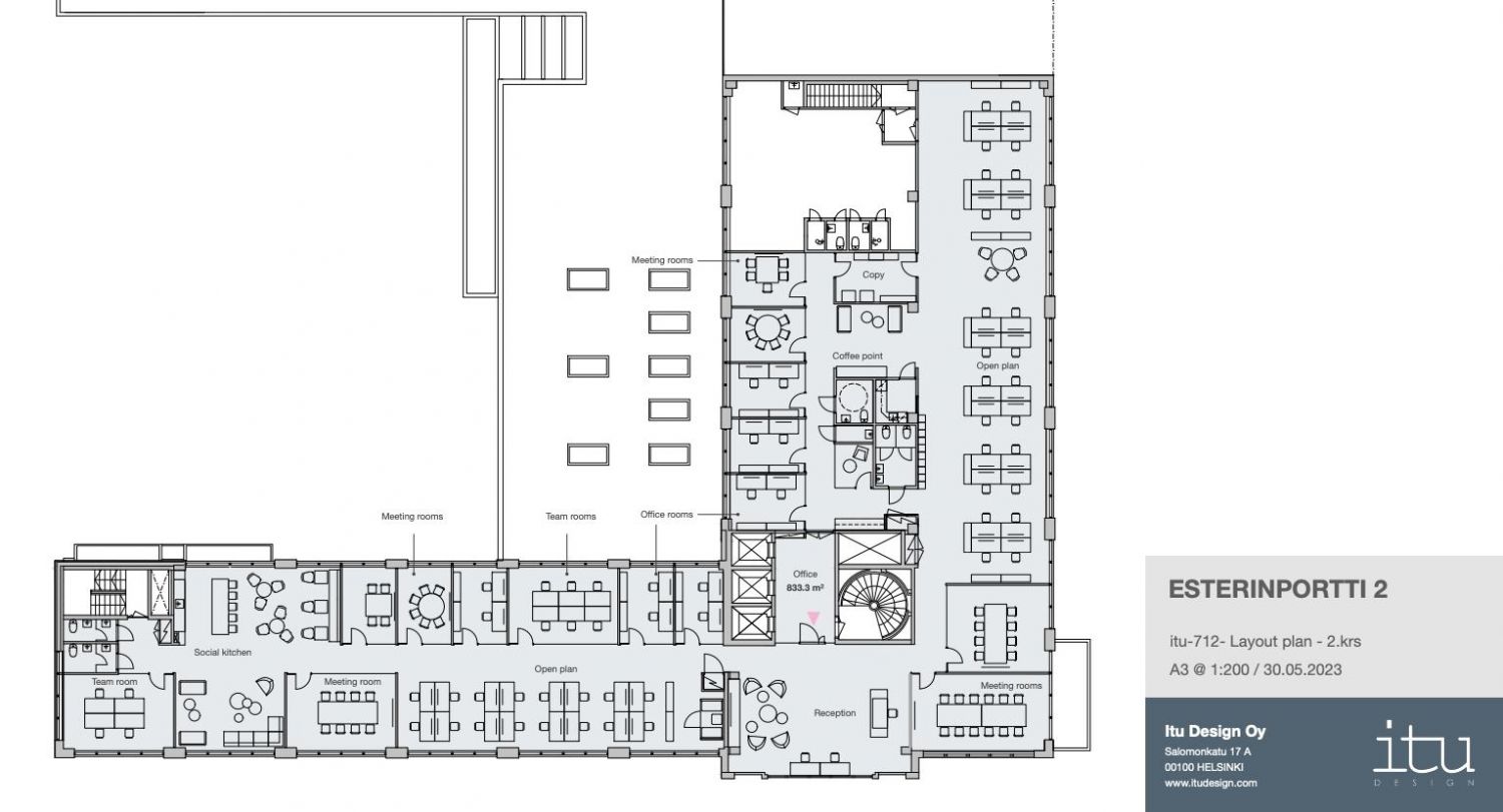
Vuokrataan Helsingin Pasilasta toisen kerroksen 912 m² toimistotila.
Toimisto koostuu puoliksi avokonttoritilasta ja työ-/neuvottelutiloista. Keittiölliset lounge alueet molemmissa siivissä sekä omista wc-tiloista. Ikkunat ovat Pasilankadun puolella. Tilaa on mahdollista muunnella vuokralaisen tarpeiden mukaan.
Keskeisen sijaintinsa ansiosta kiinteistöön on helppo saapua ja kaikki Pasilan palvelut ovat lähettyvillä. Myös raitiovaunut kulkevat aivan kiinteistön kupeessa, ja Pasilan rautatieasemalle on vain lyhyt kävelymatka.
Kiinteistön palveluina mm. aulapalvelut, neuvotteluhuoneita, pyöräparkki, suihku- ja pukuhuonetilat ja sauna. Lounasravintoloita on useita lähistöllä.
Kysy rohkeasti lisätietoja ja sovitaan käynti kohteella jo tänään!
Hausala Oy
Erkkilänkatu 11, 33100 Tampere
Näytä puhelinnumero
050 472 7077
Mikko Ranta
Näytä puhelinnumero
050 360 6500
Mika Savikko
Näytä puhelinnumero
050 472 7077
