Myydään toimistotilat, tuotantotilat, varastotilat, työtilat, autotalli/-hallitilat - Helsinki
Akkutie 4, Tattarisuo, 00770 Helsinki #10829758
Myydään tilava hallinpuolikas Helsingin Tattarisuolla!
Osoite
Akkutie 4, 00770 Helsinki
Tilatyyppi
Toimistotilaa
50 m2
Tuotantotilaa
430 m2
Varastotilaa
430 m2
Työtilaa
430 m2
Autotalli/-hallitilaa
430 m2
Yhteensä
480 m2
Myyntihinta
399´800 € (velaton)
Muuta
Helsingin Tattarisuolla on myytävänä puolet isosta teollisuus- ja varastohallirakennuksesta. Myytävä osa on takaosa hallista.
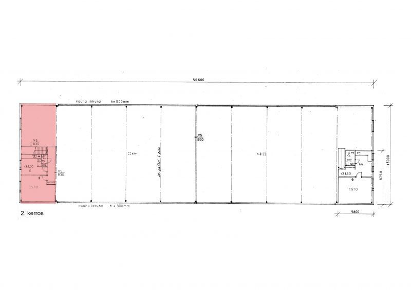
Myytävien tilojen yhteispinta-ala on noin 480 m². Varsinainen halli ja sen vieressä oleva autotalli ovat kooltaan yhteensä noin 440 m² ja toisessa kerroksessa on noin 40 m² toimistotilat, wc- ja keittiö. Autotallin pinta-ala on noin 40 m².
Hallin sisäkorkeus on noin 5,2 metriä. Hallissa on kaksi nosto-ovea (L3,6 m x K4 m) sekä lattiakaivo ja voimavirta. Autotalliin on erillinen pariovi. Autotallin vapaa korkeus 2,25 metriä. Hallin yhteydessä on myös wc-tila.
Rakennuksessa on öljylämmitys.
Piha-alue on tilava ja hallitilaan eteen mahtuu pysäköimään ja lisätilaa on rakennuksen takana. Aluetta ei ole kokonaan aidattu, mutta pihaan kuljetaan lukittavan ajoportin kautta.
Rakennus sijaitsee hyvällä paikalla Tattarisuolla aivan Lahdenväylän läheisyydessä. Lentokentälle on matkaa noin 13 kilometriä.
Kaupan kohteena puolet Kiinteistö Oy Tattarisuon Akkutie 4 –yhtiön osakkeista.
Hyvät hallitilat omaan käyttöön tai vuokraukseen (voi jakaa useammalle toimijalle)!
Kohdetiedot
Sijainti
Katuosoite: Akkutie 4, 00770 Helsinki
Kaupunginosa: Tattarisuo
Ympäristö: Teollisuusaluetta
Tontti
Omistus: Helsingin kaupungin vuokratontti (voimassa muuttumattomana 31.12.2047 asti)
Rakennus/huoneisto
Pinta-ala: Noin 480 m²
Kiinteistötyyppi: Tuotanto- ja varastorakennus
Tilatyyppi: Varasto- ja tuotantotila
Lämmitys: Öljylämmitys
Kunto, varusteet ja palvelut: Hyvä peruskunto, hallin yhteydessä autotalli, toimisto, keittiö ja kaksi wc:tä
Vapautuminen: Heti vapaa
Paikoitus: Pihalla tilan edessä
Myyntihinta ja kulut
Velatonhinta: 399’800 €
Hoitovastike: Noin 600–800 €/kk
Sähkö- ja vesimaksu: Kulutuksen mukaan
Lämmitys: Kulutuksen mukaan
Myytävien tilojen yhteispinta-ala on noin 480 m². Varsinainen halli ja sen vieressä oleva autotalli ovat kooltaan yhteensä noin 440 m² ja toisessa kerroksessa on noin 40 m² toimistotilat, wc- ja keittiö. Autotallin pinta-ala on noin 40 m².
Hallin sisäkorkeus on noin 5,2 metriä. Hallissa on kaksi nosto-ovea (L3,6 m x K4 m) sekä lattiakaivo ja voimavirta. Autotalliin on erillinen pariovi. Autotallin vapaa korkeus 2,25 metriä. Hallin yhteydessä on myös wc-tila.
Rakennuksessa on öljylämmitys.
Piha-alue on tilava ja hallitilaan eteen mahtuu pysäköimään ja lisätilaa on rakennuksen takana. Aluetta ei ole kokonaan aidattu, mutta pihaan kuljetaan lukittavan ajoportin kautta.
Rakennus sijaitsee hyvällä paikalla Tattarisuolla aivan Lahdenväylän läheisyydessä. Lentokentälle on matkaa noin 13 kilometriä.
Kaupan kohteena puolet Kiinteistö Oy Tattarisuon Akkutie 4 –yhtiön osakkeista.
Hyvät hallitilat omaan käyttöön tai vuokraukseen (voi jakaa useammalle toimijalle)!
Kohdetiedot
Sijainti
Katuosoite: Akkutie 4, 00770 Helsinki
Kaupunginosa: Tattarisuo
Ympäristö: Teollisuusaluetta
Tontti
Omistus: Helsingin kaupungin vuokratontti (voimassa muuttumattomana 31.12.2047 asti)
Rakennus/huoneisto
Pinta-ala: Noin 480 m²
Kiinteistötyyppi: Tuotanto- ja varastorakennus
Tilatyyppi: Varasto- ja tuotantotila
Lämmitys: Öljylämmitys
Kunto, varusteet ja palvelut: Hyvä peruskunto, hallin yhteydessä autotalli, toimisto, keittiö ja kaksi wc:tä
Vapautuminen: Heti vapaa
Paikoitus: Pihalla tilan edessä
Myyntihinta ja kulut
Velatonhinta: 399’800 €
Hoitovastike: Noin 600–800 €/kk
Sähkö- ja vesimaksu: Kulutuksen mukaan
Lämmitys: Kulutuksen mukaan
Vapautuu
Heti
Katutasossa
Näkyvällä paikalla
Ota yhteyttä
Tilat.fi
KTM, LKV Antti Soivio
Näytä puhelinnumero
0400 446 553
OTM, LKV Riikka Tuominen
Näytä puhelinnumero
0400 551 790
KTM, LKV Maria-Sofia Puhakka
Näytä puhelinnumero
0400-150330
HTM, LKV Aleksandra Riki
Näytä puhelinnumero
0400-211288
LKV Tilat.fi on toimitilojen välitykseen erikoistunut yritys.
http://www.tilat.fiPyydä lisätietoa
