Vuokrataan varastotilat - Jyväskylä
Valmetintie 11, Jyskä, 40420 Jyväskylä #10829094
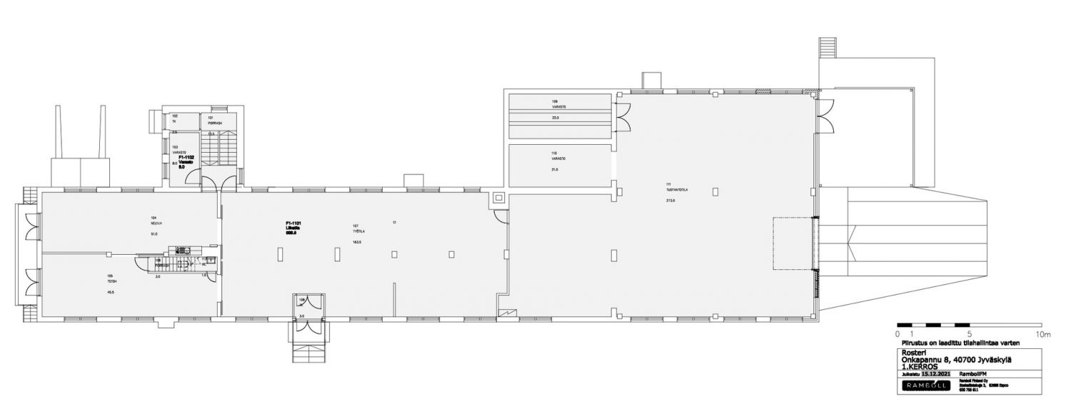
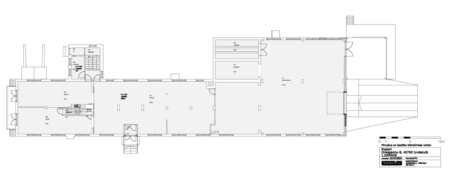
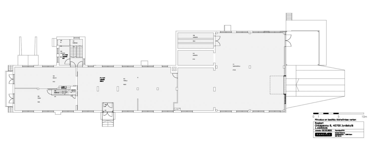
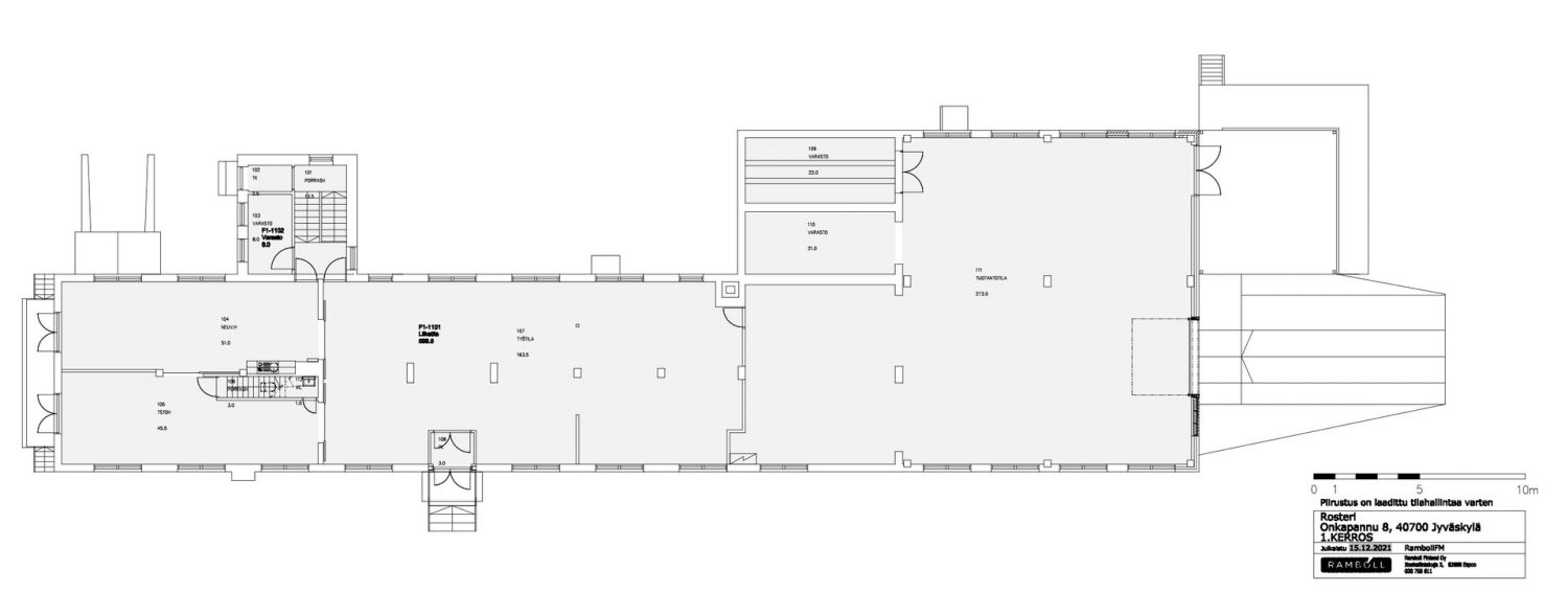
Vuokrattavana 558 m² varasto- ja tuotantotila Jyväskylän Jyskän kaupunginosassa!
Tila sopii erinomaisesti varasto- tai tuotantokäyttöön ja siinä on oma lastauslaituri, joka helpottaa tavaroiden käsittelyä ja logistiikkaa.
Hyvät kulkuyhteydet ja sujuva saavutettavuus.
Tila tarjoaa toimivan ratkaisun yrityksesi tarpeisiin.
Ota yhteyttä ja sovi tutustumiskäynti!
Vuokraan lisätään alv + kulut.
Ota yhteyttä ja kysy lisää!
www.blanctoimitilat.fi
Masa Hakala
masa.hakala@blanckiinteisto.com
+358 40 964 2482
Osoite
Valmetintie 11, 40420 Jyväskylä
Tilatyyppi
Varastotilaa
558 m2
Vapautuu
Kysy
Ota yhteyttä
Pyydä lisätietoa
