Vuokrataan toimistotilat - Helsinki
Itämerenkatu 1, Ruoholahti, 00180 Helsinki #10828624
Vuokrataan vilkkaasta Ruoholahdesta Westport kiinteistöstä tyylikästä toimistotilaa Länsisataman läheisyydessä. Westportin sijainti tarjoaa vaivattoman saavutettavuuden julkisilla kulkuneuvoilla, autolla tai pyöräillen.
Modernit Westportin tilat eivät ainoastaan täytä, vaan ylittävät tämän päivän toimistotiloille asetetut vaatimukset. Valoisa ja raikas yleisilme luo inspiroivan työympäristön, ja joustavat toimistotilat mahdollistavat tilan räätälöinnin juuri toiveidesi mukaisesti.
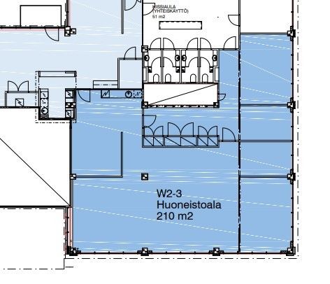
Talossa on panostettu vuokralaisten tarpeisiin, tarjoten kaksi 12 hengen ja kuusi neljän hengen neuvottelutilaa. Lisäksi käytettävissä on uusi 20 hengen studio, joka soveltuu monenlaisiin tarpeisiin, olipa kyseessä hybriditapahtuman kisakatsomo tai innovatiivinen kokoustila. Westportista löytyy myös täysin varusteltu kuntosali sekä viihtyisät sauna- ja kokoustilat, jotka tarjoavat rentoutumisen ja yhteisöllisyyden mahdollisuuksia.
Westportin palvelutarjonta kattaa myös päivittäisen lounaan, jonka voit nauttia katutasossa sijaitsevassa ravintola Gresassa. Edullinen ja laadukas lounas tarjoillaan aivan toimistosi vieressä. Lisäksi Gresa hoitaa tarvittaessa kätevästi kokoustarjoilut suoraan Westportin toimistoihin ja kokoustiloihin.
Yleiset tilat, kuten aula ja lounasravintola, luovat Westportissa viihtyisän ympäristön, joka yhdistää tehokkaan työskentelyn ja rentoutumisen. Tule kokemaan Westportin ainutlaatuinen ilmapiiri, ja vuokraa yrityksellesi toimistotila, joka tarjoaa enemmän kuin pelkän työpaikan.
Vuokraan lisätään alv + kulut
Tiesitkö, että tilan hakijalle palvelumme on maksuton?
Ota yhteyttä ja kysy lisää!
www.blanctoimitilat.fi
Harri Laisto, Kaupanvahvistaja, LKV, Yrittäjä
+358 40 536 5590
harri.laisto@blanckiinteisto.com

Blanc Toimitilat
Harri Laisto
Toimitila-asiantuntija, CEO, Kaupanvahvistaja, LKV
Näytä puhelinnumero
+358405365590