Vuokrataan liiketilat - Järvenpää
Sibeliuksenkatu 10 C 1, Keskusta, 04400 Järvenpää #10827898
Uusi liiketila keskeisellä liikepaikalla kävelykadulla !
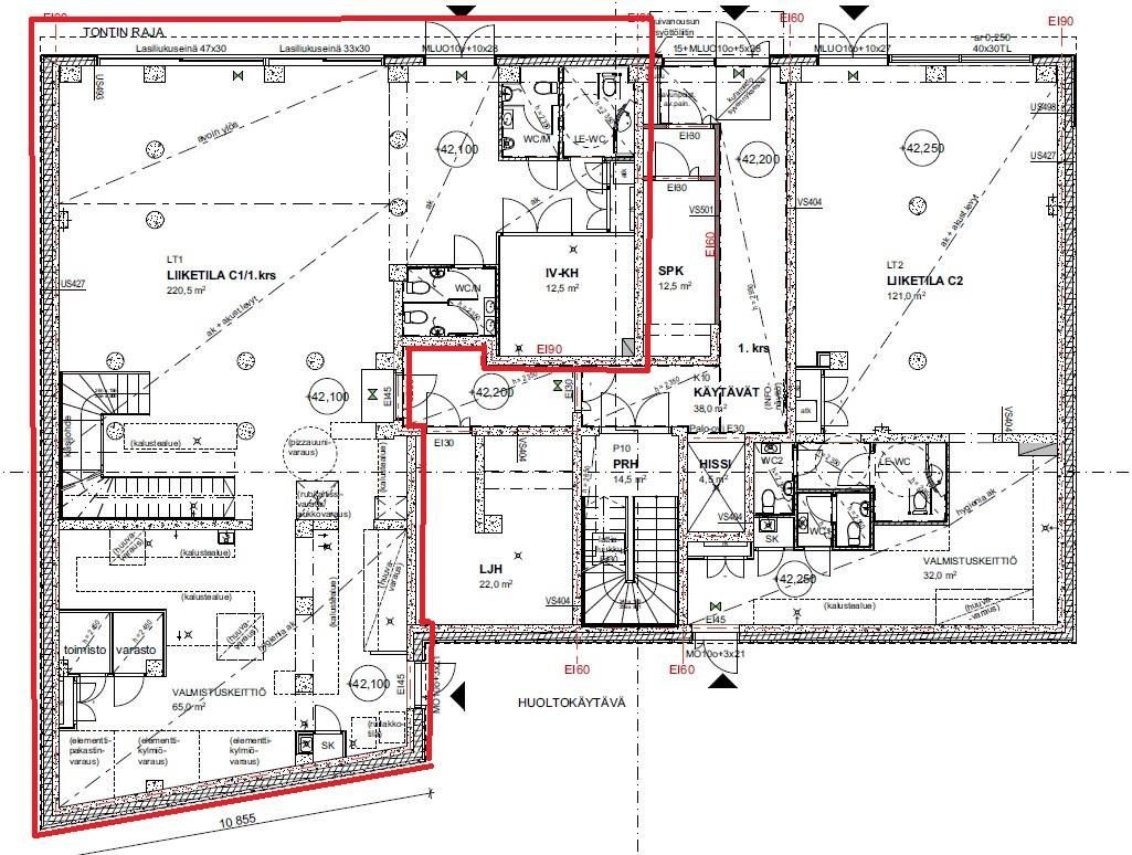
2023 valmistuneen asuinkerrostalon katutasossa sijaitseva näyttävä ja avara liiketila korkealla lasiseinällä.
Tämä tila sopii monenlaiseen käyttöön.
Tilassa on valmius ruokaravintolaksi.
Keittiössä huuvat, rasvakanava ja rasvakaivot.
Liitäntävalmiudet muille kalustetille ja koneille.
Asiakas wc:t, joista yksi inva mitoitettu.
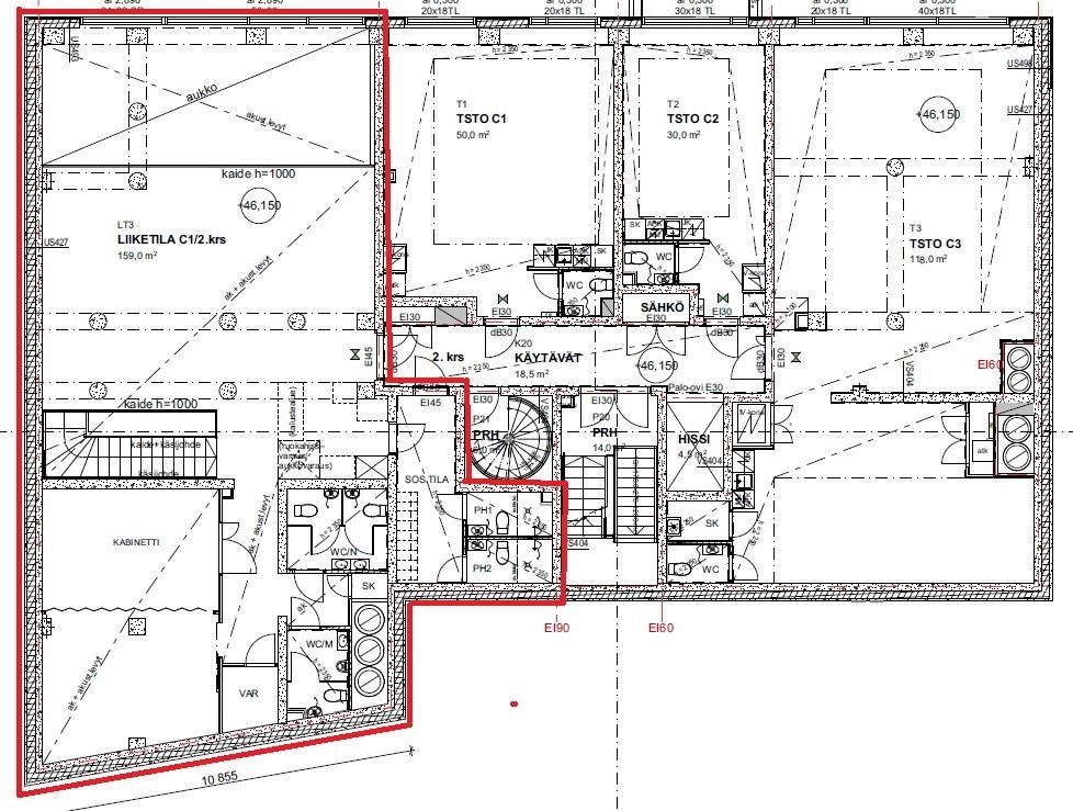
Asiakas - näyttely - myymälä tilat ovat II-kerroksessa.
Tilalla edustalla myös terassivalmius avattavilla lasiovilla.
Esittelyt järjestetään sopimuksen mukaan.
Vuokralaisen tulee tehdä oma sähkösopimus, sekä sopimus tietoliikenneyhteyksistä.
Vesi laskutetaan kulutuksen mukaan.
Ravintolatoiminnan osalta erillinen sopimus jätehuollosta / lisäkustannus.
Vuokrattavana liiketila C 1
1. kerros 220,5 m²
2. kerros 159 m²
Tilassa valmius ravintolakäyttöön.
Varaus terassille.
Vuokrasopimus vuokralla 6850 € /kk + alv vähintään määräaikainen 3 vuoden sopimus / toistaiseksi voimassaoleva, jossa 1. mahdollinen irtisanomisaika 36 kk kuluttua vuokrasuhteen alkamisesta. Irtisanomisaika 3 kk.
Vuokraan lisätään alv 25,5 %.
Vuokravakuus 3 kk alv:sta vuokraa vastaava summa.
Vuokralaisen tehtävä oma sähkösopimus, sekä sopimus tietoliikenneyhteyksistä.
Vesi laskutetaan kulutuksen mukaan.
Vuokrantarkastus elinkustannusindeksin mukaan. Vuokraa tarkastetaan vuosittain 1.1, alkaen vuodesta 2027.
Mikäli indeksi laskee, vuokra ei laske.
Vuokralaisella tulee olla toimintansa kattava vakuutus koko vuokrasuhteen ajan.
Vuokralainen vastaa keittiön koneiden ja kalusteiden asennuksesta, sekä rasvakanavan ja rasvakaivojen puhtaanapidosta / tyhjennyksestä - jotka tulee puhdistaa ja tyhjentää vuokrasuhteen päättyessä.
Samoin ikkunateippaukset ja mahd.valomainos tulee poistaa välittömästi vuokrasuhteen päättyessä.
Erillinen vastuunjakotaulukko muista korjaus ja huoltotöistä.
Asunto Oy Järvenpään Balanssi
Sibeliuksenkatu 10, 04400 JÄRVENPÄÄ
Kerrosala: 6 993 m²
13 kerroksinen asuinkerrostalo.
Valmistumisvuosi 2023
Koneellinen ilmanvaihto + LTO.
Kaukolämpö.
Oma tontti.
Muut tilat:
1. kerros 220,5 m²
2. kerros 159 m²
OP Koti Uusimaa Oy LKV
Toimitilapalvelut
Arkadiankatu 23
00100 HELSINKI
Mika Nyman
Toimitilavälittäjä, Kiinteistöarvioija, LKV, YKV, AKA/KHK
Näytä puhelinnumero
0400 347 758
