Vuokrataan toimistotilat, autotalli/-hallitilat - Jyväskylä

Lapiotie 4, 40320 Jyväskylä #10827864

Hallitilaa Seppälänkankaalta!

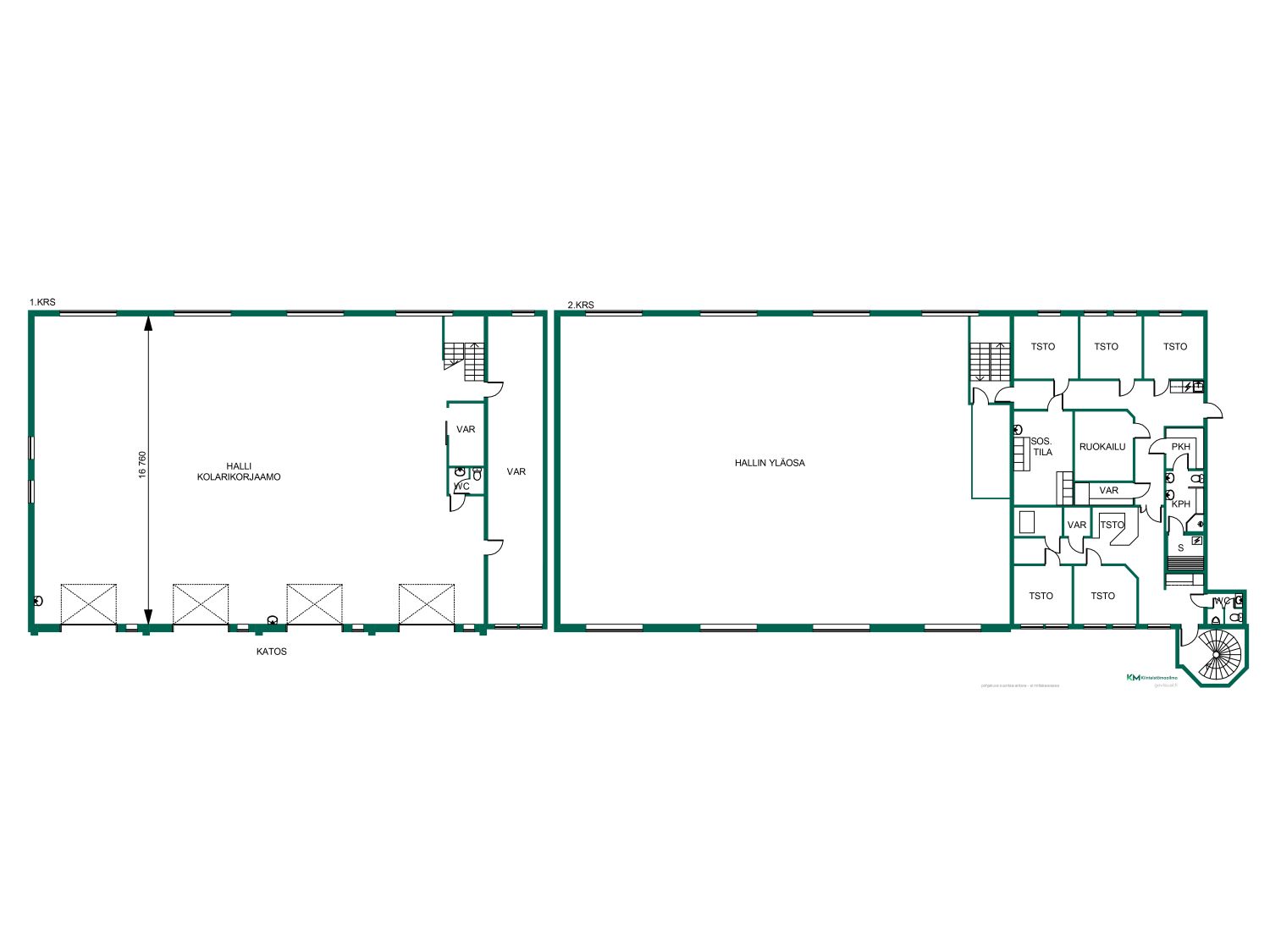
Lapiotien varrella sijaitseva halli, josta puolet vuokrattavana. Hallitilaa n. 400m2, toimistotilaa n. 100m2. Sosiaali- ja toimistotilat ovat toimivat, sekä yläkerrassa on kylpyhuone saunoineen. Tilassa on toiminut aiemmin autokorjaamo, sekä automyymälä, mutta pienillä muutostöillä palvelee myös moneen muuhun käyttöön. Toisessa osassa toimii kiinteistöhuoltoyritys. Olisiko tässä juuri sinun yrityksellesi sopiva toimitila?

Hallin vanha osa on valmistunut vuonna 1983 ja viimeisin iso laajennos on valmistunut vuonna 2005, jossa tämä tila sijaitsee. Julkisivu remontti tehdään kesäkuussa 2025, joten saat edustavan julkisivun yrityksellesi. Ei aiheuta suurta haittaa tilan käytölle. Tila lämpiää kaukolämmöllä, joka sisältyy vuokraan, joten ei yllättäviä laskuja tiedossa. Myös vesi sisältyy vuokraan, joten tarvitset vain sähkösopimuksen ja toiminnallesi vakuutuksen.

Ota yhteyttä ja sovi esittely tulevaan toimitilaasi 0400166246, topi.kovanen@kiinteistomaailma.fi. Tavoitat minut myös Whatsapp:ssa!

Osoite
Lapiotie 4, 40320 Jyväskylä
Tilatyyppi
Toimistotilaa
100 m2
Autotalli/-hallitilaa
400 m2
Yhteensä
500 m2
Tilajako
halli, varasto + toimisto -ja sosiaalitilaa
Tila soveltuu
Autokorjaamo
Vuokra
5160
 
Vuokraan sisältyy vesi, lämpö
Lisätietoa saneerauksista
Laajennus 2005, jossa tila siijaitsee, julkisivuremontti 2025 kesäkuussa
Vapautuu
01.06.2025
Rakennusvuosi
1983
Saneerausvuosi
2005
Kerros
1 / 2
Ota yhteyttä

Vapaaherrantie 2
40100 JYVÄSKYLÄ
Näytä puhelinnumero 0400166246

Pyydä lisätietoa

Kohteesta Lapiotie 4, Jyväskylä

 

B2B palvelut

LASTAUSRATKAISUT

Mainos
Lastauksien ratkaisut tehokkaammin ja turvallisemmin

MARKKINOINTI

Tavoita oikea kohderyhmä!