Myydään liiketilat - Hyvinkää
Hämeenkatu 3 LH 12a, Keskusta, 05800 Hyvinkää #10827644
Liiketila edullisesti aivan Hyvinkään ydinkeskustasta !
Tässä liiketilassa on hyvä yleiskunto ja selkeä, helposti muokattava layout.
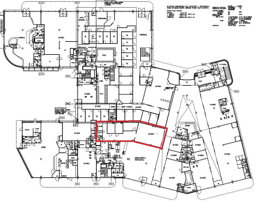
Tila on kauppakeskus Jussintorin 1. kerroksessa ns. katutaso kerroksessa.
Rakennuksessa on tehty vuosien varrella merkittäviä remontteja, jotka parantavat käyttömukavuutta ja toimivuutta.
Tutustu ja esitä tarjouksesi !
Lisätietoja ja esittelyt:
Mika Nyman
0400347758
mika.nyman@op.fi
Osoite
Hämeenkatu 3 LH 12a, 05800 Hyvinkää
Tilatyyppi
Liiketilaa
135 m2
Myyntihinta
5000.00 , velaton myyntihinta 48500.00
Kiinteistö
Energiatodistuksen viimeinen voimassaolopäivä 04.04.2035
Muuta
Kaupankohteena KOY Jussintorin myymälä 12a.
Osakkeet 2975-3131 / 156 kpl.
Hoitovastike 1043 €/kk ( 7€ / jyv.m²), kerroin 149.
ALV vastike 86,42 € /kk (0,58 € / jyv.m²), kerroin 149.
Pääomavastike 460,09 €/kk (2,943 € /os) , jolla lyhennetään huoneistokohtaista lainaosuutta LVIAJS-saneerauksesta, jonka velkaosuus n. 43.500 €
Velkaosuudesta vastaa ostaja.
Huoneiston osalta on hakeuduttu arvonlisäverovelvolliseksi.
Valomainokset/plexikot. 50 €/v
Valomainokset/ruskea kotelo 100 €/v
Autopaikkamaksu 50 € /kk
Koy Jussintorin autopaikat on osoitettu pysäköintihallista ja ne on vuokrattu Hyvinkään kaupungilta. Pysäköintihallin korjaus- ja kunnossapitovastuu on Hyvinkään kaupungilla.
KOY Jussintori, yhtiön perustiedot:
Tontti: Oma 5371 m²
Rakennukset: 1 kpl
Tilavuus: 29.660 m³
Huoneistopinta-ala: 5.982 m³
Osakelukumäärä 7325 kpl.
Valmistumisvuosi: 1981
Liiketalon rakennusaine kivi/ betoni.
Tasakatto, huopakate.
Koneellinen ilmanvaihto.
Kaukolämpö.
Isännöinti: Hyvinkään Tilikeskus Oy
Hoitovastikkeen jyvityskertoimet yhtiöjärjestyksen 5§ mukaan:
huoneisto 1: 0,9. Huoneisto 2: 0,3
I kerros huoneistot 3a, 4-9 ja 11, 12a-26: kerroin 1,1
I kerros huoneistot 3, 10 ja 12: kerroin 1,2
II kerros huoneistot 27-34: kerroin 1,0
Osakkeet 2975-3131 / 156 kpl.
Hoitovastike 1043 €/kk ( 7€ / jyv.m²), kerroin 149.
ALV vastike 86,42 € /kk (0,58 € / jyv.m²), kerroin 149.
Pääomavastike 460,09 €/kk (2,943 € /os) , jolla lyhennetään huoneistokohtaista lainaosuutta LVIAJS-saneerauksesta, jonka velkaosuus n. 43.500 €
Velkaosuudesta vastaa ostaja.
Huoneiston osalta on hakeuduttu arvonlisäverovelvolliseksi.
Valomainokset/plexikot. 50 €/v
Valomainokset/ruskea kotelo 100 €/v
Autopaikkamaksu 50 € /kk
Koy Jussintorin autopaikat on osoitettu pysäköintihallista ja ne on vuokrattu Hyvinkään kaupungilta. Pysäköintihallin korjaus- ja kunnossapitovastuu on Hyvinkään kaupungilla.
KOY Jussintori, yhtiön perustiedot:
Tontti: Oma 5371 m²
Rakennukset: 1 kpl
Tilavuus: 29.660 m³
Huoneistopinta-ala: 5.982 m³
Osakelukumäärä 7325 kpl.
Valmistumisvuosi: 1981
Liiketalon rakennusaine kivi/ betoni.
Tasakatto, huopakate.
Koneellinen ilmanvaihto.
Kaukolämpö.
Isännöinti: Hyvinkään Tilikeskus Oy
Hoitovastikkeen jyvityskertoimet yhtiöjärjestyksen 5§ mukaan:
huoneisto 1: 0,9. Huoneisto 2: 0,3
I kerros huoneistot 3a, 4-9 ja 11, 12a-26: kerroin 1,1
I kerros huoneistot 3, 10 ja 12: kerroin 1,2
II kerros huoneistot 27-34: kerroin 1,0
Lisätietoa saneerauksista
2025 Vesijohto-, ja viemärijärjestelmien kuntotutkimus.
2024 Kuntoarvio.
2023 Radan puoleisen päädyn rapun vesikatteen saneeraus.
2022 Rek-keskus ja anturit uusittu (rasvakaivo). Ilmanvaihdon nuohous ja säätö
Vss-tiiveyskoe ja tarkastus. 1.krs Op:n hlökunnan wc:n viemärilinjan sukitus runkolinjaan saakka.
2021 Paloilmoitinjärjestelmä, määräaikaistarkastuksen mukaiset puutteet korjattu.
2018 Osuuspankin toimistotilojen yläpuolella oleva pitkän viemärin vaakalinjan sukitus.
2012 Taidemuseon kattoikkunoiden uusiminen.
2011 Lvi-tekniikan, rakennusautomaation, sähköjen, hissien ja vesikatteen saneeraus.
Pidempi korjaushistoria vuodesta 2000 alkaen erillisessä Korjauspäiväkirjassa
PTS 2024 -2034 mukaan isoinpina hankkeina on esitetty:
2026: Uusitaan TK/PK06 ja rasvanpoiston huippuimuri ja Höyrykostuttimen uusinta.
2028 Varaus vesijohtojen ja viemärien saneeraukseen (80-luvun vesijohdot ja viemärit, joita ei ole uusittu
tai pinnoitettu), Tonttivesi- ja tonttiviemäreijohtojen uusiminen, Vesikalusteiden ja lattiakaivojen uusiminen.
2032: Vedenjäähdytyskoneen, pumppujen ja nestejäähdyttimien uusinta.
2034: Käyttöveden moottoriventtiilien toimilaitteen uusinta ja patteriventtilien ja termostaattien uusinta.
Verkoston tasapainotus
2024 Kuntoarvio.
2023 Radan puoleisen päädyn rapun vesikatteen saneeraus.
2022 Rek-keskus ja anturit uusittu (rasvakaivo). Ilmanvaihdon nuohous ja säätö
Vss-tiiveyskoe ja tarkastus. 1.krs Op:n hlökunnan wc:n viemärilinjan sukitus runkolinjaan saakka.
2021 Paloilmoitinjärjestelmä, määräaikaistarkastuksen mukaiset puutteet korjattu.
2018 Osuuspankin toimistotilojen yläpuolella oleva pitkän viemärin vaakalinjan sukitus.
2012 Taidemuseon kattoikkunoiden uusiminen.
2011 Lvi-tekniikan, rakennusautomaation, sähköjen, hissien ja vesikatteen saneeraus.
Pidempi korjaushistoria vuodesta 2000 alkaen erillisessä Korjauspäiväkirjassa
PTS 2024 -2034 mukaan isoinpina hankkeina on esitetty:
2026: Uusitaan TK/PK06 ja rasvanpoiston huippuimuri ja Höyrykostuttimen uusinta.
2028 Varaus vesijohtojen ja viemärien saneeraukseen (80-luvun vesijohdot ja viemärit, joita ei ole uusittu
tai pinnoitettu), Tonttivesi- ja tonttiviemäreijohtojen uusiminen, Vesikalusteiden ja lattiakaivojen uusiminen.
2032: Vedenjäähdytyskoneen, pumppujen ja nestejäähdyttimien uusinta.
2034: Käyttöveden moottoriventtiilien toimilaitteen uusinta ja patteriventtilien ja termostaattien uusinta.
Verkoston tasapainotus
Vapautuu
Heti
Ota yhteyttä
OP Koti Uusimaa Oy LKV
Toimitilapalvelut
Arkadiankatu 23
00100 HELSINKI
Mika Nyman
Toimitilavälittäjä, Kiinteistöarvioija, LKV, YKV, AKA/KHK
Näytä puhelinnumero
0400 347 758
Pyydä lisätietoa
