Vuokrataan tuotantotilat, varastotilat, työtilat - Tuusula
Tuotantotie 28, 04300 Tuusula #10827023
Kiinnostaako teitä juuri yrityksellenne rakennetut tilat?
Rykmentinportin teollisuusalueelle rakennetaan 1300 m2 teollisuushalli, joka soveltuu moneen käyttöön.
Osoite
Tuotantotie 28, 04300 Tuusula
Tilatyyppi
Tuotantotilaa
500 - 1300 m2
Varastotilaa
500 - 1300 m2
Työtilaa
500 - 1300 m2
Yhteensä
500 - 1300 m2
Tilajako
Jaettavissa
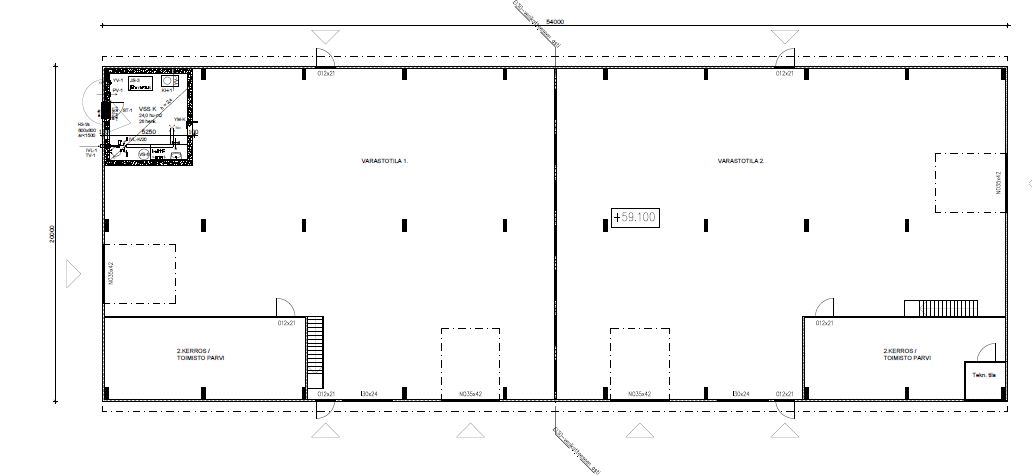
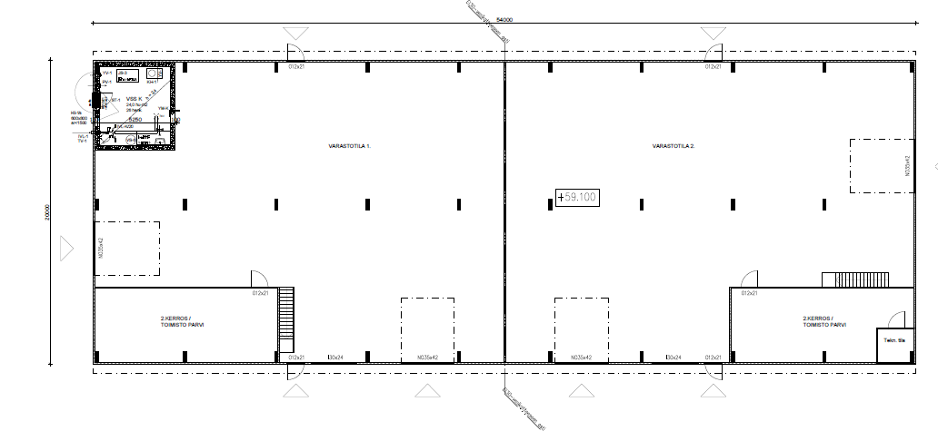
Rakennuksen pinta-ala on 1300 m2 ja se on jaettavissa kahdelle käyttäjälle.
Pohjapiirros
Tila soveltuu
Autokorjaamo, elintarviketila
Sijainti
Hyvä sijainti Tuuslulassa Rykmentinportin teollisuusalueella.
Ympäristö
Teollisuusalue
Pysäköinti
Kiinteistön alueella tilaa pysäköintiin.
Muuta
Rykmentinportin teollisuusalueella on rakenteilla uudisrakennus, joka suunnitellaan ja rakennetaan toiveidenne mukaisesti. Rakennuksen kokonaispinta-ala on 1300 m2 ja se voidaan jakaa kahdelle käyttäjälle.
Hallin vapaa korkeus noin 6 m. Hallin yhteyteen voidaan sijoittaa tarvittava määrä toimistotiloja.
Nosto-ovien lukumäärä ja sijainti sekä hallin varustelu vooidaan toteuttaa tarpeen mukaan. Halli voidaan helposti varustaa esimerkiksi lattiakaivoilla, tehokkaammalla ilmanvaihdolla, siltanosturilla tai kylmälaitteilla.
Halli valmistuu ja tilojen käyttöönotto sopimuksen mukaan vuoden 2026 aikana.
Hallin vapaa korkeus noin 6 m. Hallin yhteyteen voidaan sijoittaa tarvittava määrä toimistotiloja.
Nosto-ovien lukumäärä ja sijainti sekä hallin varustelu vooidaan toteuttaa tarpeen mukaan. Halli voidaan helposti varustaa esimerkiksi lattiakaivoilla, tehokkaammalla ilmanvaihdolla, siltanosturilla tai kylmälaitteilla.
Halli valmistuu ja tilojen käyttöönotto sopimuksen mukaan vuoden 2026 aikana.
Vapautuu
Heti
Katutasossa
Jaettavissa
Siltanosturi
Ota yhteyttä
Pyydä lisätietoa
