Myydään toimistotilat, tuotantotilat, varastotilat, työtilat, tontti, autotalli/-hallitilat - Oulu
Piuhatie 11, 90620 Oulu #10826541
Myydään Kiinteistö Oy Piuhatie 11 nimisen keskinäisen Koy:n koko osakekanta!
Yhtiö omistaa Konetien ja Piuhatien risteyksessä, erittäin näkyvällä paikalla olevan toimisto- ja varastorakennuksen.
Hyvät remontoidut toimistotilat voidaan jakaa vaikka kahdelle käyttäjälle. Omat sisäänkäynnit molempiin valmiina.
Osoite
Piuhatie 11, 90620 Oulu
Tilatyyppi
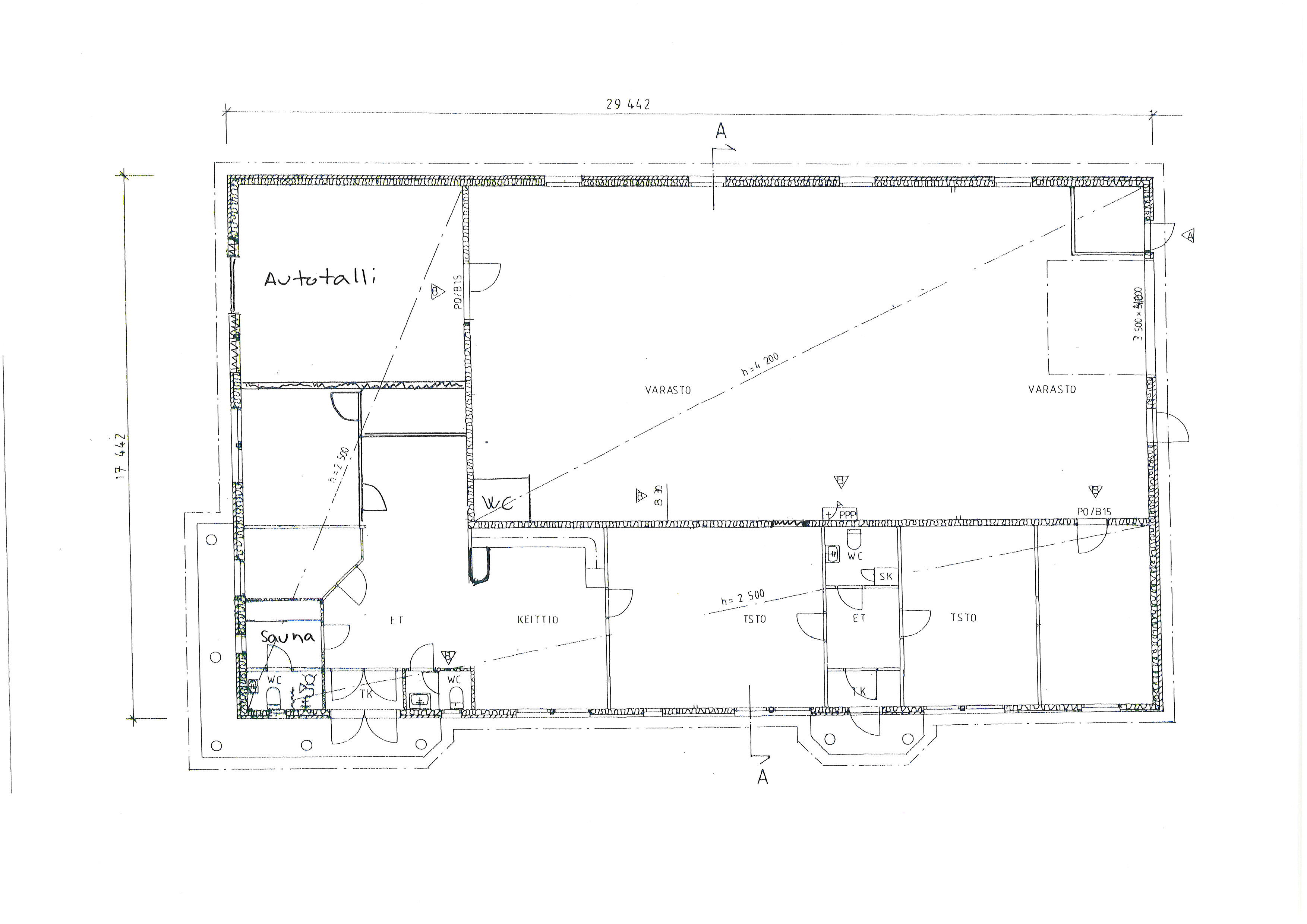
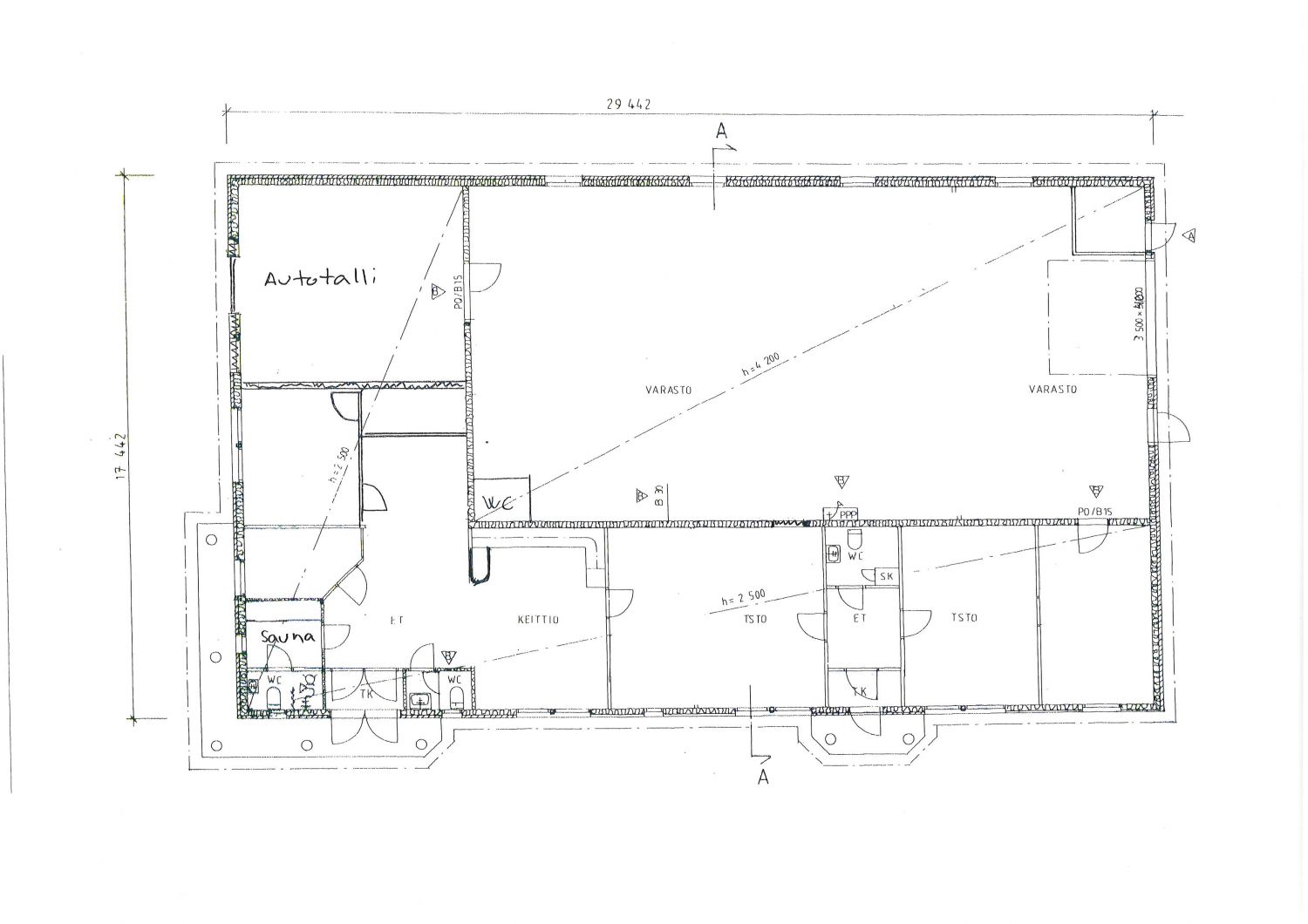
Toimistotilaa
206 m2
Tuotantotilaa
227 m2
Varastotilaa
227 m2
Työtilaa
227 m2
Tontti
3500 m2
Autotalli/-hallitilaa
45 m2
Yhteensä
478 m2
Pohjapiirros
Myyntihinta
365.000 EUR, ei lainaosuutta
Kiinteistö
Oulun kaupungin vuokratontti, vuokra-aika 31.12.2055 saakka. Vuosivuokra 2024 oli 3198€.
Sijainti
Konetien ja Piuhatien risteyksessä
Pysäköinti
Piha-alueella runsaasti paikkoja
Kulkuyhteydet
Helposti Kuusamontieltä. Bussit myös Kuusamontietä pitkin.
Muuta
Rakennus sijaitsee Oulun kaupungin vuokratontilla. Vuokrasopimus voimassa 31.12.2055 saakka. Lämmitysmuotona on kaukolämpö ja rakennuksessa on koneellinen tulo- ja poisto ilmanvaihto. Piha-alueet on asfaltoitu.
Rakennusoikeuttakin on jäljellä vielä reilut 1000m².
Hoitokulut yht. 14.602€/ vuosi.
Rakennusoikeuttakin on jäljellä vielä reilut 1000m².
Hoitokulut yht. 14.602€/ vuosi.
Lisätietoa saneerauksista
Toimistotilat remontoitu n.10 vuotta sitten
Vapautuu
Kuukausi kaupan teosta
Rakennusvuosi
1990
Energiatehokkuusluokka
Ei lain edellyttämää energiatodistusta
Näkyvällä paikalla
Ota yhteyttä
Pohjois-Suomen Toimitilat Oy
Sepänkatu 20, 90100 Oulu
Pekka Valkola
Näytä puhelinnumero
044 311 0555
Pyydä lisätietoa
