Vuokrataan toimistotilat, liiketilat, näyttelytilat, tuotantotilat, varastotilat, työtilat, tontti, autotalli/-hallitilat - Salo
Salitunkatu 7, 24100 Salo #10825756
Hallitilaa ja toimistoa Meriniityssä *Korkea tila *Isot ovet *Iso tontti
Osoite
Salitunkatu 7, 24100 Salo
Tilatyyppi
Toimistotilaa
286 m2
Liiketilaa
766 m2
Näyttelytilaa
766 m2
Tuotantotilaa
766 m2
Varastotilaa
766 m2
Työtilaa
766 m2
Tontti
5800 m2
Autotalli/-hallitilaa
766 m2
Yhteensä
766 m2
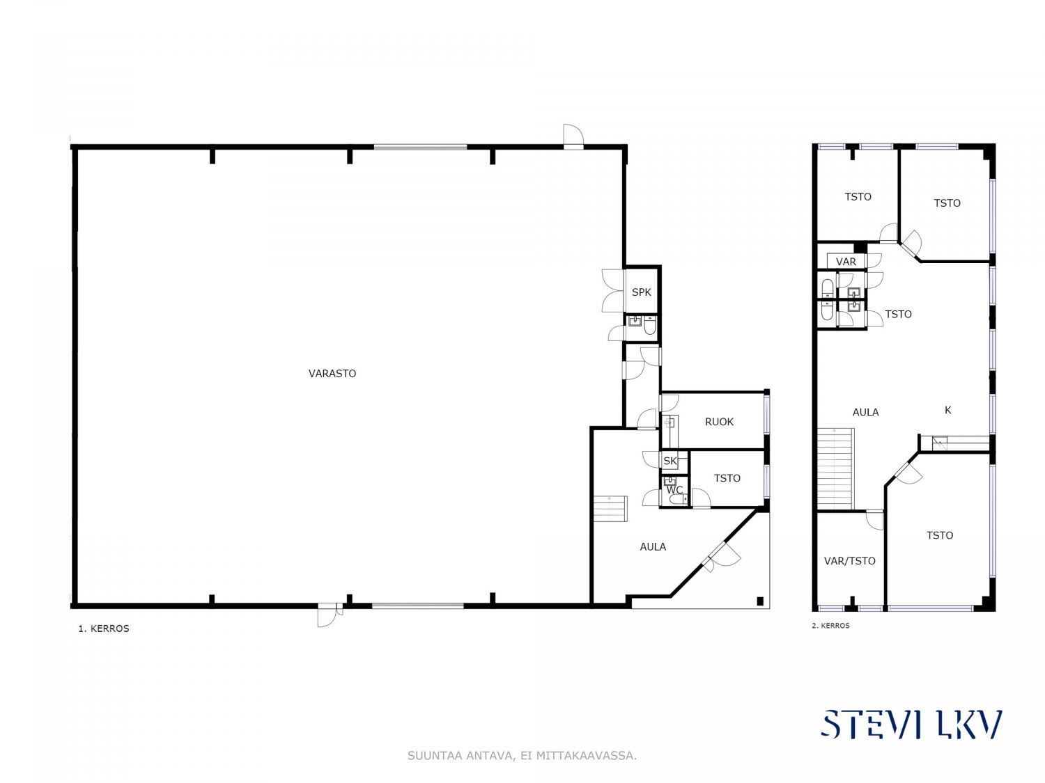
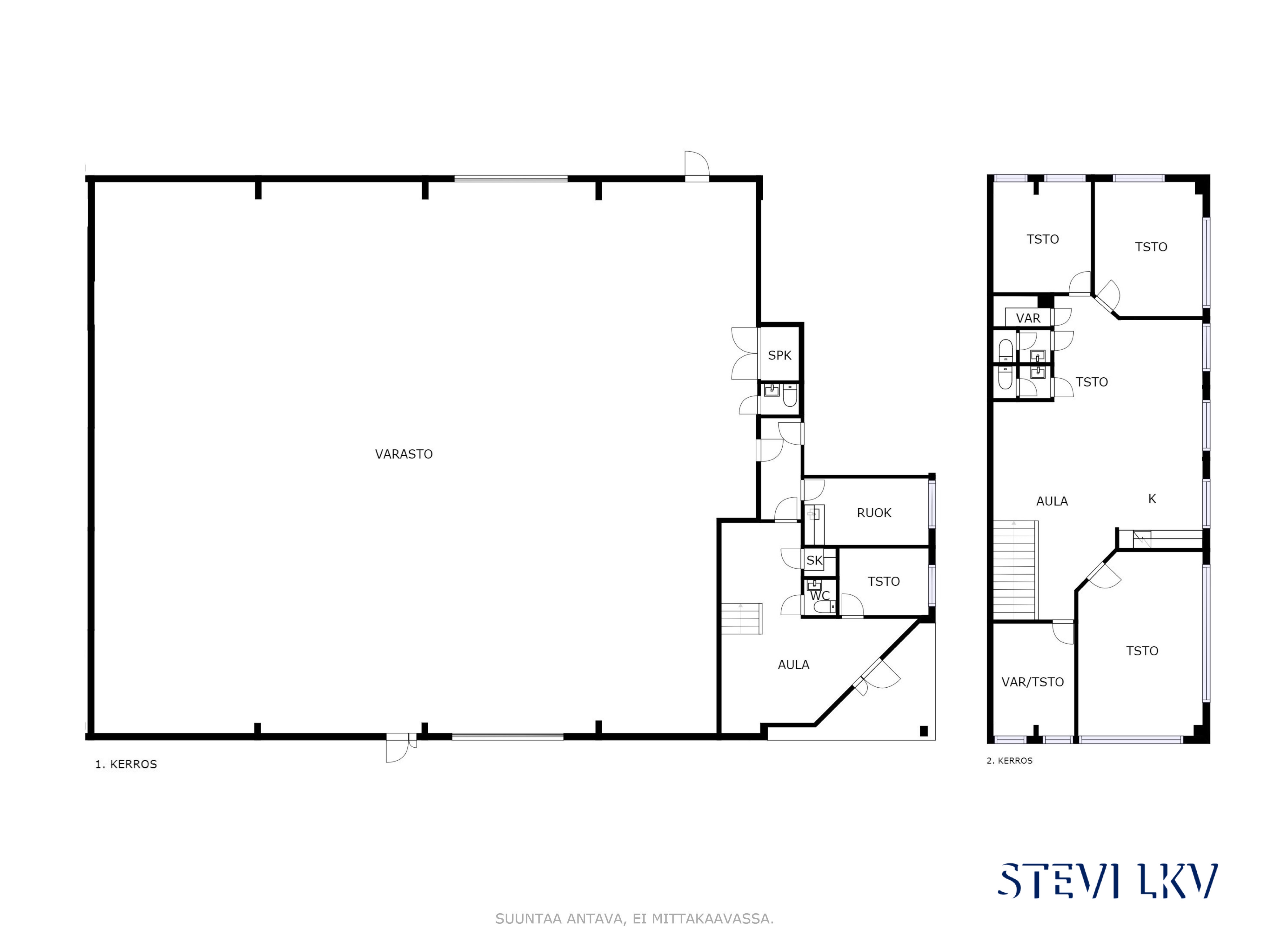
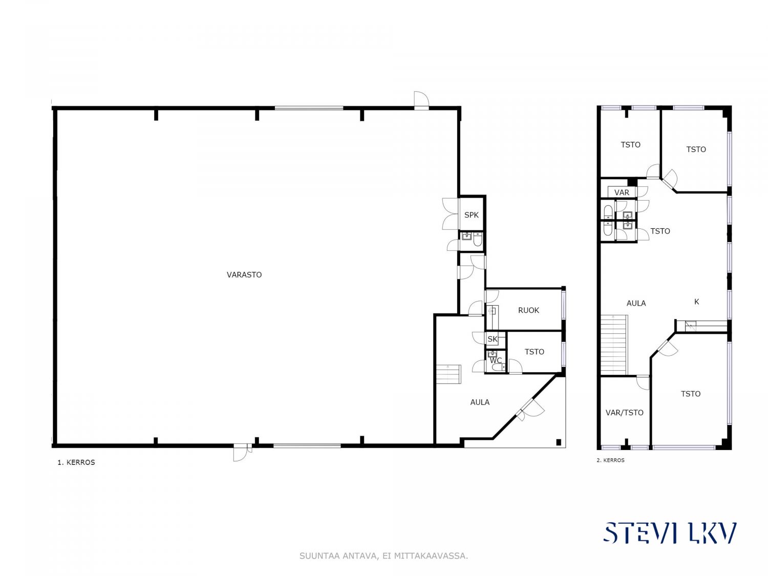
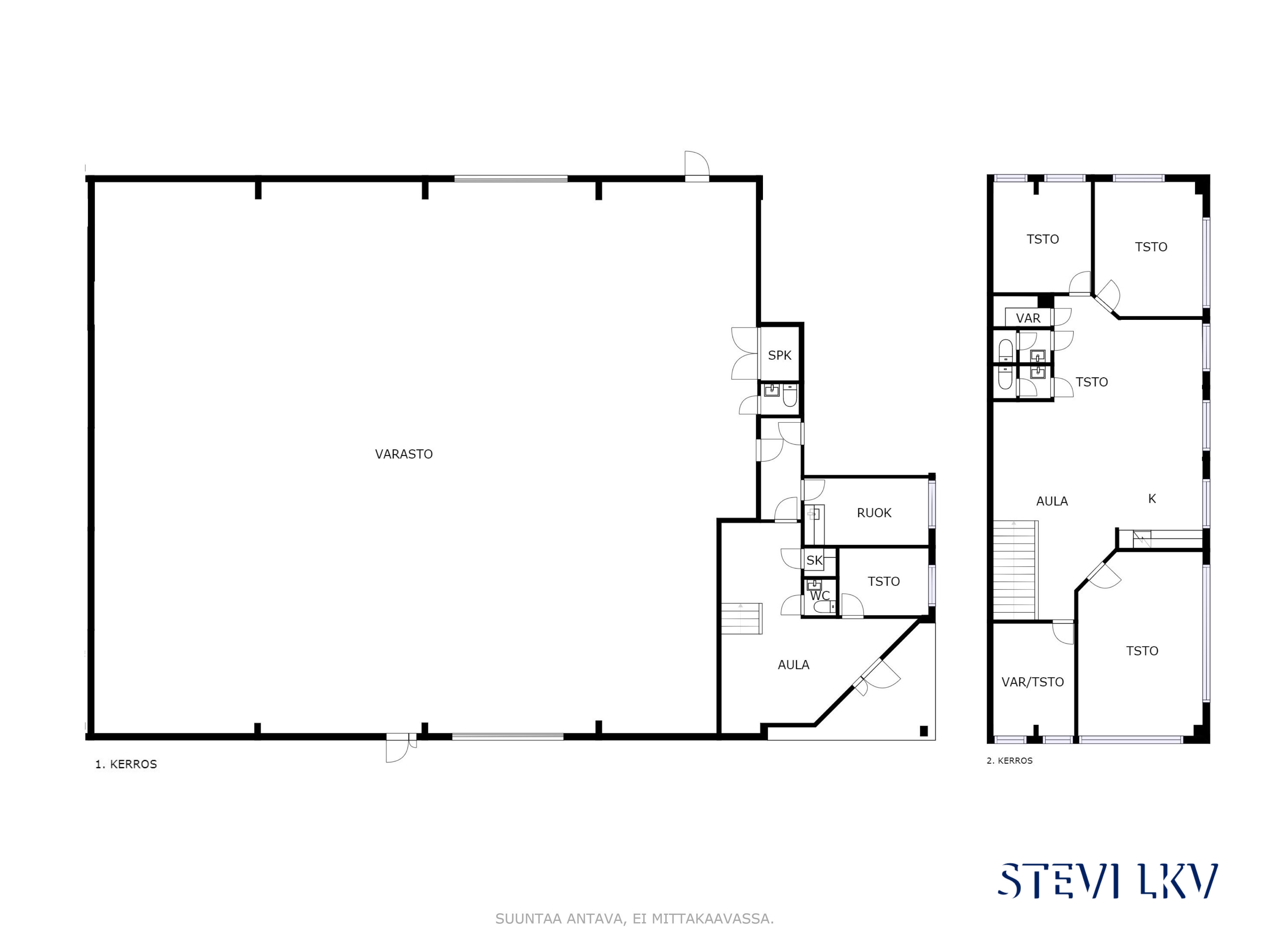
Pohjapiirros
Vuokra
4880€/kk + alv + kulut
Kiinteistö
Hallitilaa ja toimistoa teollisuusalueella Meriniityssä.
Tilat soveltuvat työtilaksi, varastoksi, myymäläksi tai tuotantotilaksi
Samassa kiinteistössä toimii Traktorikone, nyt vuokrattavissa tiloissa on Sairaanhoitopiiri ja vapautuu heiltä 1.7.2025 alkaen.
Korkeaa hallitilaa noin 480m², lämmintä varastotilaa/sosiaalitilaa 130m² ja toimistotilaa/sosiaalitilaa 156m².
Yhteensä noin 766m2 - Vuokra 4880€/kk.
Vuokrat noin: Hallitila 5,5€/m2, toimisto ja varasto 8€/m2. + alv25,5%.
+kulut.
Halli betonilattia lattiakaivoineen, joka kestää raskaan kaluston.
Korkeat nosto-ovet-läpiajettava halli. Iso piha ja uusi liittymä tulee tielle. Takapiha mahdollistaa pressu säilytystilaa yms, takapiha on tasaista kenttää.
Ilmalämpöpumppu, lattiakaivo, korkeita nosto-ovia (korkeus 4,5 metriä, leveys 4 metriä), käyntiovi, huippuimuri & pihalla kameravalvonta.
Vapaa sisäkorkeus noin 6 metriä.
Tilassa on valmiina toimisto- ja sosiaalitilat.
Piha-aluetta on tilojen edessä ja takapihalla. ISO PIHA-ALUE (pihatilaa noin 2000m2 ja etupihaa myös käytössä. Tontti on noin 5800m2).
Vuokrataan yhdessä tai erikseen.
Toimitila terveisin,
Stefan Virtanen
Kiinteistönvälittäjä | LKV | LVV | KTM | Yrittäjä
stefan@stevilkv.com | 0400 999 900
www.stevilkv.com
Tilat soveltuvat työtilaksi, varastoksi, myymäläksi tai tuotantotilaksi
Samassa kiinteistössä toimii Traktorikone, nyt vuokrattavissa tiloissa on Sairaanhoitopiiri ja vapautuu heiltä 1.7.2025 alkaen.
Korkeaa hallitilaa noin 480m², lämmintä varastotilaa/sosiaalitilaa 130m² ja toimistotilaa/sosiaalitilaa 156m².
Yhteensä noin 766m2 - Vuokra 4880€/kk.
Vuokrat noin: Hallitila 5,5€/m2, toimisto ja varasto 8€/m2. + alv25,5%.
+kulut.
Halli betonilattia lattiakaivoineen, joka kestää raskaan kaluston.
Korkeat nosto-ovet-läpiajettava halli. Iso piha ja uusi liittymä tulee tielle. Takapiha mahdollistaa pressu säilytystilaa yms, takapiha on tasaista kenttää.
Ilmalämpöpumppu, lattiakaivo, korkeita nosto-ovia (korkeus 4,5 metriä, leveys 4 metriä), käyntiovi, huippuimuri & pihalla kameravalvonta.
Vapaa sisäkorkeus noin 6 metriä.
Tilassa on valmiina toimisto- ja sosiaalitilat.
Piha-aluetta on tilojen edessä ja takapihalla. ISO PIHA-ALUE (pihatilaa noin 2000m2 ja etupihaa myös käytössä. Tontti on noin 5800m2).
Vuokrataan yhdessä tai erikseen.
Toimitila terveisin,
Stefan Virtanen
Kiinteistönvälittäjä | LKV | LVV | KTM | Yrittäjä
stefan@stevilkv.com | 0400 999 900
www.stevilkv.com
Sijainti
Meriniitty
Ympäristö
Teollisuutta & liiketoimintaa
Pysäköinti
Pihalla
Palvelut
Alueen palvelut
Kulkuyhteydet
Hyvät
Vuokralaisia
Kysy lisää Stevi puh. 0400 999 900 / stefan@stevilkv.com
Vapautuu
01.07.2025
Rakennusvuosi
1993
Kerros
1 / 2
Katutasossa
Näkyvällä paikalla
Ota yhteyttä
Stevi LKV | Kiinteistönvälitys & Vuokravälitys
Stefan Virtanen
LKV, KTM, Yrittäjä
Näytä puhelinnumero
0400 999 900
stefan@stevilkv.com
Reipasta palvelua ja hyvää konsultointia.
Soita tai laita spostia ja kerro tila tarpeesi; tämä on ilmainen palvelu tilaa etsivälle (vuokranantaja maksaa palkkion).
Toimitilojen myynti & vuokraus.
Pyydä lisätietoa
