Vuokrataan toimistotilat - Helsinki
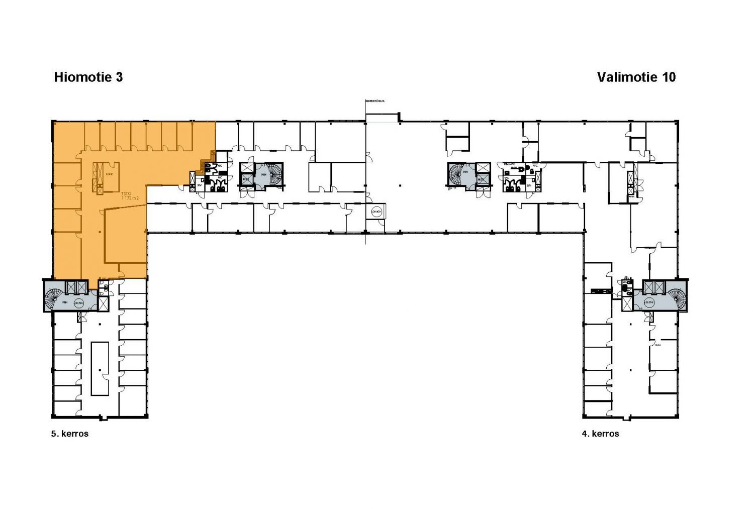
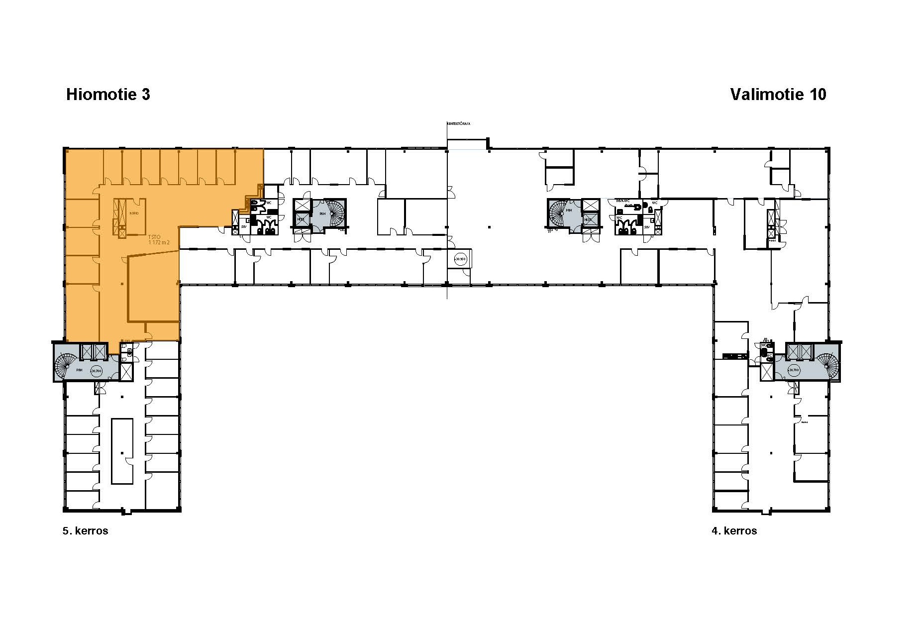
Hiomotie 3 5.krs 440 m², Hiomotie 3, Pitäjänmäki, 00380 Helsinki #10825565
Toimistotila Hiomotien rakennuksen puolella 5. kerroksessa. Kokonaisuus sisältää avointa olohuonemaista tilaa, toimistohuoneita sekä neuvottelutilaa. Omat wc-tilat, taukotila sekä keittiö. Tila on siisti ja remontoitu ja joka on monipuolisesti muunneltavissa vuokralaisen käyttöön sopivaksi esimerkiksi muuttamalla huonejärjestystä ja avaamalla tilaa avonaisemmaksi. Suunnittelemme tarvittavat remontit ja muutostyöt aina asiakaskohtaisesti.
Valimo Centerin kaikkia vuokralaisia palvelee Valimotie 13a:n aulapalvelu, josta hoituu myös postien vastaanotto, edelleenlähetys sekä pakettipalvelut. Samasta rakennuksesta löydät talon oman kuntosalin, jonne pääsee kulkuavaimella klo 5-21. Katutasossa runsaan lounaan arkipäivisin tarjoilee Ravintola Factory. Mikäli tarvetta on kokoustiloille, löytyy niitä joustavasti vuokrattavana aina 2-20:lle henkilölle.
Katso videoesittely Valimo Centeristä: https://youtu.be/W4-0X0CgEa0
Tästä kohteesta voit olla yhteydessä pääkaupunkiseudun vuokrauspäällikköömme Artoon.
Puh. 044 906 2226 / Arto Haavisto
- Valmistunut vuonna 1994, peruskorjattu 2017
- Pinta-ala: 10 911 m², kerrospinta-ala 1 172 m², jaettavissa 300 m² / 800 m²
- Kerrosten lukumäärä: 6
- Lastauslaituri (Valimotie 10 kanssa yhteinen)
- 3 henkilöhissiä
- Koneellinen jäähdytetty ilmanvaihto
- Turvallista kulunvalvottua tilaa
- Autopaikat: 270 kpl autohallissa, katoksessa ja pihapaikoilla (yhdessä Valimotie 10:n kanssa)
Jaettavissa
Hissi
Lastauslaituri
Nurmi-Yhtiöt Oy
Nurmi Kiinteistöt
Jousitie 7
20760 Piispanristi
puh.
Näytä puhelinnumero
044 906 2226
/ Arto Haavisto (pk-seutu)
puh.
Näytä puhelinnumero
040 624 0344
/ Ilias Niemi (Varsinais-Suomi)
