Vuokrataan - Tampere
Patamäenkatu 16, Sarankulma, 33900 Tampere #10825242
Osoite
Patamäenkatu 16, 33900 Tampere
Muuta
Nyt vuokrattavissa hyvältä sijainnilta hyvien liikenneyhteyksien ääreltä reilusti toimistotilaa.
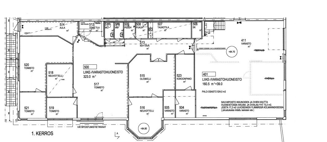
Toimistotilan pinta-ala on 323 m2 (ks. pohjakuva). Toimiston tilavan avotilan lisäksi kohteesta löytyy toimisto- ja neuvotteluhuoneita. Lisäksi myös wc, suihku ja toimistokeittiö.
Vakuus 2 kk.
Vesi kulutuksen mukaan.
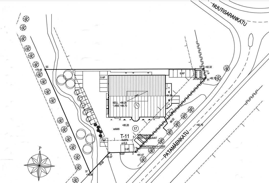
Pihassa runsaasti pysäköintitilaa ja se on asfaltoitu.
Kysy näyttöä tai lisätietoja jani.kaisto@kiinteistotahkola.fi tai 040 960 6424.
Toimistotilan pinta-ala on 323 m2 (ks. pohjakuva). Toimiston tilavan avotilan lisäksi kohteesta löytyy toimisto- ja neuvotteluhuoneita. Lisäksi myös wc, suihku ja toimistokeittiö.
Vakuus 2 kk.
Vesi kulutuksen mukaan.
Pihassa runsaasti pysäköintitilaa ja se on asfaltoitu.
Kysy näyttöä tai lisätietoja jani.kaisto@kiinteistotahkola.fi tai 040 960 6424.
Vapautuu
01.11.2025
Kerros
1
Ota yhteyttä
Kiinteistö-Tahkola Oy
Kuokkamaantie 4, 33800 Tampere
Näytä puhelinnumero
044 705 0522
Jani Kaisto
Näytä puhelinnumero
040 960 6424
Pyydä lisätietoa
