Vuokrataan toimistotilat - Helsinki
Mikonkatu 17 B, Kluuvi, 00100 Helsinki #10825074
Avaraa ja muuntojoustavaa toimistotilaa Fenniakorttelin sydämessä.
Osoite
Mikonkatu 17 B, 00100 Helsinki
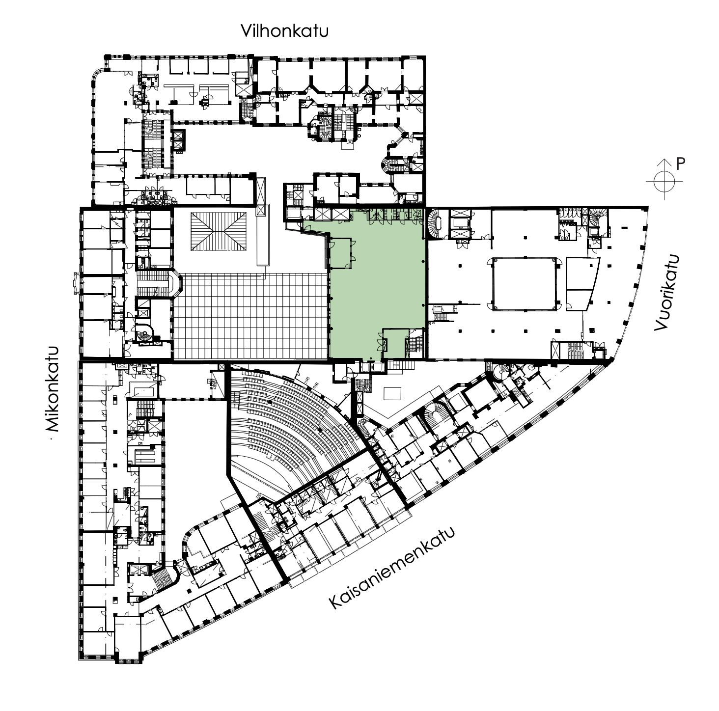
Tilatyyppi
Toimistotilaa
521 m2
Pohjapiirros
Kiinteistö
Moderni toimisto- ja liikekiinteistö Fennia-korttelin sisäpihalla.
Fennia-talon sisäpihalla sijaitseva moderni toimistorakennus on valmistunut vuonna 2002. Katutasossa on liiketiloja ja ylemmissä kerroksissa on toimistotilaa, tilat ovat helposti muunneltavissa yrityskohtaisesti. Rautatientorin ääressä sijaitsevalle kiinteistölle on erinomaiset julkisen liikenteen yhteydet ympäri pääkaupunkiseutua. Tähän kiinteistöön pääset kulkemaan kuivin jaloin suoraan metrosta!
Kaikille Fennia-korttelin kiinteistöille on myönnetty BREEAM In-Use Excellent -tason ympäristösertifikaatti ja koko kortteli toimii 100 % päästöttömällä energialla, kuten tuulisähköllä ja uusiutuvalla kaukolämmöllä. Lisäksi Mikonkatu 17 B katolle asennettu aurinkovoimala tuottaa uusiutuvaa energiaa kiinteistön käyttöön.
Fennia-talon sisäpihalla sijaitseva moderni toimistorakennus on valmistunut vuonna 2002. Katutasossa on liiketiloja ja ylemmissä kerroksissa on toimistotilaa, tilat ovat helposti muunneltavissa yrityskohtaisesti. Rautatientorin ääressä sijaitsevalle kiinteistölle on erinomaiset julkisen liikenteen yhteydet ympäri pääkaupunkiseutua. Tähän kiinteistöön pääset kulkemaan kuivin jaloin suoraan metrosta!
Kaikille Fennia-korttelin kiinteistöille on myönnetty BREEAM In-Use Excellent -tason ympäristösertifikaatti ja koko kortteli toimii 100 % päästöttömällä energialla, kuten tuulisähköllä ja uusiutuvalla kaukolämmöllä. Lisäksi Mikonkatu 17 B katolle asennettu aurinkovoimala tuottaa uusiutuvaa energiaa kiinteistön käyttöön.
Sijainti
Kiinteistön vieressä sijaitsevat Rautatieasema ja Rautatientorin linja-autoasema takaavat erinomaisen julkisen liikenteen saavutettavuuden, jota täydentää korttelin alapuolella sijaitseva Helsingin yliopiston metroasema.
Pysäköinti
Autopaikat P-Eliel ja P-Kluuvi
Palvelut
Fennia-korttelissa on mittava määrä ravintoloita ja muita viihdepalveluita. Keskeinen sijainti ydinkeskustassa takaa sen, että kaikki kaupalliset ja yrityspalvelut sijaitsevat lyhyen kävelymatkan etäisyydellä. Työmatkapyöräilijöita varten löytyy pyörävarasto sekä sosiaalitilat.
Kulkuyhteydet
Lähimmälle bussipysäkille 100 m
Lähimmälle juna-asemalle 100 m
Lähimmälle metroasemalle 100 m
Lähimmälle raitiovaunupysäkille 200 m
Lentokentälle 30 min
Lähimmälle juna-asemalle 100 m
Lähimmälle metroasemalle 100 m
Lähimmälle raitiovaunupysäkille 200 m
Lentokentälle 30 min
Vapautuu
Kysy
Rakennusvuosi
2002
Kerros
2
Energiatehokkuusluokka
B2018
Ympäristöluokitus
BREEAM In-Use Excellent,GRESB Global Sector Leader 2025
Ota yhteyttä
Sponda Oy
Yrjönkatu 29C, 00100 Helsinki
Näytä puhelinnumero
020 43131
Laura Toponen
Senior Leasing Manager
Näytä puhelinnumero
+35850 413 4223
Sponda Oy
https://www.sponda.fiPyydä lisätietoa
