Vuokrataan toimistotilat, tuotantotilat, varastotilat - Pirkkala
Lasikaari 1, 33960 Pirkkala #10824965
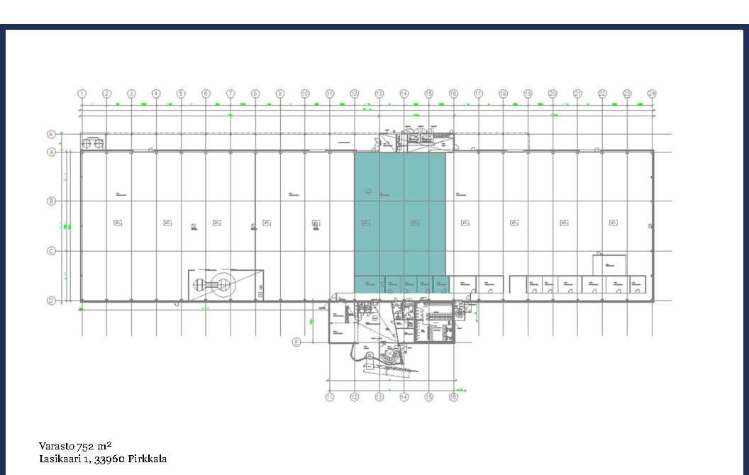
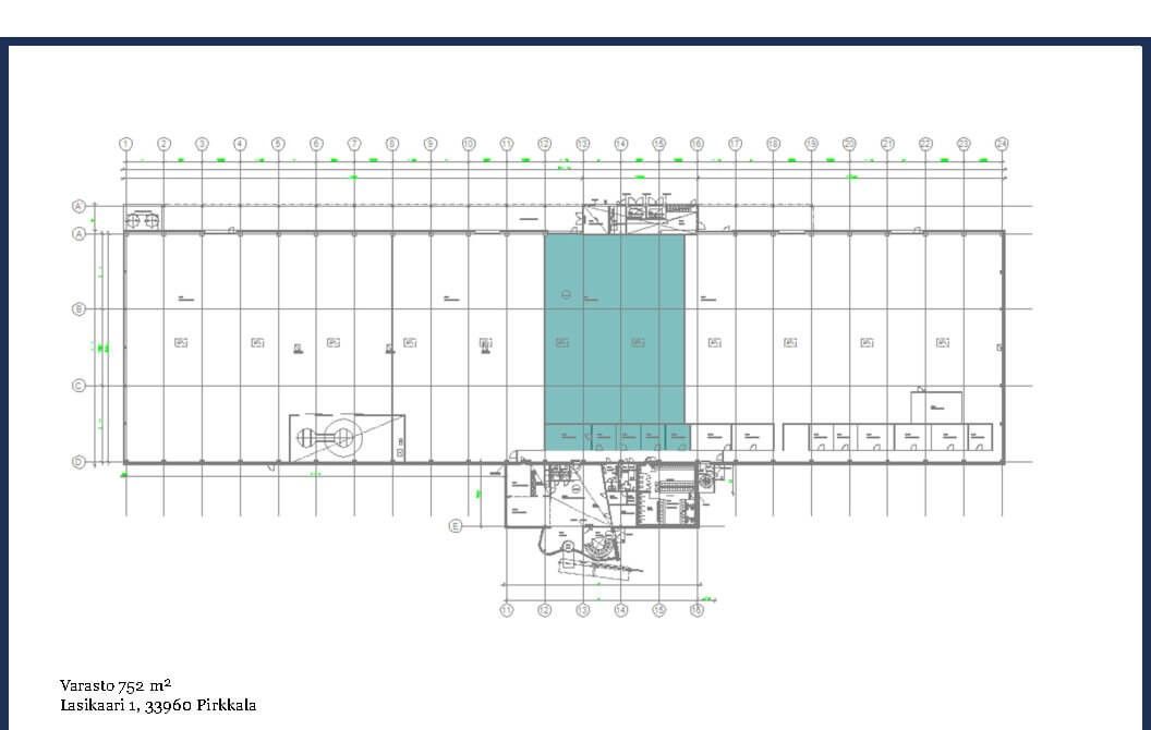
Korkeaa tuotanto- ja varastotilaa, jossa vapaa korkeus n. 7 m ja valaisinkiskojen välissä n.10 m. Tilassa on yksi nosto-ovi sekä toimistoa. Nopea yhteys kehätielle ja lentokentälle. Tila on heti vuokrattavissa.
Lisätietoja numerosta 020 7290 710. Lisää kohteita osoitteessa www.premises.fi.
Kohteella ei ole lain edellyttämää energiatodistusta tai energialuokka ei tiedossa.Kerros: 1
Osoite
Lasikaari 1, 33960 Pirkkala
Tilatyyppi
Toimistotilaa
752 m2
Tuotantotilaa
752 m2
Varastotilaa
752 m2
Yhteensä
752 m2
Ota yhteyttä
CRE PREMISES
Puh. Näytä puhelinnumero 020 7290 710
Vantaankoskentie 14
01670 VANTAA
Pyydä lisätietoa
