Vuokrataan/myydään tuotantotilat - Oulu
Linnunrata 22, 90440 Oulu #10824922
Osoite
Linnunrata 22, 90440 Oulu
Tilatyyppi
Tuotantotilaa
867 m2
Muuta
Myydään kiinteistö Kempeleessä.
Omistustontilla on 2019 valmistunut moderni rakennus, jonka saavutettavuus on sijaintinsa ansiosta todella hyvä
Kiinteistö sijaitsee Kempeleessä Zatelliitin liikealueella.
Rakennuksen näkyvyys E75 eritasoliittymästä ja vilkasliikenteisen tien suunnasta on erittäin hyvä.
Toimivuus nykykäytössä on hyvä, suurehko tontti ja asfaltoitu pysäköintipiha-lueet henkilökunnalle ja asiakkaille.
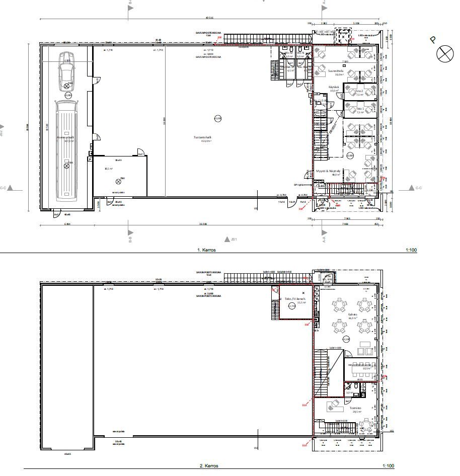
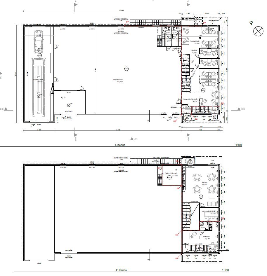
Rakennuksen moottoritien puoleisessa päädyssä on:
1. krs. myynti/näyttely ja toimistotila, jossa työpisteitä 17 hengelle sekä siivous- ja varastotila, pinta-ala yhteensä n. 113,5 m2.
2. krs. Kahvio/loungetila sekä neuvotteluhuone, yhteensä n. 61 m2
2. krs. Erillisellä omalla sisäänkäynnillä oma keittiöllä ja wc-tilalla varustettu toimisto/neukkarihuoneisto, n. 29,5 m2.
Keskiosalla on n. 5,1 m korkea nosto-ovellinen korkea lämmin hallitila sosiaalitiloilla, joka soveltuu hyvin esim. tuotantotiloiksi, pinta-ala n. 453 m2.
Toisessa päässä on korkea läpiajettava asennushallitila, jonka pinta-ala on n. 117 m2. Tästä ovellinen kulku tuotantopuolen tiloihin.
Pinta-ala yhteensä n. 867,5 m2.
Tontin koko on 4352 m2.
Tontilla on 25 autopaikkaa, joista 6 kpl lämmityspistokkeella. Lisäksi yksi esteetön pysäköintipaikka.
Rakennuksen lämmitys on kaukolämpöllä, vesikieroiset radiaattorit.
Rakennus on puurunkoinen, sisäpuolella kipsilevy, ulkopinnassa teräspelti. Katto on loiva pulpettikatto, naulalevyristikot ja vesikatteena bitumihuopa.
Rakennuksen kokonaispinta-ala on n. 937,5 kem ja käyttämätöntä rakennusoikeutta jäljellä 802,5 kem" (yhteensä 1740 kem2).
Vapautuminen sopimuksen mukaan, myös vuokrausmahdollisuus!
KYSY LISÄÄ
Omistustontilla on 2019 valmistunut moderni rakennus, jonka saavutettavuus on sijaintinsa ansiosta todella hyvä
Kiinteistö sijaitsee Kempeleessä Zatelliitin liikealueella.
Rakennuksen näkyvyys E75 eritasoliittymästä ja vilkasliikenteisen tien suunnasta on erittäin hyvä.
Toimivuus nykykäytössä on hyvä, suurehko tontti ja asfaltoitu pysäköintipiha-lueet henkilökunnalle ja asiakkaille.
Rakennuksen moottoritien puoleisessa päädyssä on:
1. krs. myynti/näyttely ja toimistotila, jossa työpisteitä 17 hengelle sekä siivous- ja varastotila, pinta-ala yhteensä n. 113,5 m2.
2. krs. Kahvio/loungetila sekä neuvotteluhuone, yhteensä n. 61 m2
2. krs. Erillisellä omalla sisäänkäynnillä oma keittiöllä ja wc-tilalla varustettu toimisto/neukkarihuoneisto, n. 29,5 m2.
Keskiosalla on n. 5,1 m korkea nosto-ovellinen korkea lämmin hallitila sosiaalitiloilla, joka soveltuu hyvin esim. tuotantotiloiksi, pinta-ala n. 453 m2.
Toisessa päässä on korkea läpiajettava asennushallitila, jonka pinta-ala on n. 117 m2. Tästä ovellinen kulku tuotantopuolen tiloihin.
Pinta-ala yhteensä n. 867,5 m2.
Tontin koko on 4352 m2.
Tontilla on 25 autopaikkaa, joista 6 kpl lämmityspistokkeella. Lisäksi yksi esteetön pysäköintipaikka.
Rakennuksen lämmitys on kaukolämpöllä, vesikieroiset radiaattorit.
Rakennus on puurunkoinen, sisäpuolella kipsilevy, ulkopinnassa teräspelti. Katto on loiva pulpettikatto, naulalevyristikot ja vesikatteena bitumihuopa.
Rakennuksen kokonaispinta-ala on n. 937,5 kem ja käyttämätöntä rakennusoikeutta jäljellä 802,5 kem" (yhteensä 1740 kem2).
Vapautuminen sopimuksen mukaan, myös vuokrausmahdollisuus!
KYSY LISÄÄ
Vapautuu
Kysy
Ota yhteyttä
Catella Property Oy
Kirkkokatu 6, 5. krs, 90100 OULU
Näytä puhelinnumero
010 5220 100
Pekka Laurila-Harju
Näytä puhelinnumero
010 5220 603
Pyydä lisätietoa
