Vuokrataan toimistotilat, varastotilat - Tampere
Sarankulmankatu 12, 33900 Tampere #10824223
Osoite
Sarankulmankatu 12, 33900 Tampere
Tilatyyppi
Toimistotilaa
400 m2
Varastotilaa
600 m2
Yhteensä
400 - 1000 m2
Tilajako
Jaettavissa
Vuokra
10 euroa/m2/kk + alv.
Muuta
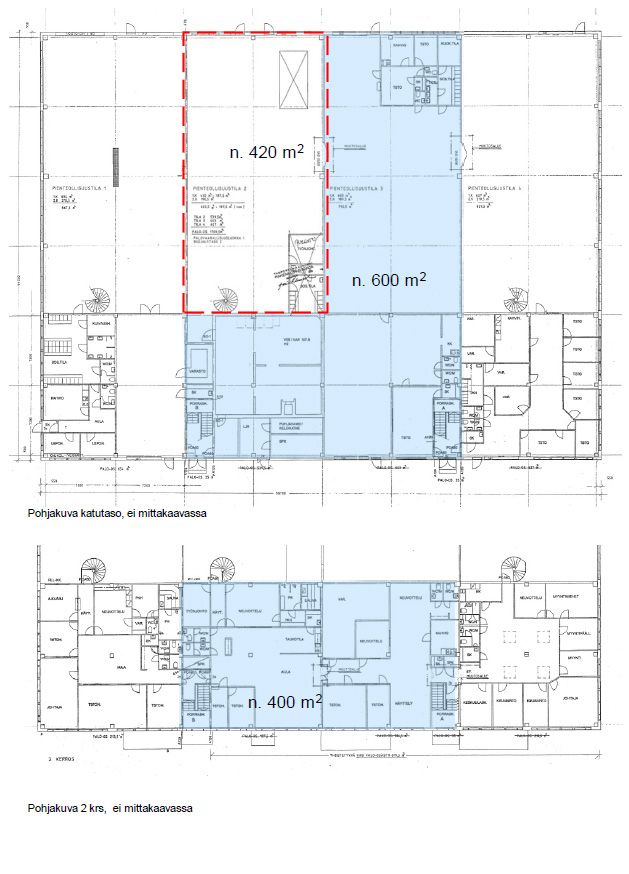
Vuokrataan noin 400 + 600 m2 toimisto- ja hallitilaa Sarankulmasta.
Noin 7 m korkeaa hallitilaa noin 400 m2 ja matalampaa tilaa noin 200 m2. Lisäksi toimistoa noin 400 m2.
Tila on vapaa.
Voidaan yhdistää viereisen noin 420 m hallitilan kanssa.
Hyvät julkiset liikenneyhteydet.
Vuokra 10 euroa/m2/kk + alv.
Vuokralainen tekee oman sähkösopimuksensa.
Lämpö ja vesi mitataan.
Esite liitetiedostona.
Kysy lisää ja sovi näyttö!
Pertti Miettinen
Myyntipäällikkö, LKV
pertti.miettinen@catella.com
040 0624 801
Tilanhakijalle palvelumme ovat maksuttomia.
Catella Property Oy on valtakunnallinen toimitilojen vuokraukseen ja myyntiin keskittynyt kiinteistönvälitysyritys.
Kysy paikallisilta ammattitaitoisilta välittäjiltämme myös muita välityksessämme olevia toimitilakohteita.
Välittäjiemme yhteystiedot ja lisää välitettäviä tilakohteita verkkosivuillamme: www.toimitilat.catella.fi.
Ota yhteyttä!
Noin 7 m korkeaa hallitilaa noin 400 m2 ja matalampaa tilaa noin 200 m2. Lisäksi toimistoa noin 400 m2.
Tila on vapaa.
Voidaan yhdistää viereisen noin 420 m hallitilan kanssa.
Hyvät julkiset liikenneyhteydet.
Vuokra 10 euroa/m2/kk + alv.
Vuokralainen tekee oman sähkösopimuksensa.
Lämpö ja vesi mitataan.
Esite liitetiedostona.
Kysy lisää ja sovi näyttö!
Pertti Miettinen
Myyntipäällikkö, LKV
pertti.miettinen@catella.com
040 0624 801
Tilanhakijalle palvelumme ovat maksuttomia.
Catella Property Oy on valtakunnallinen toimitilojen vuokraukseen ja myyntiin keskittynyt kiinteistönvälitysyritys.
Kysy paikallisilta ammattitaitoisilta välittäjiltämme myös muita välityksessämme olevia toimitilakohteita.
Välittäjiemme yhteystiedot ja lisää välitettäviä tilakohteita verkkosivuillamme: www.toimitilat.catella.fi.
Ota yhteyttä!
Vapautuu
Vapaa
Kerros
Katutaso / 2.
Jaettavissa
Liitetiedostot
Ota yhteyttä
Catella Property Oy
Hämeenkatu 13b A, 33100 Tampere
Näytä puhelinnumero
010 5220 100
Pertti Miettinen
Näytä puhelinnumero
0400 624 801
Pyydä lisätietoa
