Vuokrataan toimistotilat, tuotantotilat, varastotilat, työtilat, autotalli/-hallitilat - Porvoo
Uljaksentie 17, 06150 Porvoo #10823923
Vuokrataan edullista varastotilaa toimistolla Tarkkisista! Kuukausivuokra: Alkaen 390 €/kk + alv
Osoite
Uljaksentie 17, 06150 Porvoo
Tilatyyppi
Toimistotilaa
58 m2
Tuotantotilaa
173 m2
Varastotilaa
173 m2
Työtilaa
68 - 299 m2
Autotalli/-hallitilaa
68 - 299 m2
Yhteensä
68 - 299 m2
Virtuaaliesittely
Vuokra
Alkaen 390 €/kk + alv
Muuta
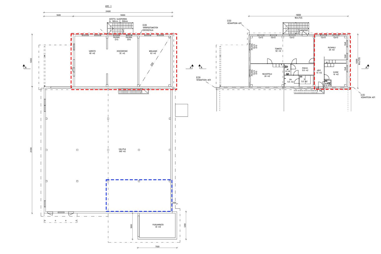
Nyt on mahdollisuus vuokrata edullista varastotilaa/tuotantotilaa toimistolla Porvoon Tarkkisista. Tila soveltuu monenlaisille yrityksille ja tiloissa on aikaisemmin toiminut puusepänverstas. Pohjakuvaan merkitty vuokrattavat alueet punaisella ja sinisellä värillä. Vuokrattavaa tilaa on yhteensä 299 m², josta hallitilaa 241 m² ja toimistotilaa yhteensä noin 58 m² (2. krs.). Toimistotila sijaitsee rakennuksen toisessa kerroksessa.
Pohjakuvassa isompi (punaisella merkitty) tila on katutason tuotanto/varastotila 173 m² ( 9,6 m x 18 m ) ja sen vapaa korkeus on 3,5 metriä. Tilan yläpuolella (2. krs) on toimisto 58 m², jossa pukeutumishuone/taukotila, toimisto minikeittiöllä sekä WC. Sisäporras kuuluu tähän kokonaisuuteen. Tuotantotilan ovi on manuaalikäyttöinen paljeovi (L3,6 m x K3,0 m). Vuokrahinta tälle kokonaisuudelle 950 €/kk + alv. Sähkö laskutetaan kulutuksen mukaan. Alakerran tuotantotilan (173 m² ) lämmityskustannukset noin 0,75 eur/m²/kk. Alakerrassa vesikiertoinen patterilämmitys. Yläkerrassa ilmalämpöpumppu, jonka sähkön maksaa vuokraaja. Vuokraaja voi myös omalla kustannuksellaan asentaa alakertaan lisälämmitykseksi ilmalämpöpumpun. Vuokralainen maksaa vesimaksu, joka on 10 €/kk.
Pienempi (sinisellä merkitty) tila on työskentely-/varastotilaa. Tilan pinta-ala on 68 m² (11,3 m x 6 m) ja sen vapaa korkeus on 3 metriä. Tilassa nosto-ovi L3,4 m x K2,6 m. Vuokrahinta pienemmälle tilalle on 390 €/kk + alv. Sähkö laskutetaan kulutuksen mukaan. Lämmityskustannukset 0,75 eur/m²/kk. Tilassa vesikeskuslämmitysjärjestelmään kuuluva lämpöpuhallin. Ei vesipistettä.
Rakennuksessa ei ole lattiakaivoa.
Piha on hiekkapohjainen ja siellä mahtuu ajamaan ja lastaamaan tavaraa isompaankin kuorma-autoon/pakettiautoon, mutta isompaa yhdistelmää on hankala kääntää pihassa.
Sujuva yhteys Porvoon keskustaan ja sieltä Porvoon moottoritielle.
Edullinen tila monenlaisille yrityksille vuokrattavana Porvoossa!
Kohdetiedot
Sijainti
Katuosoite: Uljaksentie 17. 06150 Porvoo
Kaupunginosa: Tarkkinen
Ympäristö: Maaseutua
Rakennus/huoneisto
Pinta-alat: 68 m² ja 173 m² + 58 m²
Kiinteistötyyppi: Teollisuustuotantorakennus
Rakennusvuosi: 1985
Energiatodistus: Laki ei edellytä
Huoneistotyyppi/Käyttötarkoitus: Tuotanto- ja varastotila sekä toimisto
Kunto, varusteet ja palvelut: Nosto-ovia ja paljeovia. Toimisto 2. krs. sosiaalitiloineen.
Lämmitys: Sähkölämmitys
Pysäköinti: Pihassa
Vapautuminen: Heti vapaa
Vuokrahinta ja kulut
Kuukausivuokra: Alkaen 390 €/kk + alv
Sähkömaksu: Vuokralainen vastaa kuluista
Vesimaksu: 10 €/kk
Lämmitys: Vuokralainen vastaa kuluista
Jätehuolto ja pihan auraus: Vuokralainen vastaa kuluista ja järjestelyistä
Muut ehdot: Vakuus 3 kk:n vuokraa vastaava summa, minimisopimus 12 kk, luottotietojen on oltava kunnossa
Pohjakuvassa isompi (punaisella merkitty) tila on katutason tuotanto/varastotila 173 m² ( 9,6 m x 18 m ) ja sen vapaa korkeus on 3,5 metriä. Tilan yläpuolella (2. krs) on toimisto 58 m², jossa pukeutumishuone/taukotila, toimisto minikeittiöllä sekä WC. Sisäporras kuuluu tähän kokonaisuuteen. Tuotantotilan ovi on manuaalikäyttöinen paljeovi (L3,6 m x K3,0 m). Vuokrahinta tälle kokonaisuudelle 950 €/kk + alv. Sähkö laskutetaan kulutuksen mukaan. Alakerran tuotantotilan (173 m² ) lämmityskustannukset noin 0,75 eur/m²/kk. Alakerrassa vesikiertoinen patterilämmitys. Yläkerrassa ilmalämpöpumppu, jonka sähkön maksaa vuokraaja. Vuokraaja voi myös omalla kustannuksellaan asentaa alakertaan lisälämmitykseksi ilmalämpöpumpun. Vuokralainen maksaa vesimaksu, joka on 10 €/kk.
Pienempi (sinisellä merkitty) tila on työskentely-/varastotilaa. Tilan pinta-ala on 68 m² (11,3 m x 6 m) ja sen vapaa korkeus on 3 metriä. Tilassa nosto-ovi L3,4 m x K2,6 m. Vuokrahinta pienemmälle tilalle on 390 €/kk + alv. Sähkö laskutetaan kulutuksen mukaan. Lämmityskustannukset 0,75 eur/m²/kk. Tilassa vesikeskuslämmitysjärjestelmään kuuluva lämpöpuhallin. Ei vesipistettä.
Rakennuksessa ei ole lattiakaivoa.
Piha on hiekkapohjainen ja siellä mahtuu ajamaan ja lastaamaan tavaraa isompaankin kuorma-autoon/pakettiautoon, mutta isompaa yhdistelmää on hankala kääntää pihassa.
Sujuva yhteys Porvoon keskustaan ja sieltä Porvoon moottoritielle.
Edullinen tila monenlaisille yrityksille vuokrattavana Porvoossa!
Kohdetiedot
Sijainti
Katuosoite: Uljaksentie 17. 06150 Porvoo
Kaupunginosa: Tarkkinen
Ympäristö: Maaseutua
Rakennus/huoneisto
Pinta-alat: 68 m² ja 173 m² + 58 m²
Kiinteistötyyppi: Teollisuustuotantorakennus
Rakennusvuosi: 1985
Energiatodistus: Laki ei edellytä
Huoneistotyyppi/Käyttötarkoitus: Tuotanto- ja varastotila sekä toimisto
Kunto, varusteet ja palvelut: Nosto-ovia ja paljeovia. Toimisto 2. krs. sosiaalitiloineen.
Lämmitys: Sähkölämmitys
Pysäköinti: Pihassa
Vapautuminen: Heti vapaa
Vuokrahinta ja kulut
Kuukausivuokra: Alkaen 390 €/kk + alv
Sähkömaksu: Vuokralainen vastaa kuluista
Vesimaksu: 10 €/kk
Lämmitys: Vuokralainen vastaa kuluista
Jätehuolto ja pihan auraus: Vuokralainen vastaa kuluista ja järjestelyistä
Muut ehdot: Vakuus 3 kk:n vuokraa vastaava summa, minimisopimus 12 kk, luottotietojen on oltava kunnossa
Vapautuu
Heti
Rakennusvuosi
1985
Kerros
1 / 2
Katutasossa
Näkyvällä paikalla
Ota yhteyttä
Tilat.fi
KTM, LKV Antti Soivio
Näytä puhelinnumero
0400 446 553
OTM, LKV Riikka Tuominen
Näytä puhelinnumero
0400 551 790
KTM, LKV Maria-Sofia Puhakka
Näytä puhelinnumero
0400-150330
MBA, LKV Susanne Wallenius
Näytä puhelinnumero
0400-128877
LKV Tilat.fi Oy on toimitilojen välitykseen erikoistunut yritys.
http://www.tilat.fiPyydä lisätietoa
