Myydään muut tilat - Nurmijärvi
Keskusraitti 2, Rajamäki, 05200 Nurmijärvi #10821628
Rakennusoikeutta Rajamäen keskustasta - Keskusraitti 2
Nurmijärven Rajamäen kehittyvässä keskuksessa tarjolla rakennusoikeutta n. 960 kerrosneliömetriä hallinnanjakosopimusluonnoksen mukaiselta määräosalta.
Myytävä alue B on osa KOY Keskusraitti 2:n omistamaa 2080 m² tonttia, ja se tarjoaa erinomaisen mahdollisuuden toteuttaa asuin- ja liiketilarakentamista keskeisellä sijainnilla.
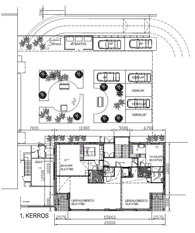
Alueelle on aiemmin (vuonna 2012) haettu rakennuslupa, jonka mukaisesti suunniteltiin 4-kerroksinen asuinkerrostalo, jossa olisi ollut 9 asuntoa ja 2 liiketilaa.
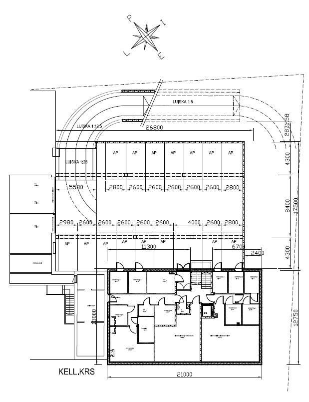
Suunniteltu pysäköinti sijoittui kellaritasossa olevaan 15-paikkaiseen autohalliin sekä pihakannen paikoille.
Rakennuslupa on umpeutunut, mutta myyjä luovuttaa ostajalle kaikki tuolloin laaditut rakennus- ja arkkitehtisuunnitelmat sekä piirustukset.
Asemakaava ALK IV
Tontin rakennusoikeus yhteensä 1750 k-m²
Tontin pinta-ala: n. 2082 m²
Myytävän määräosan rakennusoikeus: n. 960 k-m²
Yhteiskäyttöiset tilat:
Ostaja saa käyttöoikeuden yhteiseen pihaan ja autohalliin, sekä KOY:n väestösuojaan, saunaosastoon, pesu- ja kuivaushuoneisiin.
Sijainti:
Rajamäen keskusta on voimakkaasti kehittyvä alue, ja myyntikohteen vieressä valmistuu loppuvuodesta 2025 uusi kampus, joka lisää alueen vetovoimaa ja asiakasvirtoja.
Lisämahdollisuus:
Ostettavissa myös viereisessä KOY:ssä olevia liikehuoneistoja, autotalleja ja asunto, joiden yhteispinta-ala on 792 m² ja velaton hinta 467 000 €. Näiden tilojen osuus yhtiöstä on 1692 / 2909 osaketta, mikä tarjoaa ostajalle merkittävän aseman yhtiössä.
Ota yhteyttä ja kysy lisää - tämä on harvinainen tilaisuus rakentaa ja sijoittaa Rajamäen keskeisimmälle paikalle.
Yhdistettyjen liike- ja asuinkerrostalojen korttelialue. Alleviivattu luku osoittaa ehdottomasti käytettävän kerrosluvun.
Kustannukset, kuten kiinteistövero ym. määräosaan kohdistuvat kustannukset sovitaan hallinnanjakosopimuksessa.
Kiinteistö Oy Rajamäen Kauppakulma myyjänä, on myymässä hallinnanjokosopimusluonnoksen mukaista määräosaa
omistamastaan 2082 m² tontista.
Määräosan (tontin) pinta-ala lasketaan lopullisen hallinnanjakosopimuksen mukaisesti.
Myytävälle alue B:lle rakennusoikeuden määrä 960 kerros-m².
Yhteisen pihan ja autohallin lisäksi KOY:n väestösuoja, saunaosasto, pesu- ja
kuivaushuoneet ovat yhteiskäyttöiset.
Määräosalle on 2012 haettu rakennuslupa, tuolloin suunniteltu rakennusoikeus 944 k-m².
Rakennuslupa umpeutunut ja haettava uudestaan.
Myyjä luovuttaa ostajalle tuolloin laaditut rakennus ym. suunnitelmat.
Suunnitelmat olivat 4- kerroksiselle asuinkerrostalolle, johon olisi tullut 9 asuntoa ja 2 liiketilaa.
Suunniteltu pysäköinti kellaritasossa olevaan 15-paikkaiseen autohalliin, sekä pihakansi paikat.
Asemakaava ALK IV, 1750 k-m².
Yhdistettyjen liike- ja asuinkerrostalojen korttelialue. Alleviivattu luku osoittaa ehdottomasti käytettävän kerrosluvun.
Mahdollista ostaa Kiinteistö Oy Rajamäen Kauppakulma:sta
Liikeh L4 85,5 m² osakkeet 395-606/ 212 kpl
Liikeh L 5 66 m² osakkeet 607-804/ 198 kpl
Liikeh L 7 171 m² osakkeet 1192-1564/ 373 kpl
Liikeh L 6 129 m² osakkeet 805-1191 / 387
Liikeh L8 72 m² osakkeet 1565-1636 /72
Liikeh L 9 151 m² osakkeet 1637-1848 /212
Asunto B5 66 m² osakkeet 2373-2504 /132
Autotalli 1 13,5 m² osakkeet 2804-2831/ 28 kpl
Autotalli 2 15,5 m² osakkeet 2832-2863/ 32 kpl
Autotalli 3 22,5 m² osakkeet 2864-2909/ 46 kpl
Jolloin yhteenlaskettu osakelukumäärä olisi 1692 / 2909 yhtiön osakekannasta.
OP Koti Uusimaa Oy LKV
Toimitilapalvelut
Arkadiankatu 23
00100 HELSINKI
Mika Nyman
Toimitilavälittäjä, Kiinteistöarvioija, LKV, YKV, AKA/KHK
Näytä puhelinnumero
0400 347 758
