Vuokrataan toimistotilat, liiketilat, näyttelytilat, tuotantotilat, varastotilat, työtilat, autotalli/-hallitilat - Porvoo
Yrittäjänkatu 5, 06150 Porvoo #10821399
Monipuolinen hallitila vuokrattavana Porvoon Tarmolassa! Vuokra: 2'800 €/kk + alv
Osoite
Yrittäjänkatu 5, 06150 Porvoo
Tilatyyppi
Toimistotilaa
40 m2
Liiketilaa
200 - 550 m2
Näyttelytilaa
200 - 550 m2
Tuotantotilaa
200 - 550 m2
Varastotilaa
200 - 550 m2
Työtilaa
200 - 550 m2
Autotalli/-hallitilaa
200 - 550 m2
Yhteensä
200 - 550 m2
Pohjapiirros
Virtuaaliesittely
Vuokra
2'800 €/kk + alv
Muuta
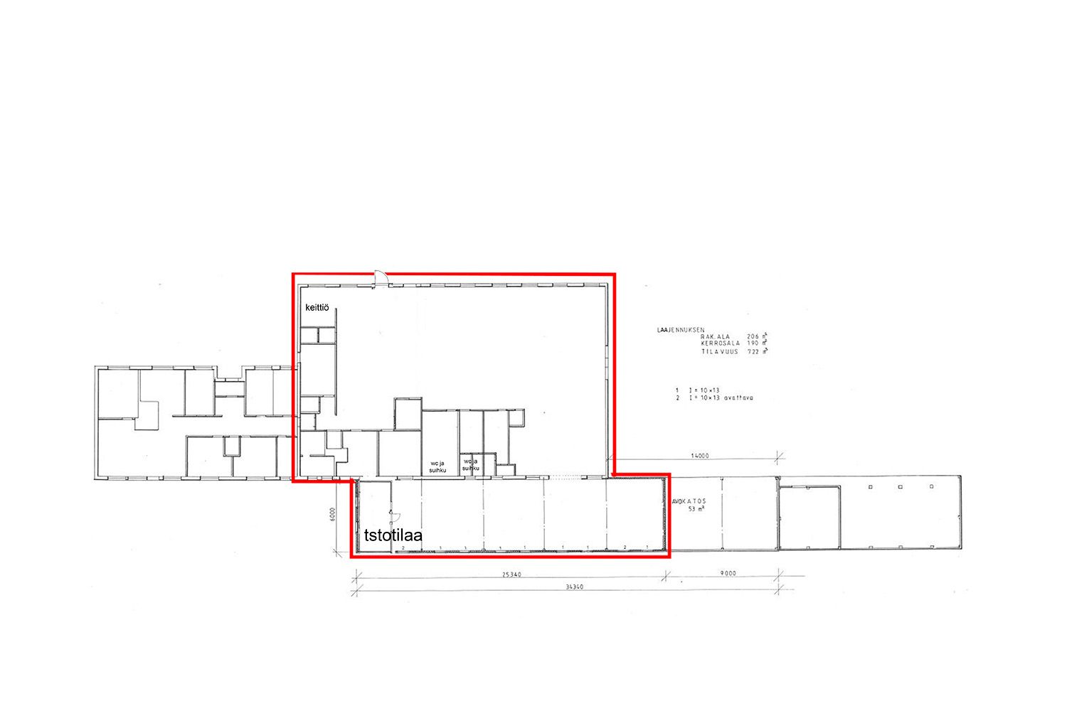
Porvoon Tarmolassa on vuokrattavana peruskuntoista hallitilaa, jonka yhteydessä on myös toimisto- ja sosiaalitiloja. Kaikkiaan noin 550-neliöiset tilat soveltuvat hyvin erilaiseen yrittämiseen, tuotantoon ja varastointiin. Tilat myös jaettavissa kahdelle ja rakennukseen on mahdollista asentaa erikseen sovitusti toinen nosto-ovi.
Tila kostuu kahdesta tilasta, jotka yhdistetty ja on pääasiassa avointa tilaa. Isomman tilan päädyssä on sähkökäyttöinen nosto-ovi (L 2,7 m x K 2,5 m) käyntiovella ja hallin toisella sivustalla erillinen käyntiovi. Korkeutta hallissa on noin 2,9 metriä. Pihalta loiva metalliramppi nosto-ovesta tilaan.
Varusteluun kuuluu lisäksi uudehko keittiö/taukotila, toimistohuoneita, varastotilaa, wc sekä kaksi pukutilaa, joista toisen yhteydessä on siisti, uudehko suihku ja wc. Tilassa on lisäksi iv-kone, jossa on lämmön talteenotto. Lämmitysmuotona on ilmavesilämpöpumppu. Molemmissa tiloissa on runsaasti ikkunoita. Hallissa ei ole lattiakaivoa.
Asfaltoidussa pihassa on hyvin pysäköintitilaa.
Rakennus sijaitsee hyvällä paikalla teollisuusalueella, josta on lyhyt matka moottoritielle. Tarmolan kaupanpalvelut sekä useat lounasravintolat ovat aivan nurkan takana.
Hyvä tila moneen käyttöön hyvällä sijainnilla!
Kohdetiedot
Sijainti
Katuosoite: Yrittäjänkatu 5, 06150 Porvoo
Kaupunginosa: Tarmola
Ympäristö: Teollisuusalue
Rakennus/huoneisto
Pinta-alat: Noin 200-550 m²
Rakennustyyppi: Teollisuusrakennus
Huoneistoselitelmä: Pienteollisuuskiinteistön toimitila
Rakennusvuosi: 1979 (laajennettu sen jälkeen)
Energiatodistus: Laki ei edellytä todistusta
Kerros: 1/1
Kunto, varusteet ja palvelut: Hyvä peruskunto. Nosto-ovi, pieni ajoramppi, toimistohuoneita, keittiö/taukotila, wc, suihku,
Vapautuu: Heti vapaa
Pysäköinti: Pihalla
Vuokrahinta ja kulut
Kuukausivuokrahinta: 2'800 €/kk, alv-vapaa tila (kokonaisuuden hinta)
Lämmitys: Vuokralainen vastaa kuluista (Ilmavesilämpöpumppu)
Sähkö-, jäte- ja vesimaksut: Kulutuksen mukaan ja vuokralainen vastaa järjestelyistä
Muuta: Vakuus 3kk vuokraa vastaava summa, minimisopimus 12kk ja luottotietojen on oltava kunnossa
Tila kostuu kahdesta tilasta, jotka yhdistetty ja on pääasiassa avointa tilaa. Isomman tilan päädyssä on sähkökäyttöinen nosto-ovi (L 2,7 m x K 2,5 m) käyntiovella ja hallin toisella sivustalla erillinen käyntiovi. Korkeutta hallissa on noin 2,9 metriä. Pihalta loiva metalliramppi nosto-ovesta tilaan.
Varusteluun kuuluu lisäksi uudehko keittiö/taukotila, toimistohuoneita, varastotilaa, wc sekä kaksi pukutilaa, joista toisen yhteydessä on siisti, uudehko suihku ja wc. Tilassa on lisäksi iv-kone, jossa on lämmön talteenotto. Lämmitysmuotona on ilmavesilämpöpumppu. Molemmissa tiloissa on runsaasti ikkunoita. Hallissa ei ole lattiakaivoa.
Asfaltoidussa pihassa on hyvin pysäköintitilaa.
Rakennus sijaitsee hyvällä paikalla teollisuusalueella, josta on lyhyt matka moottoritielle. Tarmolan kaupanpalvelut sekä useat lounasravintolat ovat aivan nurkan takana.
Hyvä tila moneen käyttöön hyvällä sijainnilla!
Kohdetiedot
Sijainti
Katuosoite: Yrittäjänkatu 5, 06150 Porvoo
Kaupunginosa: Tarmola
Ympäristö: Teollisuusalue
Rakennus/huoneisto
Pinta-alat: Noin 200-550 m²
Rakennustyyppi: Teollisuusrakennus
Huoneistoselitelmä: Pienteollisuuskiinteistön toimitila
Rakennusvuosi: 1979 (laajennettu sen jälkeen)
Energiatodistus: Laki ei edellytä todistusta
Kerros: 1/1
Kunto, varusteet ja palvelut: Hyvä peruskunto. Nosto-ovi, pieni ajoramppi, toimistohuoneita, keittiö/taukotila, wc, suihku,
Vapautuu: Heti vapaa
Pysäköinti: Pihalla
Vuokrahinta ja kulut
Kuukausivuokrahinta: 2'800 €/kk, alv-vapaa tila (kokonaisuuden hinta)
Lämmitys: Vuokralainen vastaa kuluista (Ilmavesilämpöpumppu)
Sähkö-, jäte- ja vesimaksut: Kulutuksen mukaan ja vuokralainen vastaa järjestelyistä
Muuta: Vakuus 3kk vuokraa vastaava summa, minimisopimus 12kk ja luottotietojen on oltava kunnossa
Vapautuu
Heti
Kerros
1 / 1
Katutasossa
Näkyvällä paikalla
Ota yhteyttä
Tilat.fi
KTM, LKV Antti Soivio
Näytä puhelinnumero
0400 446 553
OTM, LKV Riikka Tuominen
Näytä puhelinnumero
0400 551 790
KTM, LKV Maria-Sofia Puhakka
Näytä puhelinnumero
0400-150330
HTM, LKV Aleksandra Riki
Näytä puhelinnumero
0400-211288
LKV Tilat.fi Oy on toimitilojen välitykseen erikoistunut yritys.
http://www.tilat.fiPyydä lisätietoa
