Vuokrataan toimistotilat - Oulu
Rautatienkatu 81, Limingantulli, 90400 Oulu #10821167
Osoite
Rautatienkatu 81, 90400 Oulu
Tilatyyppi
Toimistotilaa
209 m2
Muuta
Limingantullissa Limingantien ja Rautatienkadun kulmassa
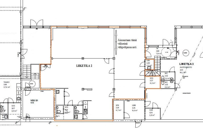
Vuokrataan liike/toimistotilaa näkyvällä ja liikenteellisesti hyvin saavutettavalla paikalla!
Rakennuksessa on koneellinen tulo- ja poistoilmanvaihto tuloilman viilennyksellä. Huoneistossa on ATK-lähiverkko.
Huoneisto on pääsisäänkäynnistä vasemmalla. Siihen on rakennettu ns 2 kpl luokkahuonetyyppistä tilaa.
Läheisiä muita toimijoita Alasintien puolella on mm XXL- urheiluvälinekauppa, Kärkkäinen ja Kuntokeskus Liikku. Vähän eteenpäin Lmingantietä ajettaessa on mm. Prisma ja isoja Kodinkoneliikkeitä sekä autokauppoja.
Rakennus on saneerattu 2021.
1. krs n. 209 jyvm2 vapautuu 1.5.2025
2. krs n. 229 jyv m2 vapautuu 1.6.2025
Pyydä lisätietoja tästä kohteesta!
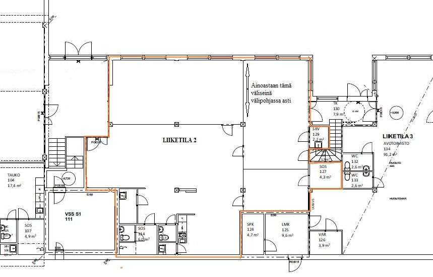
Vuokrataan liike/toimistotilaa näkyvällä ja liikenteellisesti hyvin saavutettavalla paikalla!
Rakennuksessa on koneellinen tulo- ja poistoilmanvaihto tuloilman viilennyksellä. Huoneistossa on ATK-lähiverkko.
Huoneisto on pääsisäänkäynnistä vasemmalla. Siihen on rakennettu ns 2 kpl luokkahuonetyyppistä tilaa.
Läheisiä muita toimijoita Alasintien puolella on mm XXL- urheiluvälinekauppa, Kärkkäinen ja Kuntokeskus Liikku. Vähän eteenpäin Lmingantietä ajettaessa on mm. Prisma ja isoja Kodinkoneliikkeitä sekä autokauppoja.
Rakennus on saneerattu 2021.
1. krs n. 209 jyvm2 vapautuu 1.5.2025
2. krs n. 229 jyv m2 vapautuu 1.6.2025
Pyydä lisätietoja tästä kohteesta!
Vapautuu
1.5.2025
Kerros
1
Ota yhteyttä
Catella Property Oy
Kirkkokatu 6, 5. krs, 90100 OULU
Näytä puhelinnumero
010 5220 100
Pekka Laurila-Harju
Näytä puhelinnumero
010 5220 603
Pyydä lisätietoa
