Vuokrataan tuotantotilat, varastotilat - Helsinki
Ormuspellontie 2, Malmi, 00700 Helsinki #10821059
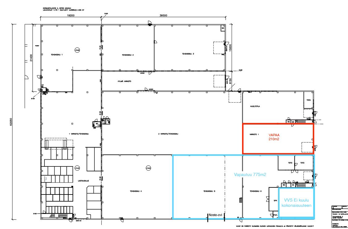
Helsingin Malmilla osoitteessa Ormuspellontie 2 vapautunut hyvää hallitilaa. Tilaan johtaa kaksi nosto-ovea. Vuorattava ala n 775 m2:n m. Tstohuoneita 5 kpl + wc. Ks pohjakuva liitteissä.
Kaksi nosto-ovea tilaan 3.9x3.9 ja toinen pienempi 2.3x2.5. Wc ja tsto huoneita 5kpl. Mahdollisuus myös jakaa kahdeksi tilaksi 325m2 ja 435m2.
Tontti on aidattu.
Lisätietoja: p. 045 2616 6555/ Mika
Lisää kohteita: www.premises.fi
Kohteella ei ole lain edellyttämää energiatodistusta.
Osoite
Ormuspellontie 2, 00700 Helsinki
Tilatyyppi
Tuotantotilaa
325 - 775 m2
Varastotilaa
325 - 775 m2
Yhteensä
325 - 775 m2
Liitetiedostot
Ota yhteyttä
CRE PREMISES
Puh. Näytä puhelinnumero 020 7290 710
Vantaankoskentie 14
01670 VANTAA
Pyydä lisätietoa
