Vuokrataan toimistotilat - Helsinki
Talo nimeltä Väinö, Hämeentie 11, Sörnäinen, 00530 Helsinki #10821043
Upea, vastikään saneerattu 1072 m² toimisto kulttuurihistoriallisesti merkittävältä alueelta, ainutlaatuisesta tiilitalosta.
Osoite
Hämeentie 11, 00530 Helsinki
Tilatyyppi
Toimistotilaa
1072 m2
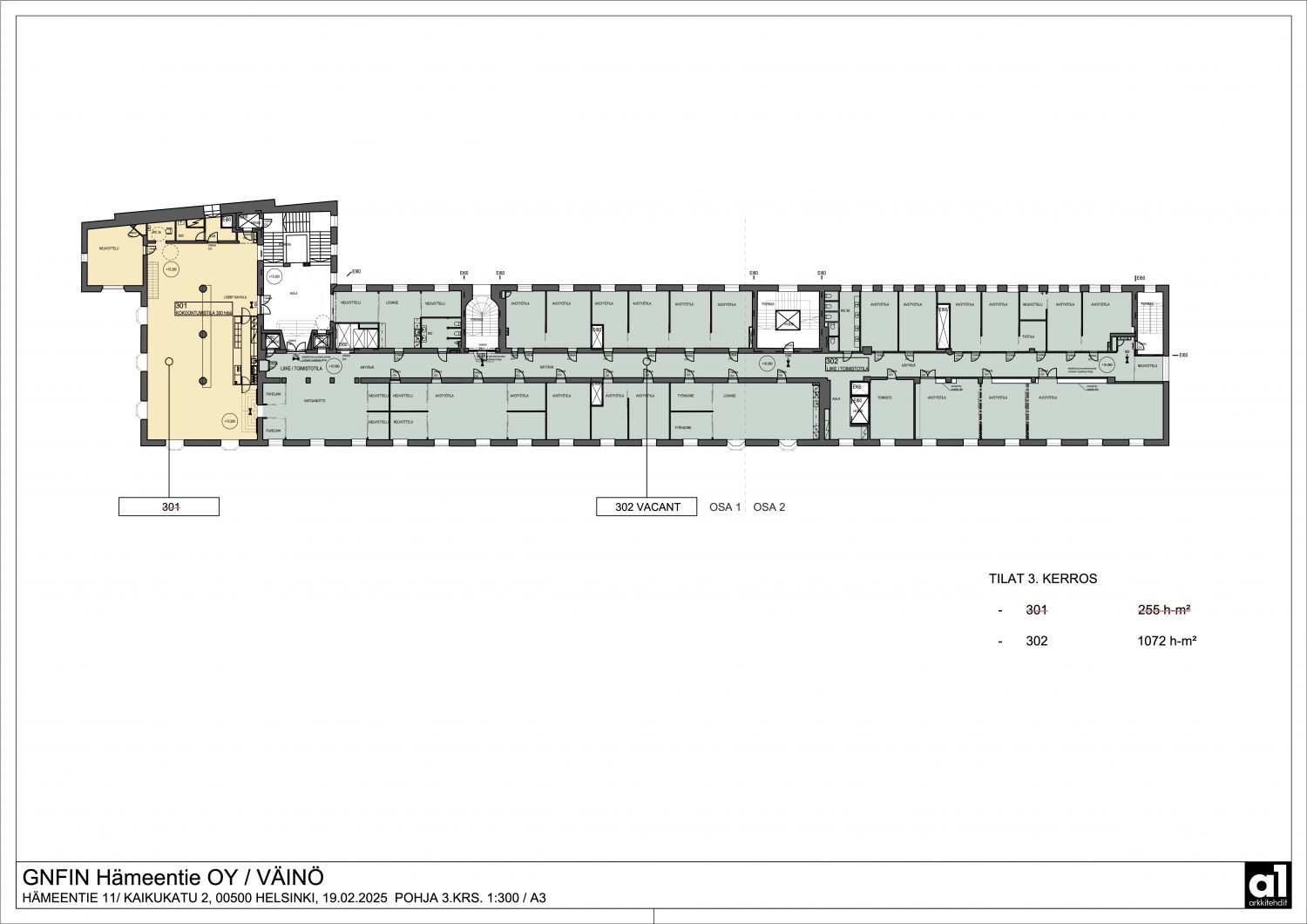
Pohjapiirros
Kiinteistö
Tässä 1072 m² kokoisessa 3. kerroksen toimisto on runsaasti työ- ja neuvotteluhuoneita, ja se soveltuu mainiosti isommankin yrityksen käyttöön. Omat, supertyylikkäät wc-tilat sekä upeat materiaalit takaavat viihtyvyyden joka tasolla.
Kiinteistö on Osuusliie Elannon entinen pääkonttori ja tunnettu kantakaupungin maamerkki. Se sai uuden imagon ja se tunnetaan nykyään talona nimeltä Väinö. Nimi juontaa juurensa rakennuksen suunnitelleeseen Väinö Vähäkallioon sekä yhteen Osuusliike Elannon pääjohtajaan, Väinö Tanneriin, joka eli vahvasti talon mukana. Talo sijaitsee erinomaisten liikenneyhteyksien varrella.
Talossa yhdistyy 1920-luvun arkkitehtuuri ja 2020-luvun upea talotekniikka ja vastikään saneeratut toimitilat.
Ilmoituksen sisäkuvat ovat yleiskuvia kiinteistön eri tiloista.
Väinöt ovat vahvasti läsnä tämän vuonna 1928 rakennetun kiinteistön historiassa. Rakennuksen suunnitteli arkkitehti Väinö Vähäkallio. Design on 1920-luvulle tyypillistä pohjoismaista klassismia. Rakennus toimi Osuusliike Elannon pääkonttorina vuosina 1928–1995, jolloin pääjohtaja Väinö Tanner oli vahvasti läsnä talon toiminnassa. Väinö Tanner johti vahvalla otteella koko organisaatiotaan ja hän myös asui talossa.
Kiinteistö sijaitsee Sörnäisissä aivan Helsingin keskustan tuntumassa Hämeentien ja Kaikukadun kulmassa. Alue tunnetaan entisenä teollisuusalueena, joka on vuosikymmenien saatossa kehittynyt monipuoliseksi ja trendikkääksi toimisto- ja asuinalueeksi. Museoviraston selvityksessä alue on todettu kulttuurihistoriallisesti arvokkaaksi. Alueen kehityksen odotetaan jatkuvan, ja erityisesti uusien Kalasataman asuinkiinteistöjen uskotaan vaikuttavan alueen kehittymiseen entistä korkeatasoisemmaksi asuinalueeksi.
Hämeentie on yksi Helsingin vilkkaimmista pääväylistä, joten liikenneyhteydet ovat todella sujuvat ja monipuoliset. Tänne on helppo tulla läheltä ja kauempaakin. Hakaniemen ja Sörnäisen metropysäkit ovat vain noin 500 metrin päässä. Raitiovaunupysäkit ovat aivan rakennuksen vieressä ja bussilla pääsee keskustaan viidessä minuutissa.
Kiinteistö on Osuusliie Elannon entinen pääkonttori ja tunnettu kantakaupungin maamerkki. Se sai uuden imagon ja se tunnetaan nykyään talona nimeltä Väinö. Nimi juontaa juurensa rakennuksen suunnitelleeseen Väinö Vähäkallioon sekä yhteen Osuusliike Elannon pääjohtajaan, Väinö Tanneriin, joka eli vahvasti talon mukana. Talo sijaitsee erinomaisten liikenneyhteyksien varrella.
Talossa yhdistyy 1920-luvun arkkitehtuuri ja 2020-luvun upea talotekniikka ja vastikään saneeratut toimitilat.
Ilmoituksen sisäkuvat ovat yleiskuvia kiinteistön eri tiloista.
Väinöt ovat vahvasti läsnä tämän vuonna 1928 rakennetun kiinteistön historiassa. Rakennuksen suunnitteli arkkitehti Väinö Vähäkallio. Design on 1920-luvulle tyypillistä pohjoismaista klassismia. Rakennus toimi Osuusliike Elannon pääkonttorina vuosina 1928–1995, jolloin pääjohtaja Väinö Tanner oli vahvasti läsnä talon toiminnassa. Väinö Tanner johti vahvalla otteella koko organisaatiotaan ja hän myös asui talossa.
Kiinteistö sijaitsee Sörnäisissä aivan Helsingin keskustan tuntumassa Hämeentien ja Kaikukadun kulmassa. Alue tunnetaan entisenä teollisuusalueena, joka on vuosikymmenien saatossa kehittynyt monipuoliseksi ja trendikkääksi toimisto- ja asuinalueeksi. Museoviraston selvityksessä alue on todettu kulttuurihistoriallisesti arvokkaaksi. Alueen kehityksen odotetaan jatkuvan, ja erityisesti uusien Kalasataman asuinkiinteistöjen uskotaan vaikuttavan alueen kehittymiseen entistä korkeatasoisemmaksi asuinalueeksi.
Hämeentie on yksi Helsingin vilkkaimmista pääväylistä, joten liikenneyhteydet ovat todella sujuvat ja monipuoliset. Tänne on helppo tulla läheltä ja kauempaakin. Hakaniemen ja Sörnäisen metropysäkit ovat vain noin 500 metrin päässä. Raitiovaunupysäkit ovat aivan rakennuksen vieressä ja bussilla pääsee keskustaan viidessä minuutissa.
Vapautuu
Heti
Rakennusvuosi
1927
Saneerausvuosi
2017
Kerros
3 / 6
Energiatehokkuusluokka
Ei lain edellyttämää energiatodistusta
Näkyvällä paikalla
Ota yhteyttä
ScanReal Oy LKV
Opus Business Park
Hitsaajankatu 24
00810 Helsinki
info@scanreal.fi
Puh:
Näytä puhelinnumero
020 730 8830
Sopivat toimitilat yhdellä otolla!
Kartoitamme toimitilatarpeesi ja etsimme yrityksellesi parhaiten sopivat vapaat toimitilat. Koska vuokranantajat maksavat palvelumme, on tämä yrityksellesi veloituksetonta.
OTA YHTEYTTÄ - SOVI NÄYTTÖ!
Kaikki kohteemme eivät ole netissä, kerro tilatarpeesi niin kartoitamme vaihtoehdot.
Palvelumme on tilanhakijalle ilmainen
Pyydä lisätietoa
