Vuokrataan toimistotilat - Tampere
Eteläpuisto 2C, 33200 Tampere #10820736
Osoite
Eteläpuisto 2C, 33200 Tampere
Tilatyyppi
Toimistotilaa
591 m2
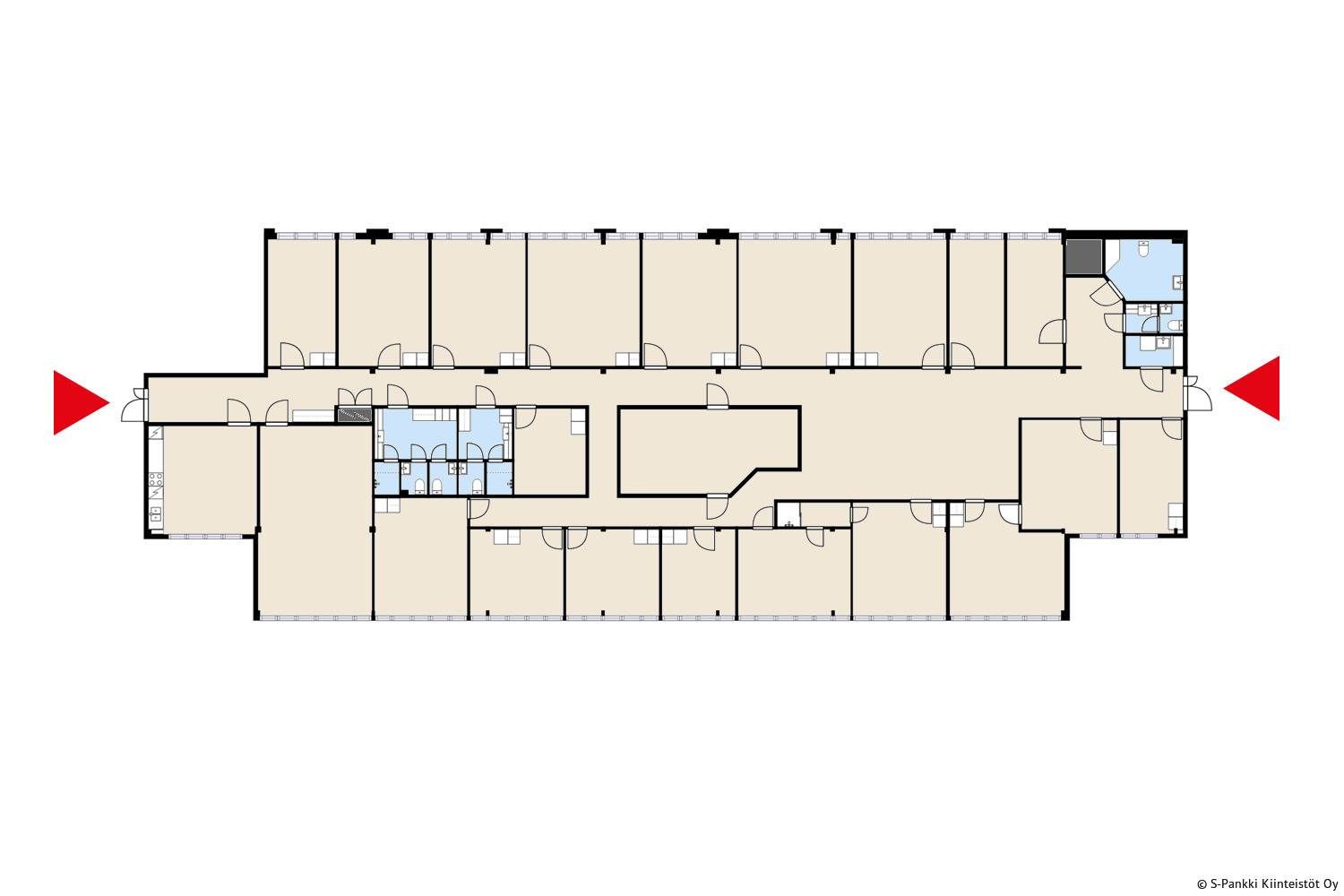
Pohjapiirros
Kiinteistö
Vuokrattavissa toimistotilaa Klingendahlista! Vapaana on 5. kerroksessa sijaitseva toimistokokonaisuus, jonka kokonaispinta-ala on 591 m². Tilat ovat siistit, remontoidut ja avarat, ja huoneet sekä ikkunat ovat korkeita, jolloin luonnonvalo pääsee valaisemaan sisätiloja miellyttävästi. Lounaspaikkoja löytyy runsaasti lähialueelta, ja rautatieasemalle on vain noin 1,5 km matka.
Ota yhteyttä ja kysy lisää tästä erinomaisesta toimistotilasta!
Ota yhteyttä ja kysy lisää tästä erinomaisesta toimistotilasta!
Vapautuu
Heti
Energiatehokkuusluokka
H (ei luokitusta)
Ota yhteyttä
Arvo Premises Oy
Joakim Kukkonen
Osakas, Toimitilavälittäjä
Näytä puhelinnumero
040 555 8106
Seppo Pakarinen
Osakas, Kiinteistönvälittäjä. LKV, YKV, AKA
Näytä puhelinnumero
040-703 8000
Pyydä lisätietoa
