Vuokrataan toimistotilat, liiketilat, tuotantotilat, varastotilat, työtilat, autotalli/-hallitilat - Helsinki
Kylvöpolku 6, Itä-Pakila, 00680 Helsinki #10820707
Iso varasto- ja toimistorakennus vuokrattavana Helsingin Itä-Pakilassa!
Osoite
Kylvöpolku 6, 00680 Helsinki
Tilatyyppi
Toimistotilaa
930 m2
Liiketilaa
1690 m2
Tuotantotilaa
730 m2
Varastotilaa
730 m2
Työtilaa
1690 m2
Autotalli/-hallitilaa
730 m2
Yhteensä
1690 m2
Virtuaaliesittely
Vuokra
16'900 €/kk, alv-vapaa
Vuokraan sisältyy lämpö
Muuta
Itä-Pakilan toimitila-alueella vuokrattavana hyväkuntoinen varasto- ja toimistorakennus.
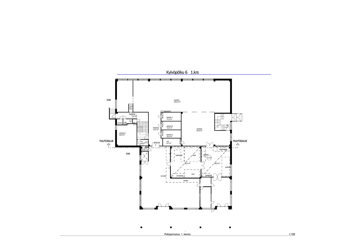
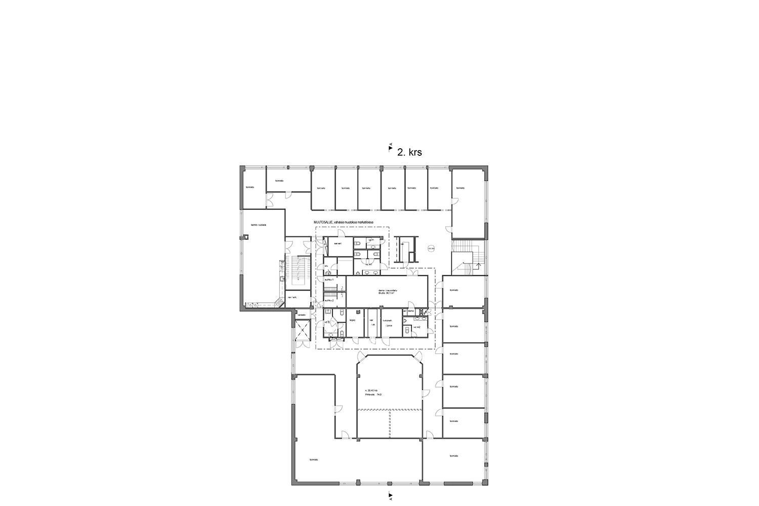
Rakennuksessa on yhteensä kaksi kerrosta, josta katutasossa varastotilaa ja toisessa kerroksessa tasokasta toimistotilaa. Toimiston pinta-ala on yhteensä 960 m² (kerrosala) ja siellä on useita toimistohuoneita, keittiö ja sosiaalitilat. Ääniä tilassa vaimentaa hyväkuntoinen kokolattiamatto. Yläkerran ja alakerran välillä kulkee tavarahissi.
Varastotila on pinta-alaltaan noin 730 m² (kerrosala) ja sen sisätilan vapaa korkeus on noin 4,2 metriä. Hallin etuosassa on kaksi käyntiovellista nosto-ovea (L2,7 m x K3,0 m). Toisen nosto-oven edessä on lipan alla tilaa purkaa kuormaa/ lastata tilauksia. Varastossa ei ole lattiakaivoja. Tilan keskeltä löytyy kolme noin 10 m2 kokoista varastohuonetta ja yksi wc. Hallin keskellä lisäksi erillinen noin 60 m2 kokoinen huone.Varastotila sopii varastoinnin lisäksi monenlaisille yrityksille siistiin/pienimuotoiseen kokoonpanotyöskentelyyn.
Turvallinen aidattu iso tontti 2000 m².
Rakennukseen on mahdollista saada valokuitu tehostamaan internetyhteyksiä.
Tiloja voidaan harkita jaettavan kahdelle yritykselle, kysy tästä tarvittaessa lisää. Vuokra sisältää lämmityksen. Vuokralainen vastaa itse sähkö, vesi ja auraus/pihan hoito, jätehuolto.
Hyvä sijainti - Kehä I:lle vain yhden kilometrin ajomatka!
Kohdetiedot
Sijainti
Katuosoite: Kylvöpolku 6, 00680 Helsinki
Kaupunginosa: Itä-Pakila
Ympäristö: Yritys- ja toimitila-aluetta
Rakennus/huoneisto
Pinta-alat: 730 m² + noin 960 m² (kerrosala, ei mitattu)
Kiinteistötyyppi: Teollisuuden tuotantorakennus
Rakennusvuosi: 1971
Energiatodistus: Laki ei edellytä todistusta
Huoneistoselitelmä: Varastotilaa/tuotantotilaa ja toimistotilaa sosiaalitiloineen
Kunto, varusteet ja palvelut: Hyvässä kunnossa olevat tilat. Hallissa nosto-ovet. Toimistossa toimistohuoneita keittiö ja wc.
Lämmitys: Kaukolämpö
Pysäköinti: Rakennuksen takana paikoitusalue
Vapautuu: Heti vapaa
Vuokrahinta ja kulut
Kuukausivuokra: 16'900 €/kk, alv-vapaa tila
Lämmitys: Sisältyy vuokraan
Vesi- ja sähkömaksu: Vuokraan vastaa itse kuluistaan
Jätehuolto ja auraus talvella: Vuokraan vastaa itse kuluistaan ja järjestelyistä
Muuta: Vakuus 3 kk:n vuokraa vastaava summa, minimisopimus 12 kk, luottotietojen oltava kunnossa
Rakennuksessa on yhteensä kaksi kerrosta, josta katutasossa varastotilaa ja toisessa kerroksessa tasokasta toimistotilaa. Toimiston pinta-ala on yhteensä 960 m² (kerrosala) ja siellä on useita toimistohuoneita, keittiö ja sosiaalitilat. Ääniä tilassa vaimentaa hyväkuntoinen kokolattiamatto. Yläkerran ja alakerran välillä kulkee tavarahissi.
Varastotila on pinta-alaltaan noin 730 m² (kerrosala) ja sen sisätilan vapaa korkeus on noin 4,2 metriä. Hallin etuosassa on kaksi käyntiovellista nosto-ovea (L2,7 m x K3,0 m). Toisen nosto-oven edessä on lipan alla tilaa purkaa kuormaa/ lastata tilauksia. Varastossa ei ole lattiakaivoja. Tilan keskeltä löytyy kolme noin 10 m2 kokoista varastohuonetta ja yksi wc. Hallin keskellä lisäksi erillinen noin 60 m2 kokoinen huone.Varastotila sopii varastoinnin lisäksi monenlaisille yrityksille siistiin/pienimuotoiseen kokoonpanotyöskentelyyn.
Turvallinen aidattu iso tontti 2000 m².
Rakennukseen on mahdollista saada valokuitu tehostamaan internetyhteyksiä.
Tiloja voidaan harkita jaettavan kahdelle yritykselle, kysy tästä tarvittaessa lisää. Vuokra sisältää lämmityksen. Vuokralainen vastaa itse sähkö, vesi ja auraus/pihan hoito, jätehuolto.
Hyvä sijainti - Kehä I:lle vain yhden kilometrin ajomatka!
Kohdetiedot
Sijainti
Katuosoite: Kylvöpolku 6, 00680 Helsinki
Kaupunginosa: Itä-Pakila
Ympäristö: Yritys- ja toimitila-aluetta
Rakennus/huoneisto
Pinta-alat: 730 m² + noin 960 m² (kerrosala, ei mitattu)
Kiinteistötyyppi: Teollisuuden tuotantorakennus
Rakennusvuosi: 1971
Energiatodistus: Laki ei edellytä todistusta
Huoneistoselitelmä: Varastotilaa/tuotantotilaa ja toimistotilaa sosiaalitiloineen
Kunto, varusteet ja palvelut: Hyvässä kunnossa olevat tilat. Hallissa nosto-ovet. Toimistossa toimistohuoneita keittiö ja wc.
Lämmitys: Kaukolämpö
Pysäköinti: Rakennuksen takana paikoitusalue
Vapautuu: Heti vapaa
Vuokrahinta ja kulut
Kuukausivuokra: 16'900 €/kk, alv-vapaa tila
Lämmitys: Sisältyy vuokraan
Vesi- ja sähkömaksu: Vuokraan vastaa itse kuluistaan
Jätehuolto ja auraus talvella: Vuokraan vastaa itse kuluistaan ja järjestelyistä
Muuta: Vakuus 3 kk:n vuokraa vastaava summa, minimisopimus 12 kk, luottotietojen oltava kunnossa
Vapautuu
Heti
Näkyvällä paikalla
Ota yhteyttä
Tilat.fi
KTM, LKV Antti Soivio
Näytä puhelinnumero
0400 446 553
OTM, LKV Riikka Tuominen
Näytä puhelinnumero
0400 551 790
KTM, LKV Maria-Sofia Puhakka
Näytä puhelinnumero
0400-150330
MBA Susanne Wallenius
Näytä puhelinnumero
0400-128877
Yrityksen virallinen nimi: LKV Tilat.fi Oy.
Toimitilojen välitykseen erikoistunut yritys.
Pyydä lisätietoa
