Vuokrataan toimistotilat, tuotantotilat, varastotilat, autotalli/-hallitilat - Jyväskylä
Kaakkovuorentie 5, Seppälänkangas, 40320 Jyväskylä #10820705
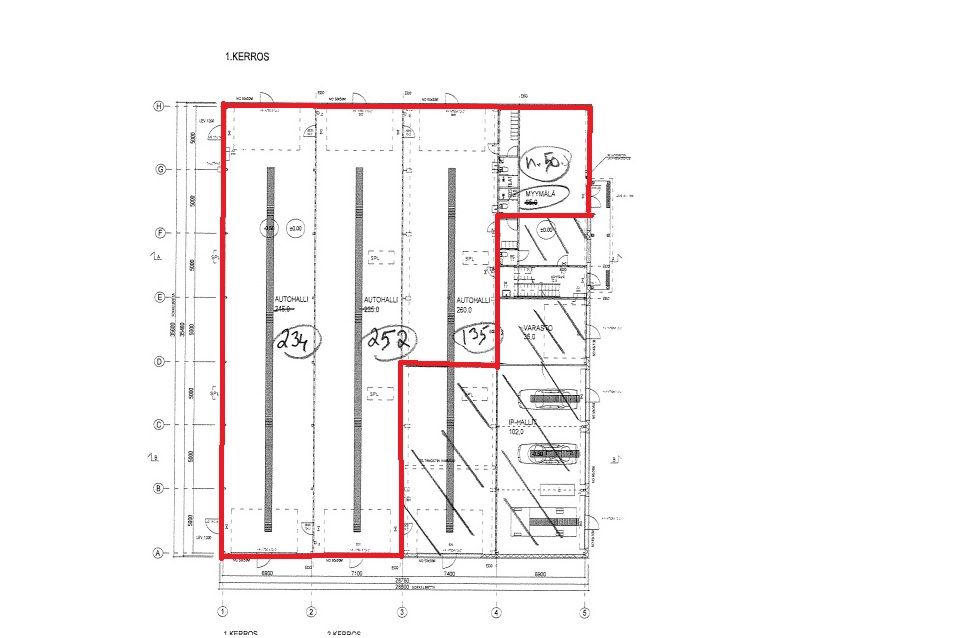
Vuokrataan Seppälänkankaalta Kaakkovuorentieltä n. 671 m2 uudehkoa tuotanto - / varasto-, hallitilaa. Tila palvelee tällä hetkellä varastotilana. Tila soveltuu varastointiin, tuotantoon sekä myös raskaan kaluston pesuun. Raskaan kaluston huolto- ja korjaustoiminta vaatii muutostöitä tilaan. Tontille on kaksi liittymää, ja kiinteistön pihalle mahtuu isollakin yhdistelmä-ajoneuvolla. Raskaan kaluston parkkipaikkoja löytyy tarvittaessa lähistöltä. Läpiajettavaan hallitilaan mahtuu 35m pitkä yhdistelmä. Lisäksi kokonaisuuteen kuuluu myös n. 50m2 toimisto - / myymälätila, ks pohjakuva. Mahdollisuus vuokrata myös yläkerran toimistotila 83 m2.
Kiinteistö lämpiää kaukolämmöllä. Toimistotiloissa oma ilmanvaihto ja jäähdytys. Led-valaistus ja hyvä sähkövarustus. Tila soveltuu esimerkiksi tukikohtatilaksi raskaan kaluston yritykselle, raskaan tai kevyemmän kaluston pesutilaksi tai varasto - / tuotantotilaksi. Tilassa on varaus siltanosturille.
Lisätiedot ja näytöt: Henri Kumpulainen, 040 864 3631, henri.kumpulainen@aveon.fi
Katutasossa
Näkyvällä paikalla
Jaettavissa
Siltanosturi
Aveon Real Estate Oy
Kauppakatu 18 C 26, 40100 Jyväskylä
Henri Kumpulainen
Puh.
Näytä puhelinnumero
040 864 3631
henri.kumpulainen@aveon.fi
Olemme kiinteistöliiketoiminnan asiantuntija, joka toimii yrittäjämäisesti neuvonantajana kiinteistökaupoissa, toimitilavälittämisessä sekä kiinteistökehityksessä.
Asiakkaitamme ovat kotimaiset ja ulkomaiset kiinteistönomistajat, -sijoittajat sekä tilojen käyttäjät kaikkialla Suomessa.
