Vuokrataan liiketilat - Helsinki
Yrjönkatu 23 B, Kamppi, 00100 Helsinki #10820167
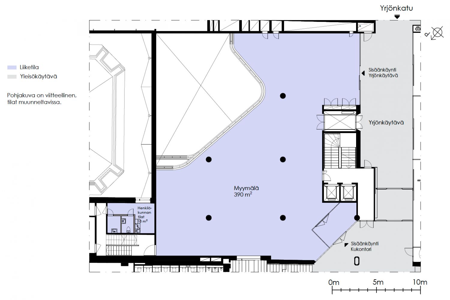
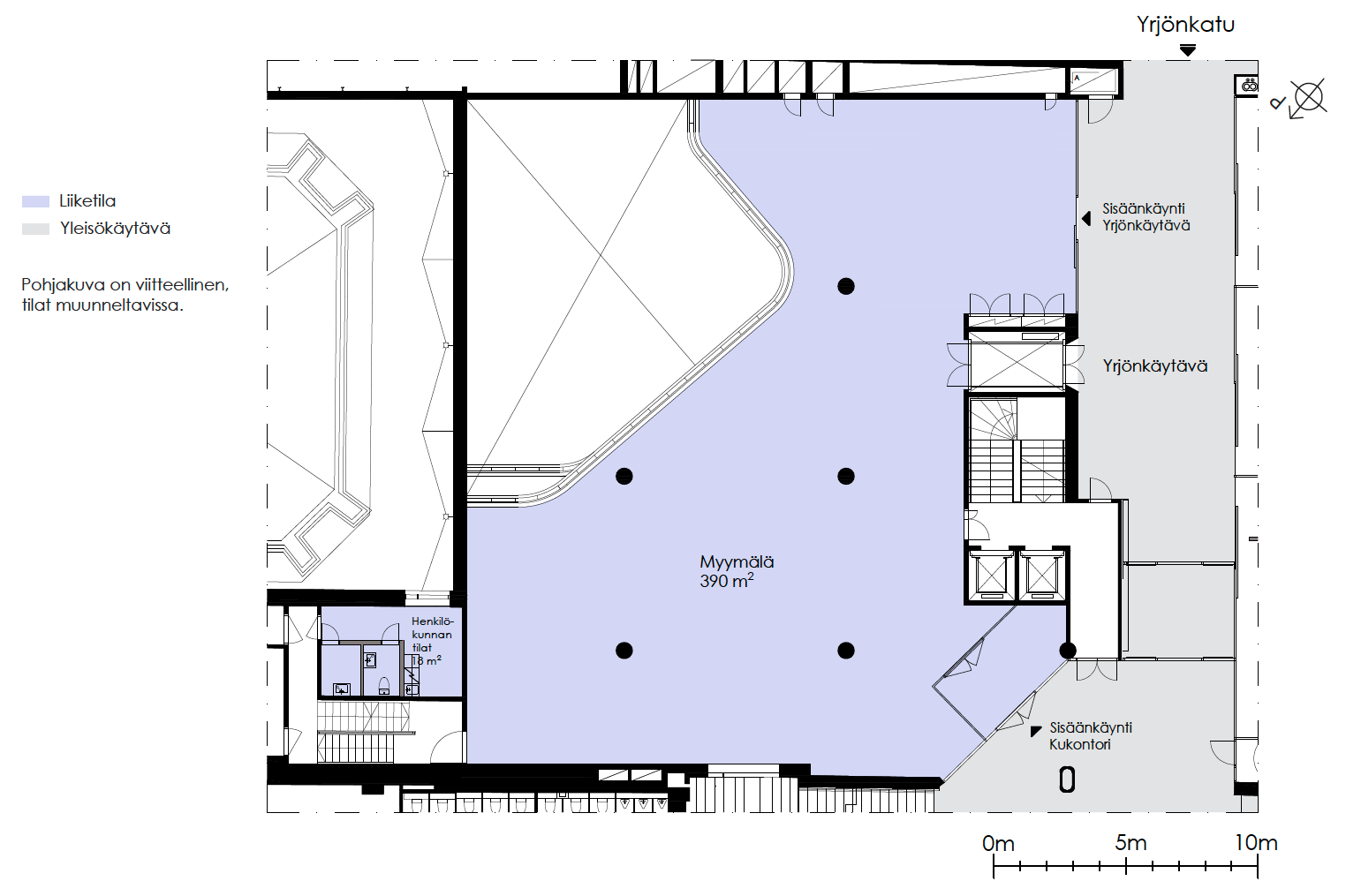
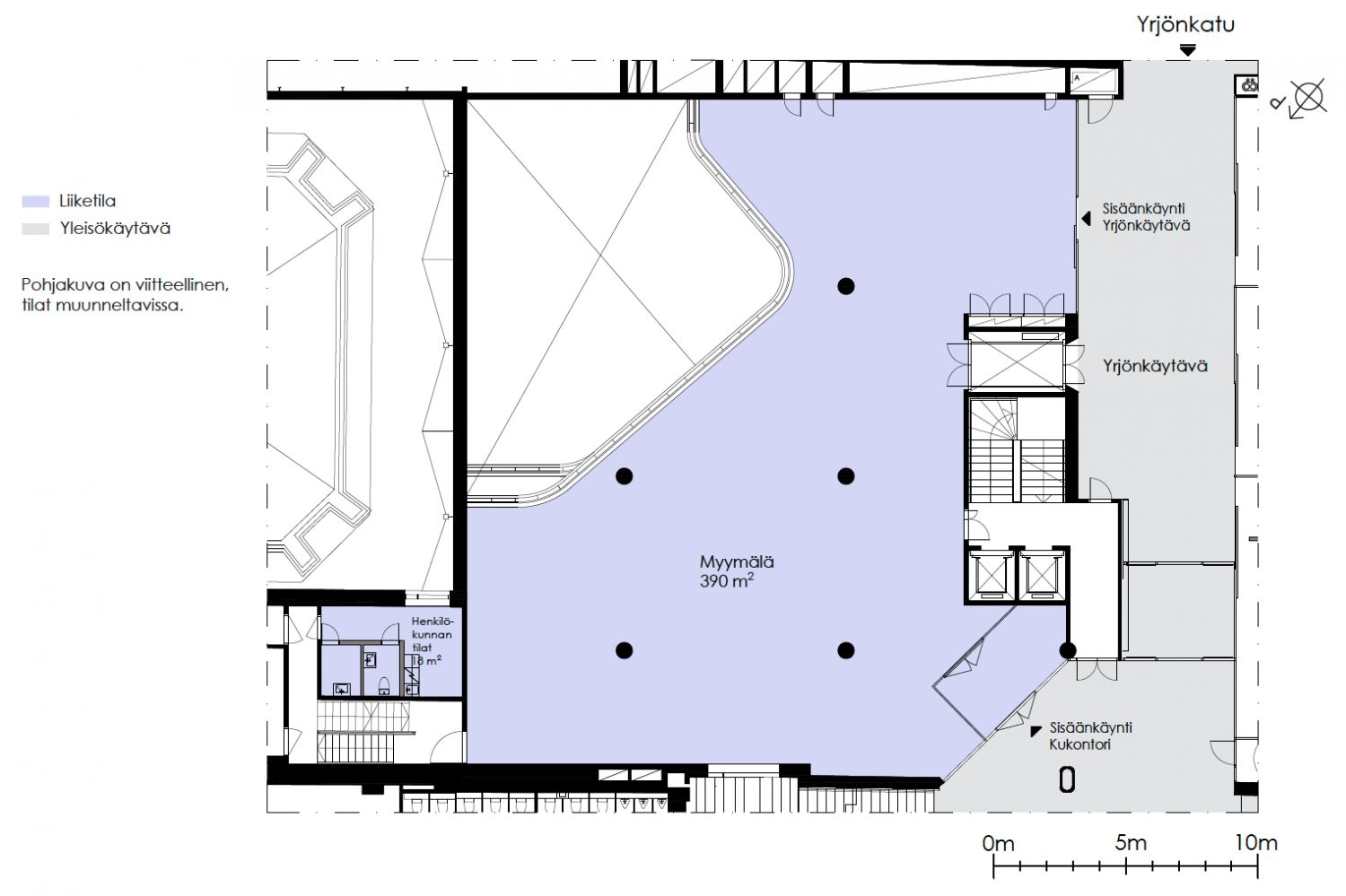
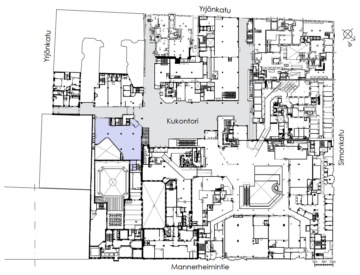
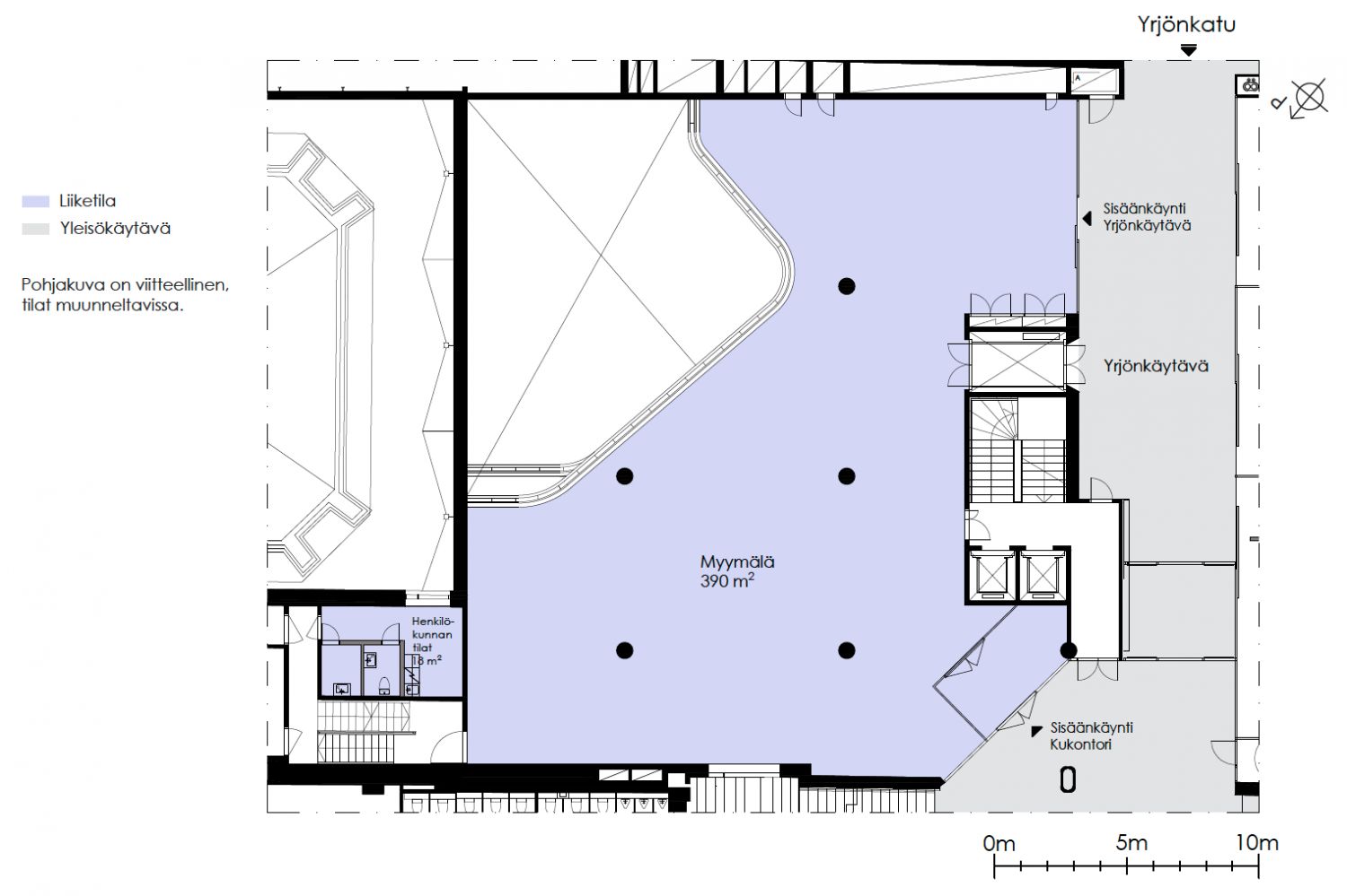
Persoonallinen kivijalkahenkinen liiketila kauppakeskus Forumin 3. kerroksessa, mutta kuitenkin kätevästi katutasossa. Liiketila avautuu ulos uudistuvalle Kukontorille, jonne on jalankulku sekä Yrjönkadun että Kalevankadun suunnasta. Liiketilasta on isot ikkunat sekä Kukontorille että viereiselle Yrjönkäytävälle. Liiketila ei ole soveltuva ruokaravintolakäyttöön.
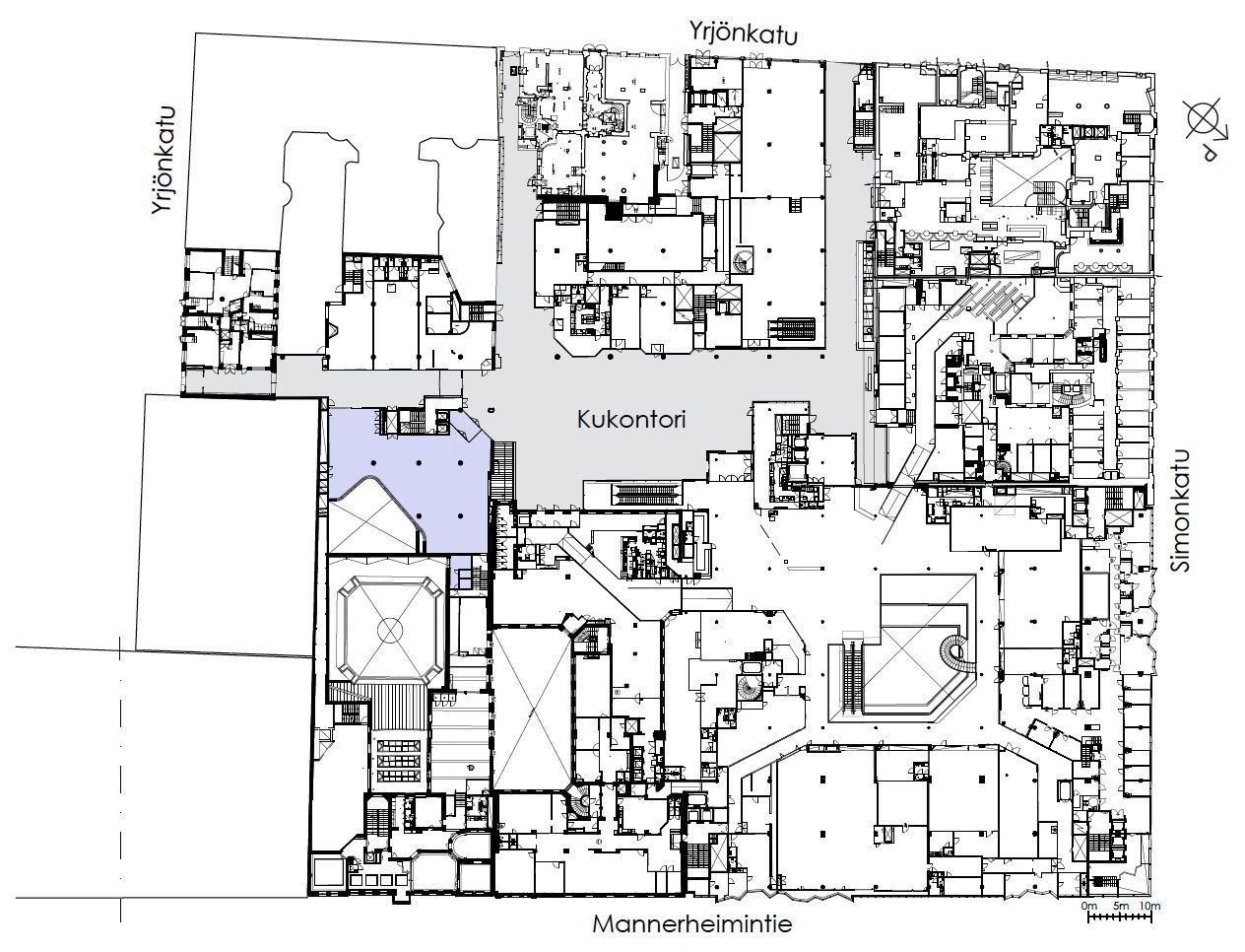
Forum-korttelin ainutlaatuinen kokonaisuus muodostuu kuudesta kiinteistöstä. Helsingin keskeisimmällä paikalla sijaitsevissa rakennuksissa on persoonallisia yksityiskohtia ja pitkän kulttuuriperinteen tuomaa arvokkuutta.
Kaikille Forum-korttelin kiinteistöille on myönnetty BREEAM In-Use Excellent -tason ympäristösertifikaatti. BREEAM (Building Research Establishment Environmental Assessment Method) on kansainvälinen rakennusten ympäristöluokitusjärjestelmä, joka tähtää rakennuksen käytön ympäristövaikutusten vähentämiseen sekä terveellisempien työympäristöjen kehittämiseen.
Forum-kortteli on myös täysin hiilineutraali käytön aikaisen energiankulutuksen osalta.
Lähimmälle juna-asemalle 500 m
Lähimmälle metroasemalle 400 m
Lähimmälle raitiovaunupysäkille 150 m
Lentokentälle 35 min
Sponda Oy
Yrjönkatu 29C, 00100 Helsinki
Näytä puhelinnumero
020 43131
Harri Autio
Director, Leasing
Näytä puhelinnumero
+358 40 846 6560
Heidi Svartsjö
Leasing Manager, Retail
Näytä puhelinnumero
+35850 012 1183
Sponda Oy
https://www.sponda.fi