Vuokrataan toimistotilat - Oulu
Tietotie 2, Oulunsalo, 90460 Oulu #10819816
Edustavaa toimistotilaa 3krs.
Osoite
Tietotie 2, 90460 Oulu
Tilatyyppi
Toimistotilaa
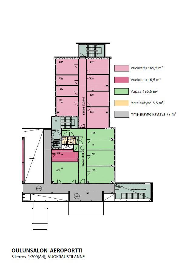
135 m2
Kiinteistö
Korkeatasoista toimistotilaa lentokentän vieressä
Aeroportissa on 3-kerroksessa laadukasta toimistotilaa tarjolla 135,5 m2 verran. Tiloihin pääsee muuttamaan halutessaan välittömästi.
Tilat koostuvat seuraavanlaisesti:
Tiloihin on optio oman keittiön / taukotilan rakentamisesta, esim. tilaan 326 tai F26.
Iso neuvottelutila, joka soveltuu myös työhuonekäyttöön.
Kolme hyvän kokoista toimistotilaa, joihin mahtuu useampikin työntekijä.
Vuokralaisten käytössä on yhteiskäyttöiset taukotilat, sosiaalitilat ja neukkarit. Kahviotilassa (B-osassa) on vuokraan sisältyen käytössä tee- ja kahvipalvelut. Kiinteään vuokrahintaan sisältyy runsaasti neuvottelutiloja sekä saunojen, kuntosalin ja tenniskentän käyttö. Vuokraan sisältyy myös käyttösähkö sekä yhteiskäytössä olevien tilojen siivouspalvelut.
Rakennus on valmistunut vuonna 2000 ja sille on myönnetty julkisivuyhdistyksen arkkitehtuuripalkinto vuonna 2001. Seitsenkerroksisen rakennuksen kokonaisala on 5200 m². Kiinteistössä on modernit ja muuntojoustavat toimistotilat sekä runsaasti neuvottelutiloja. Rakennuksesta löytyy myös edustavat hirsisaunat sekä virkistys, ravintola- ja kuntoilutilat.
Nykyaikaisiin vaatimuksiin vastaava kokonaisuus
Aeroportin viihtyisät tilat siivittävät työntekoa ja kiinteistöön kelpaa kutsua asiakkaita. Palaverit sujuvat moderneissa toimisto- ja neuvottelutiloissa. Neuvotteluita voi jatkaa vaikka talon hirsisaunoissa, joihin vuokralaisilla on käyttöoikeus. Käytettävissä ovat myös kaikki kiinteistön monipuoliset oheistilat, isompia neuvottelutiloja ja palvelut, kuten kahvilaravintola, reilunkokoiset sosiaalitilat pyöräilijöille, hyvin varusteltu kuntosali sekä tenniskenttä. Piha-alueella on runsaasti parkkipaikkoja sekä tenniskenttä. Lisäksi talossa on kattava ilmanvaihto, jossa juuri uusittu koneellinen jäähdytysjärjestelmä, joten kesälläkin työnteko on miellyttävää ja tilojen lämpötilat pysyvät viileinä.
Vuokraan sisältyy seuraavat kiinteistössä olevat tilat:
Kokoustiloja 5kpl, 8 hengen tilasta aina 50 hengen tilaan asti. Kokoustiloissa videotykkivarustelu, tussitaulut jne
Kattavat kuntosalilaitteisto sosiaalitiloineen
Erikseen varattavat ja laadukkaat sekä edustavat saunatilat (3kpl), joiden yhteydessä myös isompi neuvottelu / koulutustila
Tenniskentän ilmainen käyttö
Kiinteistö ja sijainti
Tarjolla siis varsin edustavaa pääkonttoritasoista toimistotilaa Oulussa! Moderni tomistokiinteistö sijaitsee lentokentän välittömässä läheisyydessä hyvien yhteyksien varrella. Aeroport sijaitsee aivan lentokentän vieressä, joten toimistolta on hyvät yhteydet maailman metropoleihin. 815 ja 847 teitä pitkin pääset myös kätevästi Oulun keskustaan ja satamaan.
Oulunsalossa on monipuolinen tarjonta erilaisia palveluita, kuten lounasravintoloita, ruokakauppoja, posti, kirjasto, terveysasema, hammaslääkäri ja apteekki.
Aeroportissa on 3-kerroksessa laadukasta toimistotilaa tarjolla 135,5 m2 verran. Tiloihin pääsee muuttamaan halutessaan välittömästi.
Tilat koostuvat seuraavanlaisesti:
Tiloihin on optio oman keittiön / taukotilan rakentamisesta, esim. tilaan 326 tai F26.
Iso neuvottelutila, joka soveltuu myös työhuonekäyttöön.
Kolme hyvän kokoista toimistotilaa, joihin mahtuu useampikin työntekijä.
Vuokralaisten käytössä on yhteiskäyttöiset taukotilat, sosiaalitilat ja neukkarit. Kahviotilassa (B-osassa) on vuokraan sisältyen käytössä tee- ja kahvipalvelut. Kiinteään vuokrahintaan sisältyy runsaasti neuvottelutiloja sekä saunojen, kuntosalin ja tenniskentän käyttö. Vuokraan sisältyy myös käyttösähkö sekä yhteiskäytössä olevien tilojen siivouspalvelut.
Rakennus on valmistunut vuonna 2000 ja sille on myönnetty julkisivuyhdistyksen arkkitehtuuripalkinto vuonna 2001. Seitsenkerroksisen rakennuksen kokonaisala on 5200 m². Kiinteistössä on modernit ja muuntojoustavat toimistotilat sekä runsaasti neuvottelutiloja. Rakennuksesta löytyy myös edustavat hirsisaunat sekä virkistys, ravintola- ja kuntoilutilat.
Nykyaikaisiin vaatimuksiin vastaava kokonaisuus
Aeroportin viihtyisät tilat siivittävät työntekoa ja kiinteistöön kelpaa kutsua asiakkaita. Palaverit sujuvat moderneissa toimisto- ja neuvottelutiloissa. Neuvotteluita voi jatkaa vaikka talon hirsisaunoissa, joihin vuokralaisilla on käyttöoikeus. Käytettävissä ovat myös kaikki kiinteistön monipuoliset oheistilat, isompia neuvottelutiloja ja palvelut, kuten kahvilaravintola, reilunkokoiset sosiaalitilat pyöräilijöille, hyvin varusteltu kuntosali sekä tenniskenttä. Piha-alueella on runsaasti parkkipaikkoja sekä tenniskenttä. Lisäksi talossa on kattava ilmanvaihto, jossa juuri uusittu koneellinen jäähdytysjärjestelmä, joten kesälläkin työnteko on miellyttävää ja tilojen lämpötilat pysyvät viileinä.
Vuokraan sisältyy seuraavat kiinteistössä olevat tilat:
Kokoustiloja 5kpl, 8 hengen tilasta aina 50 hengen tilaan asti. Kokoustiloissa videotykkivarustelu, tussitaulut jne
Kattavat kuntosalilaitteisto sosiaalitiloineen
Erikseen varattavat ja laadukkaat sekä edustavat saunatilat (3kpl), joiden yhteydessä myös isompi neuvottelu / koulutustila
Tenniskentän ilmainen käyttö
Kiinteistö ja sijainti
Tarjolla siis varsin edustavaa pääkonttoritasoista toimistotilaa Oulussa! Moderni tomistokiinteistö sijaitsee lentokentän välittömässä läheisyydessä hyvien yhteyksien varrella. Aeroport sijaitsee aivan lentokentän vieressä, joten toimistolta on hyvät yhteydet maailman metropoleihin. 815 ja 847 teitä pitkin pääset myös kätevästi Oulun keskustaan ja satamaan.
Oulunsalossa on monipuolinen tarjonta erilaisia palveluita, kuten lounasravintoloita, ruokakauppoja, posti, kirjasto, terveysasema, hammaslääkäri ja apteekki.
Vapautuu
Kysy
Kerros
3
Ota yhteyttä
Pyydä lisätietoa
