Videoesittely
Vuokrataan toimistotilat - Helsinki
Yrjönkatu 29, Kamppi, 00100 Helsinki #10819777
Siistiä ja valoisaa toimistotilaa erinomaisella sijainnilla.
Osoite
Yrjönkatu 29, 00100 Helsinki
Tilatyyppi
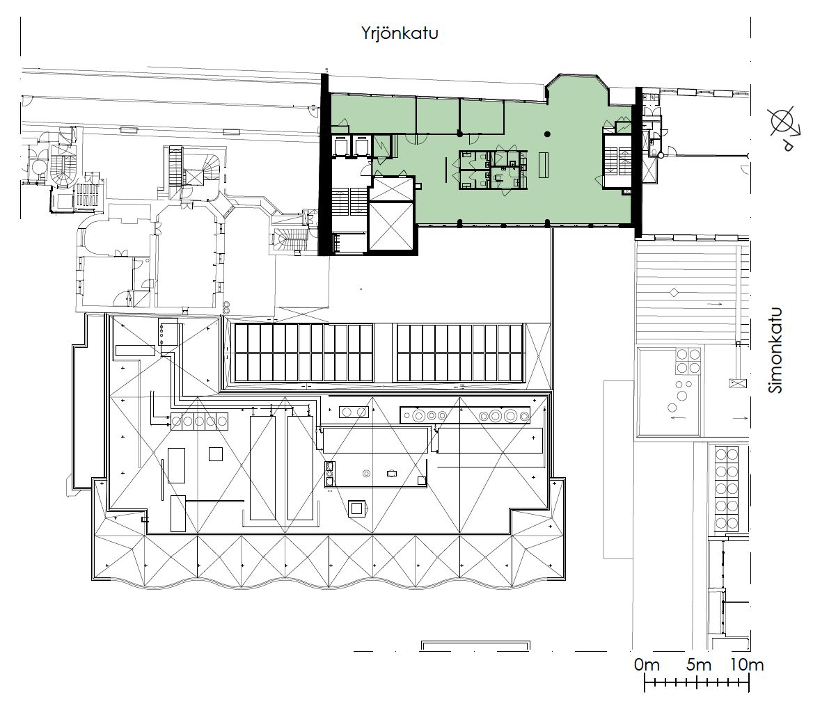
Toimistotilaa
277 m2
Pohjapiirros
Kiinteistö
Ainutlaatuiset toimitilat Helsingin kiehtovimmassa kauppakeskuskorttelissa
Vuonna 1985 valmistunut Yrjönkatu 29-toimistokiinteistö sijaitsee Suomen ikonisimman kauppakeskuskorttelin, Forumin, yhteydessä, kehittyvän kauppakadun varrella. Syksyllä 2021 täysin remontoiduista tiloista voi muokata itselleen pienen tehokkaan toimiston tai uniikin pääkonttorin.
Kiinteistölle myönnetty Excellent-tason BREEAM-sertifikaatti ja uudistuksessa hyödynnettävä huippuluokan talotekniikka takaavat tilojen käyttäjille optimaaliset työolosuhteet. Kiinteistö on myös täysin hiilineutraali käytön aikaisen energiankulutuksen osalta.
Kulttuurihistoriallinen Forum-kortteli muodostuu kuudesta liike- ja toimistokiinteistöstä sekä niiden keskellä risteävistä kauppakujista ja sisäpihoista. Kohteen sisäänkäynti avautuu vilkkaalle ja promenadi-tyyliselle Yrjönkadulle, joka luo mukulakivipäällysteineen, kivijalkaputiikkeineen ja arvorakennuksineen alueelle kiehtovan keski-eurooppalaisen tunnelman. Sijainti kaupallisen keskustan ytimessä takaa vuokralaisyrityksille loistavat lähipalvelut ja liikenneyhteydet.
Vuonna 1985 valmistunut Yrjönkatu 29-toimistokiinteistö sijaitsee Suomen ikonisimman kauppakeskuskorttelin, Forumin, yhteydessä, kehittyvän kauppakadun varrella. Syksyllä 2021 täysin remontoiduista tiloista voi muokata itselleen pienen tehokkaan toimiston tai uniikin pääkonttorin.
Kiinteistölle myönnetty Excellent-tason BREEAM-sertifikaatti ja uudistuksessa hyödynnettävä huippuluokan talotekniikka takaavat tilojen käyttäjille optimaaliset työolosuhteet. Kiinteistö on myös täysin hiilineutraali käytön aikaisen energiankulutuksen osalta.
Kulttuurihistoriallinen Forum-kortteli muodostuu kuudesta liike- ja toimistokiinteistöstä sekä niiden keskellä risteävistä kauppakujista ja sisäpihoista. Kohteen sisäänkäynti avautuu vilkkaalle ja promenadi-tyyliselle Yrjönkadulle, joka luo mukulakivipäällysteineen, kivijalkaputiikkeineen ja arvorakennuksineen alueelle kiehtovan keski-eurooppalaisen tunnelman. Sijainti kaupallisen keskustan ytimessä takaa vuokralaisyrityksille loistavat lähipalvelut ja liikenneyhteydet.
Sijainti
Sijainti Helsingin vilkkaimmalla liikealueella takaa kiinteistölle ihanteellisen saavutettavuuden. Raitiovaunut kulkevat lähietäisyydeltä, metrolle, bussille ja junalle on parin minuutin kävelymatka. Pyöräilyväylä Baana avaa suoran pyöräilyreitin keskustasta Ruoholahteen.
Pysäköinti
Forum-P
Palvelut
Forum-kortteli tarjoaa kattavan valikoiman lounas-, afterwork- ja hyvinvointipalveluita. Korttelista löytyy myös työmatkapyöräilyn mahdollistavat suihku- ja sosiaalitilat sekä valvottu pyöräparkki.
Kulkuyhteydet
Lähimmälle bussipysäkille 350 m
Lähimmälle juna-asemalle 500 m
Lähimmälle metroasemalle 350 m
Lähimmälle raitiovaunupysäkille 100 m
Lentokentälle 35 min
Lähimmälle juna-asemalle 500 m
Lähimmälle metroasemalle 350 m
Lähimmälle raitiovaunupysäkille 100 m
Lentokentälle 35 min
Vapautuu
Kysy
Rakennusvuosi
1983
Kerros
5
Energiatehokkuusluokka
C2018
Ympäristöluokitus
BREEAM In-Use Excellent,RESB Global Sector Leader 2025
Ota yhteyttä
Sponda Oy
Yrjönkatu 29C, 00100 Helsinki
Näytä puhelinnumero
020 43131
Magnus Öster
Director, Leasing
Näytä puhelinnumero
+358 40 768 4926
Heidi Svartsjö
Leasing Manager, Retail
Näytä puhelinnumero
+35850 012 1183
Sponda Oy
https://www.sponda.fiPyydä lisätietoa
