Vuokrataan varastotilat - Espoo
Nöykkiönpuro 19 B, Nöykkiö, 02300 Espoo #10819471
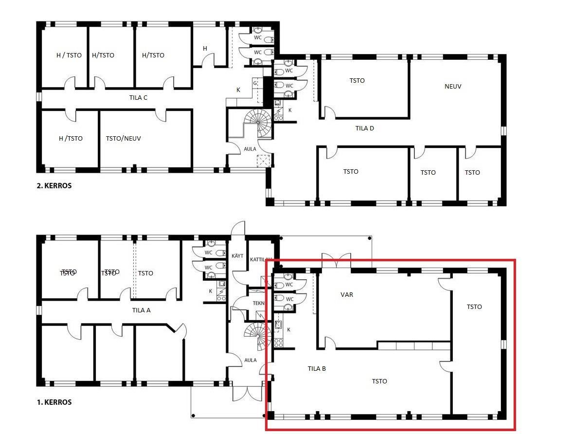
Vuokrattavana siistikuntoinen ja monipuolinen toimitila rauhalliselta alueelta toimistotalon ensimmäisestä kerroksesta.
Tila soveltuu erinomaisesti niin varastointiin, showroomiksi tai toimistokäyttöön Vuokrattavissa kalustettuna tai ilman kalusteita, myös lyhyeksi ajaksi.
Tilassa on huone/neuvottelutila, avotyötila sekä varasto, johon on kulku pariovien kautta.
Varaston edustalla on lastausalue, joka helpottaa tavaraliikennettä.
Lisäksi tilassa on keittiö/taukotila ja kaksi erillistä WC:tä.
Rakennus on valmistunut vuonna 2000 ja yhdistetty valokuituun, mikä takaa nopeat yhteydet.
Tontilla on runsaasti pysäköintitilaa sekä henkilökunnalle että asiakkaille. Mahdollisuus vuokrata useampia autopaikkoja. Halutessasi voit vuokrata myös yläpuolella sijaitsevan tilan D (134 m²), joka tarjoaa lisätilaa esimerkiksi varastointiin tai työpisteille.
Ota yhteyttä ja sovi esittely, tilat ovat valmiina yrityksesi käyttöön.
Mika Nyman
0400347758
mika.nyman@op.fi
Tontin kaavamerkintä on Nöykkiönpuro, Eestinmalmi I -nimisessä asemakaavassa AL-1 (Asuin-, liike- ja toimistorakennusten korttelialue).
Sijaitsee rakennuksen 1. kerroksessa / katutasossa.
Sopimus laaditaan toistaiseksi voimassaolevana, jossa 2 kk. irtisanomisaika.
Vuokra sisältää ALV 25,5%.
Vuokralaisen tulee tehdä oma sähkösopimus, sekä sopimus tietoliikenneyhteyksistä.
Tila yhdistetty valokuituun.
Vakuus 1-3 kk vuokraa + alv vastaava summa.
Mahdollisuus useampaan autopaikkaan.
Mahdollista vuokrata myös yläpuolella oleva tila D, 134 m².
Toimistorakennus:
Valmistumisvuosi: 2000
Kerrosluku: 2
Kerrosala: 599 m²
Tilavuus: 1 915 m³
Runko teräspilarit ja -palkit, välipohja on ontelolaatastoa.
Julkisivussa tiiliverhous.
Harjakatto, peltikate.
Koneellinen ilmanvaihto +LTO
Öljytoiminen keskuslämitys, vesikiertoinen lattialämmitys.
Rakennukselle puollettu poikkeamislupa kerrosluvun osalta.
Loppukatselmus molemmille rakennuksille 13.9.2001.
Rakennukseen tehty kuntoarvio 25.1.2024.
OP Koti Uusimaa Oy LKV
Toimitilapalvelut
Arkadiankatu 23
00100 HELSINKI
Mika Nyman
Toimitilavälittäjä, Kiinteistöarvioija, LKV, YKV, AKA/KHK
Näytä puhelinnumero
0400 347 758
