Vuokrataan toimistotilat - Helsinki
Valimotie 13a 4.krs 275 m2 toimistotila, Valimotie 13a, Pitäjänmäki, 00380 Helsinki #10819252
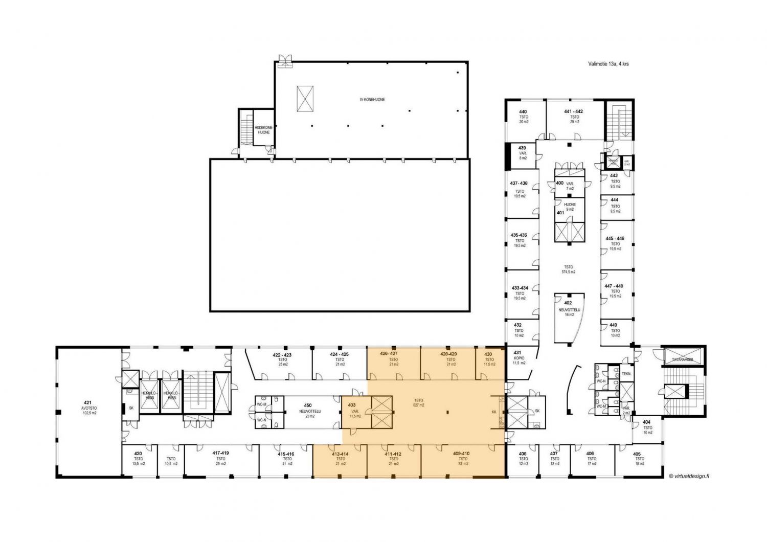
Jäähdytetty toimistotila Valimotie 13 a:n rakenuksessa omalla sisäänkäynnillä rakennuksen neljännessä kerroksessa. Tila koostuu useammasta toimistohuoneesta ja tilajakoa on muokattavissa tarpeen mukaan. Tila sisältää oman keittiön.
Tilan muokkaus onnistuu joustavasti ja suurinta osaa seinistä pystyy siirtämään, jolloin mahdollisuus on isoihinkin pohjamuutoksiin. Suunnittelemme mahdolliset remontit ja muutostyöt aina asiakaskohtaisesti vuokraneuvottelujen yhteydessä. Suunnitellaan yhdessä sellainen toimistotila, jossa yrityksesi viihtyy!
Katso 3D-esittely saneeratusta toimitilakohteestamme samasta kiinteistöstä: https://my.matterport.com/show/?m=hDSYiUZkdSN
Valimo Centerin Valimotie 13a:ssa sijaitsee kaikkia vuokralaisia palvelevat aulapalvelut ja rakennuksen katutasossa runsaan lounaan arkipäivisin tarjoilee Ravintola Factory. Ravintolan takaosasta löytyy neuvottelutilat: Paja, Verstas ja Tehdas, jotka ovat vuokrattavissa joustavasti – kokoustarjoiluilla tai ilman.
Katso videoesittely Valimo Centeristä: https://youtu.be/W4-0X0CgEa0
Tästä kohteesta voit olla yhteydessä pääkaupunkiseudun vuokrauspäällikköömme Artoon.
Puh. 044 906 2226 / Arto Haavisto
Tiheästi liikennöivät joukkoliikenneyhteydet helpottavat saapumista. Lähin bussipysäkki sijaitsee Vihdintiellä, vain 350 metrin päässä Valimo Centeristä. Myös poikittaisliikenteen linjat, kuten jokerilinja 550, 54 ja 59, kulkevat alueelta.
- Valmistunut vuonna 1974, saneerattu 1996
- Pinta-ala: 17 236 m²
- Kerrosten lukumäärä: 6
- 2 tavarahissiä ja lastausalue parkkihallissa
- 3 henkilöhissiä
- Koneellinen jäähdytetty ilmanvaihto / huonekohtainen erillisjäähdytys
- Turvallista kulunvalvottua tilaa
- Autopaikat: 130 kpl autohalleissa ja katolla
- Sauna ja kuntosali
- Aulapalvelut
- Lounasravintola
Hissi
Nurmi-Yhtiöt Oy
Nurmi Kiinteistöt
Jousitie 7
20760 Piispanristi
puh.
Näytä puhelinnumero
044 906 2226
/ Arto Haavisto (pk-seutu)
puh.
Näytä puhelinnumero
040 624 0344
/ Ilias Niemi (Varsinais-Suomi)
