Vuokrataan tuotantotilat, varastotilat - Espoo
Sinimäentie 6 C, Nihtisilta, 02630 Espoo #10818739
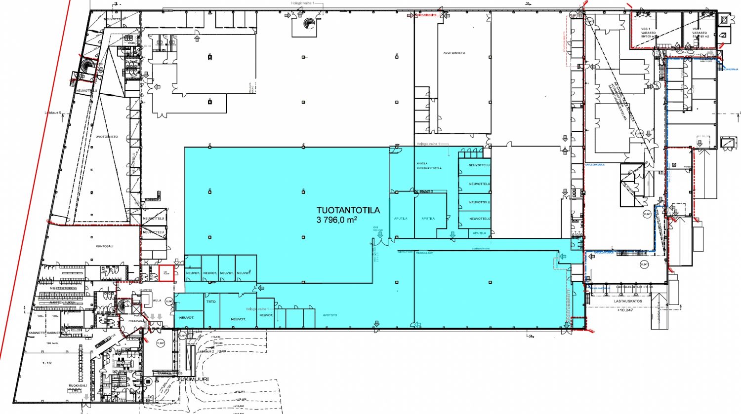
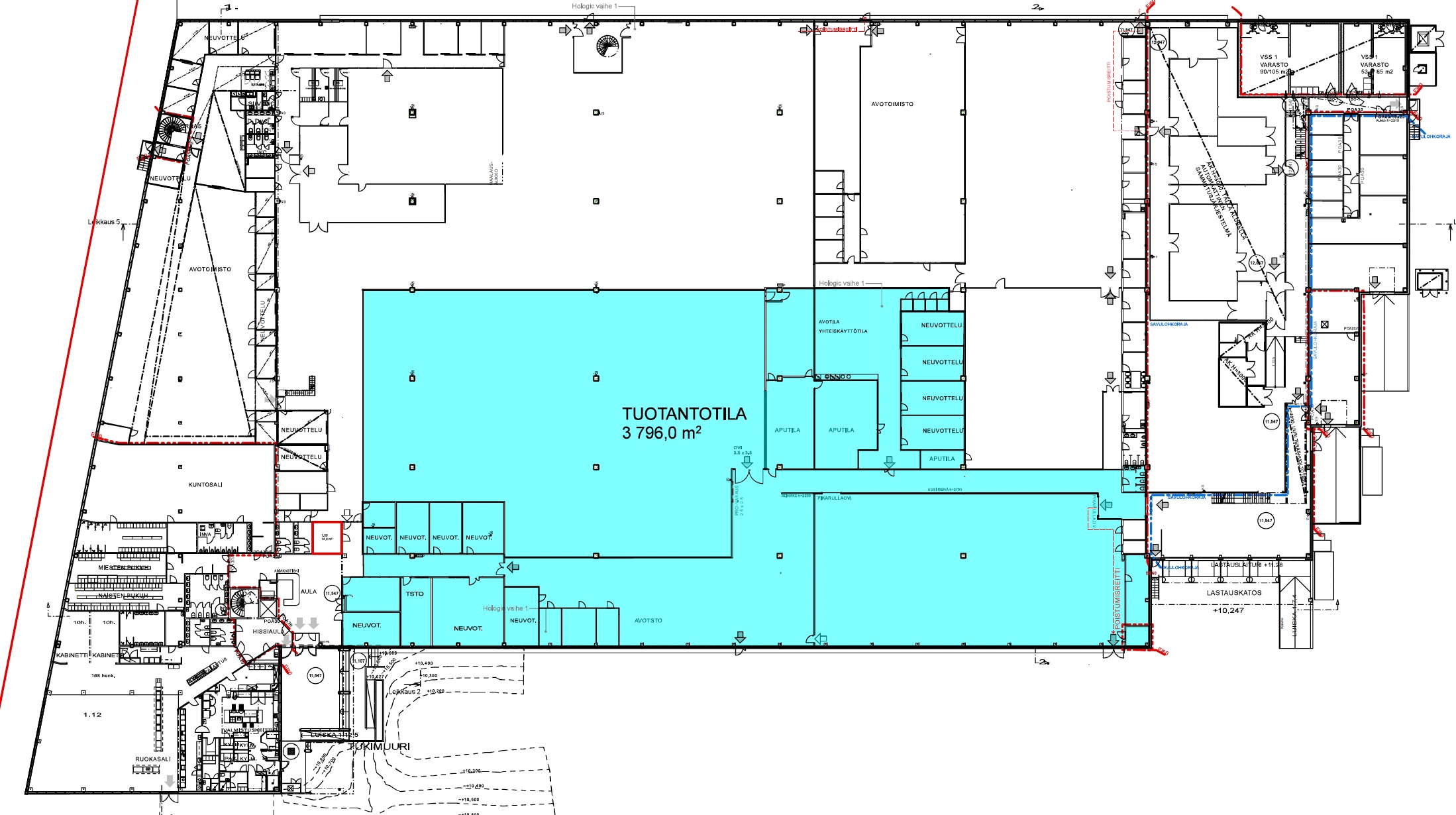
Korkean teknologian 3796 m² tuotanto- ja varastotilaa sekä toimistotilaa Espoon Sinimäentieltä.
Osoite
Sinimäentie 6 C, 02630 Espoo
Tilatyyppi
Tuotantotilaa
3796 m2
Varastotilaa
3796 m2
Yhteensä
3796 m2
Pohjapiirros
Kiinteistö
Kohde on alun perin rakennettu elektroniikkatuotantolaitokseksi ja kiinteistö on hyväkuntoinen / hyvin hoidettu. Tilat ovat kunnoltaan uutta vastaavia.
Lattian kantavuus 2 tn / m².
3 lastausaukkoa + yksi ramppi (nämä ovat vuokralaisten yhteiskäytössä).
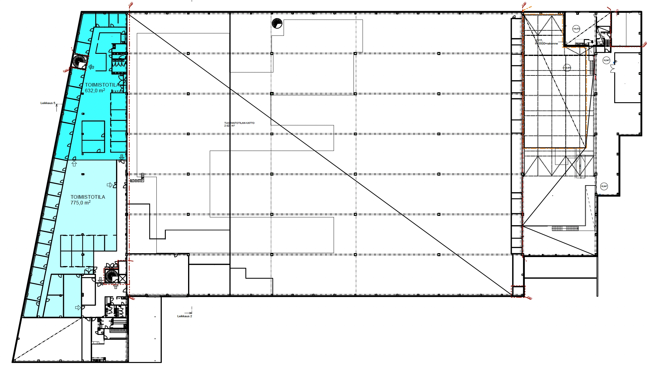
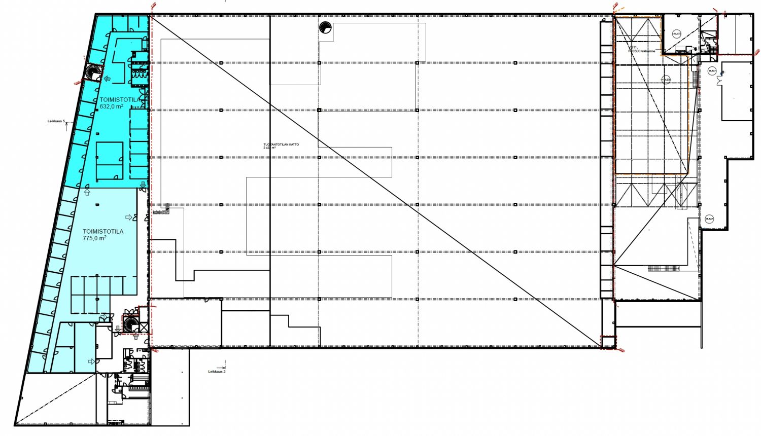
Lisäksi kiinteistössä on vapaana 2. kerroksesta toimistotilaa n. 775 m² + n. 632 m² eli yhteensä saatavilla n. 1407 m² toimistoa
Kohde sijaitsee hyvien kulkuyhteyksien varrella Turunväylän ja Kehä ll läheisyydessä ja bussi kulkee 10 minuutin vuorovälein. Kiinteistössä henkilöstöravintola.
Espoon Sinimäen liike- ja palvelutarjonta on erittäin kattavaa. Sinimäestä on hyvät yhteydet myös julkisilla kulkuvälineillä, bussi kulkee 10 minuutin vuorovälein. Hyvät yhteydet, sekä lähialueiden; Mankkaan, Laajalahden ja Kilon asukkaat tuovat alueelle ostovoimaa.
Sinimäentie 6 C on noin 16 000 m² tuotanto- tai myymäläkäyttöön soveltuvaa ja tarvittavat toimistotilat sisältävää monikäyttötilaa. Kiinteistöön on räätälöity erikoistilaa nykyisen päävuokralaisen käyttöön. C-talossa on myös kaikille avoin henkilöstöravintola.
Lattian kantavuus 2 tn / m².
3 lastausaukkoa + yksi ramppi (nämä ovat vuokralaisten yhteiskäytössä).
Lisäksi kiinteistössä on vapaana 2. kerroksesta toimistotilaa n. 775 m² + n. 632 m² eli yhteensä saatavilla n. 1407 m² toimistoa
Kohde sijaitsee hyvien kulkuyhteyksien varrella Turunväylän ja Kehä ll läheisyydessä ja bussi kulkee 10 minuutin vuorovälein. Kiinteistössä henkilöstöravintola.
Espoon Sinimäen liike- ja palvelutarjonta on erittäin kattavaa. Sinimäestä on hyvät yhteydet myös julkisilla kulkuvälineillä, bussi kulkee 10 minuutin vuorovälein. Hyvät yhteydet, sekä lähialueiden; Mankkaan, Laajalahden ja Kilon asukkaat tuovat alueelle ostovoimaa.
Sinimäentie 6 C on noin 16 000 m² tuotanto- tai myymäläkäyttöön soveltuvaa ja tarvittavat toimistotilat sisältävää monikäyttötilaa. Kiinteistöön on räätälöity erikoistilaa nykyisen päävuokralaisen käyttöön. C-talossa on myös kaikille avoin henkilöstöravintola.
Vapautuu
Heti
Rakennusvuosi
1998
Saneerausvuosi
2004
Kerros
1 / 1
Energiatehokkuusluokka
Ei lain edellyttämää energiatodistusta
Näkyvällä paikalla
Lastauslaituri
Ota yhteyttä
ScanReal Oy LKV
Opus Business Park
Hitsaajankatu 24
00810 Helsinki
info@scanreal.fi
Puh:
Näytä puhelinnumero
020 730 8830
Sopivat toimitilat yhdellä otolla!
Kartoitamme toimitilatarpeesi ja etsimme yrityksellesi parhaiten sopivat vapaat toimitilat. Koska vuokranantajat maksavat palvelumme, on tämä yrityksellesi veloituksetonta.
Palvelumme on tilanhakijalle ilmainen
Pyydä lisätietoa
