Vuokrataan varastotilat - Hyvinkää
Kerkkolankatu 32 rak 4, Sahanmäki, 05800 Hyvinkää #10818613
Monipuolinen varasto- ja työtila Sahamäen teollisuusalueella - heti vapaa!
Vuokrattavana lämmin varasto- ja työtila, jonka yhteydessä noin 250 m² kylmä varasto.
Kohde sijaitsee Hyvinkään Sahamäen teollisuusalueella, joka tarjoaa erinomaiset liikenneyhteydet mm. valtatie 3:n (Hämeenlinnanväylän) kautta - nopea yhteys pääkaupunkiseudulle ja muualle Etelä-Suomeen.
Tila soveltuu erinomaisesti varastointiin, kevyisiin työtehtäviin tai yhdistelmäkäyttöön.
Vuokrattavissa joko kokonaisuutena tai erikseen lämmin ja kylmä tila.
Lämmin hallitila on avoin, sisäkorkeus noin 4,7 m ja palkkikorkeus noin 4 m. Tilassa on pariovi (korkeus n. 3,5 m) sekä nosto-ovi kylmävarastoon (korkeus n. 4 m).
Kylmässä varastossa korkeat liukuovet, jotka mahdollistavat sujuvan tavaraliikenteen.
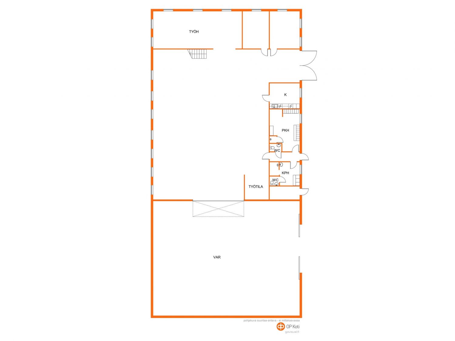
Hallin yhteydessä on matala työtila, toimistotiloja, varastoparvia, keittiö/taukotila sekä pukuhuone ja sosiaalitilat.
Hallitiloissa ei ole lattiakaivoja, mutta tilat on varustettu kaukolämmöllä, koneellisella poistoilmanvaihdolla, LED-valaistuksella, voimavirtapistokkeella.
Lattiapinnoitteena epoksi, seinät maalattu. Lisäksi varaus parvelle tuo mahdollisuuden laajentaa tilaa tarpeen mukaan.
Vuokraan lisätään arvonlisävero.
Vakuus 1-2 kuukauden vuokraa vastaava summa alv:lla.
Vuokralainen vastaa omista sähkö-, jätehuolto- ja tietoliikennesopimuksista.
Kiinteistöllä on useita rakennuksia, ja jokaisen edustalla on varattu pysäköintipaikkoja.
Tontti on aidattu ja varustettu liukuportilla, mikä tuo turvallisuutta ja selkeyttä alueelle.
Ota yhteyttä ja sovi esittely - tämä tila tarjoaa joustavat ratkaisut varastointiin ja työskentelyyn Hyvinkään logistisesti erinomaisella alueella!
Mika Nyman
0400347758
mika.nyman@op.fi
Jos sopimus irtisanotaan aiemmin, on sopimussakkona kahden kuukauden vuokraa vastaava summa.
Vuokraan lisätään alv.
Vuokralaisen tehtävä oma sopimus tietoliikenneyhteyksistä, ja jätehuoltosopimus.
Vuokranantaja laskuttaa sähkön vuokralaisilta alamittarin mukaan läpiulkueränä. Sähkösopimus tällä hetkellä pörssisähkö.
Vesi kulutuksen mukaan.
Tilat mahdollista jakaa, tai tehdä tilamuutos varastohalliin.
Varastotila vuokra 2850 €/kk.
Kylmä varasto 700 €/ kk.
Vuokravakuus 1-2 kk alv:sta vuokraa vastaava summa.
Varastorakennus 4 A ja B.
Rak. valmistumisvuosi 1983
Kerrosala n. 488 m² (pinta-ala tietoja ei ole tarkastusmitattu).
Kokonaispinta-ala 823 m².
Kylmävarasto n. 250 m².
Tilavuus 2992 m³.
Puupalkki rakenne, julkisivussa pelti/teräslevy verhous.
Harjakatto, peltikate.
Kaukolämpö. Hallitiloissa tuloilmapuhaltimet, toimisto ja sos.tiloissa patterit.
Rakennuksen edustalla hyvin pysäköintitilaa.
Kiinteistöllä useampi rakennus, joissa niin toimisto, varasto- ja työtiloja.
Tontti 1,2 ha, piha-alue asfaltoitu ja aidattu, sekä varustettu liukuportilla.
Tontilla reilusti pysäköintitilaa.
Muut tilat:
Kokonaisala Hyvinkään karttapalvelun tietojen mukaan 823 m².
Rakennuksen kylmä varasto n. 250 m²
Rakennuksen kerrosala 484 m² / tilavuus 2992 m³
Ilmoitettuja pinta-ala tietoja ei ole tarkastumitattu.
Jaettavissa
OP Koti Uusimaa Oy LKV
Toimitilapalvelut
Arkadiankatu 23
00100 HELSINKI
Mika Nyman
Toimitilavälittäjä, Kiinteistöarvioija, LKV, YKV, AKA/KHK
Näytä puhelinnumero
0400 347 758
