Vuokrataan tuotantotilat - Oulu
Ostomiehentie 13, Metsokangas, 90420 Oulu #10817550
Osoite
Ostomiehentie 13, 90420 Oulu
Tilatyyppi
Tuotantotilaa
387 m2
Vuokra
4368,60 €/kk
Vuokraan sisältyy lämpö
Muuta
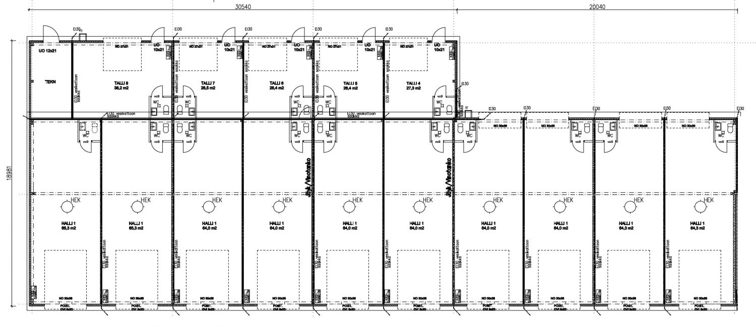
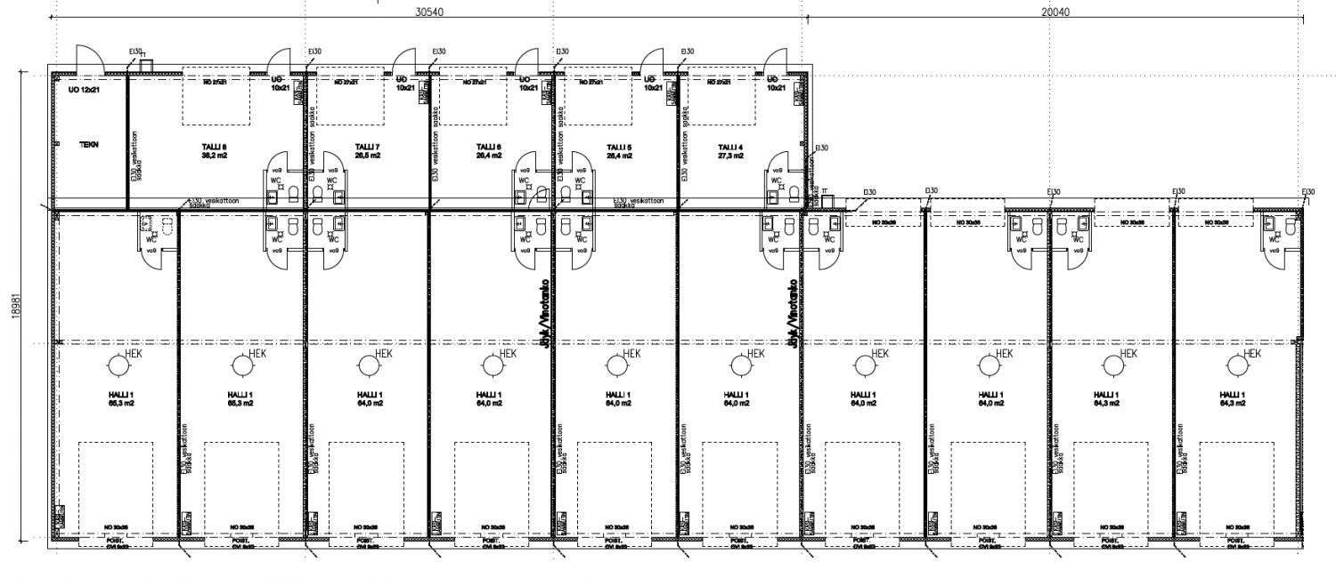
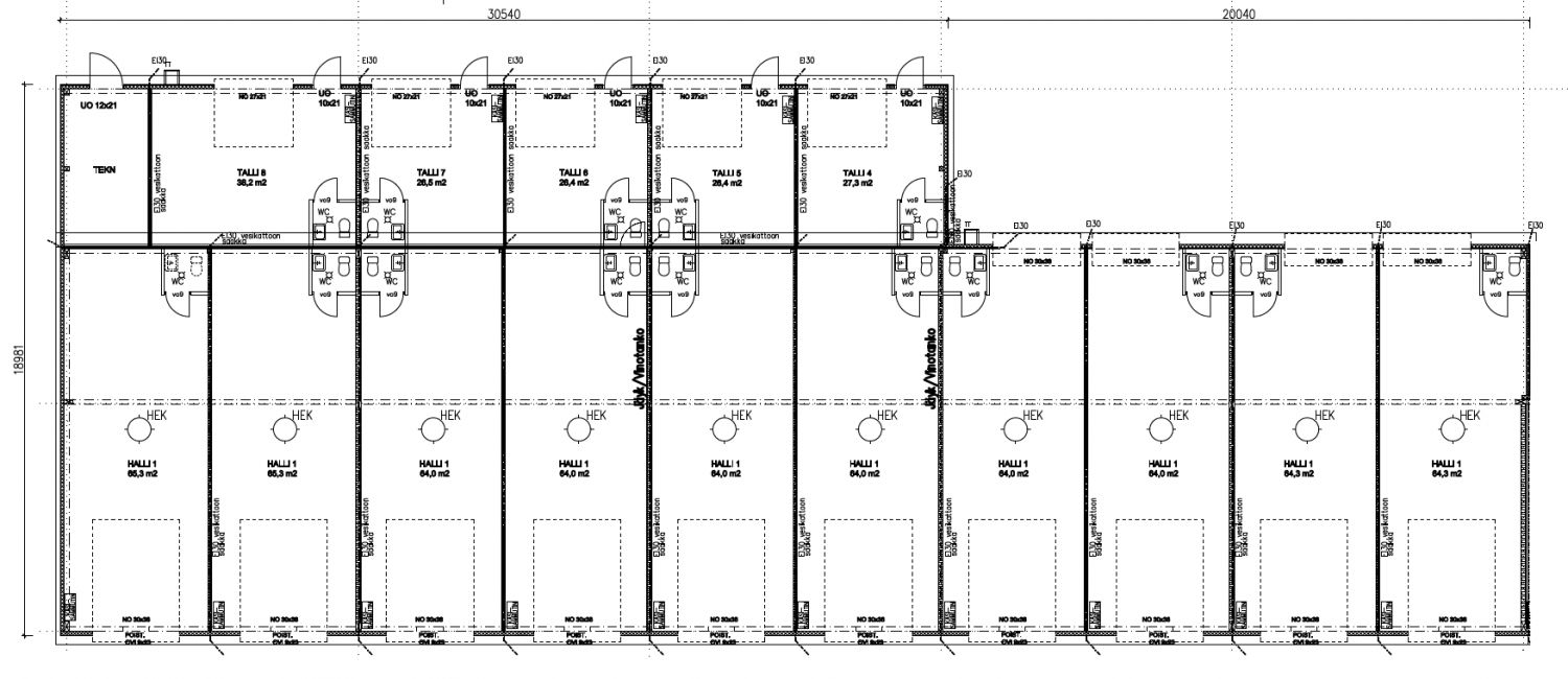
Moottoritien varrelta Metsokankaalta vuokrataan monenlaiseen yritys- tai harrastustoimintaan soveltuvaa uutta toimitilaa. Erinomaiselle sijainnille sijoittuvasta kokonaisuudesta on vuokrattavana tilaa 64m² - 643m². Tilaratkaisut ja -varustelut ovat muokattavissa tarpeen mukaan sopivaksi. Tilojen mukana on mahdollista vuokrata myös pihatilaa, ja isolle asfalttipihalle pääsee isommallakin ajoneuvolla.
Sijainti on erittäin hyvä, sillä paikalle on helppo tulla ja vältät kaupungin ruuhkat. Yhteydet ovat nopeat joka puolelle kaupunkia, ja Kaakkurin sekä Oulunportin kattavat palvelut ovat lähellä. Kohteessa on myös mahdollisuus moottoritielle näkyvälle valomainokselle.
Tilat ovat kaukolämmössä vesikiertoisella lattialämmityksellä. Lämmitys kuuluu vuokraan, vuokran lisäksi maksetaan käyttösähköstä ja vedestä kulutuksen mukaan. Tilat ovat juuri valmistuneet.
• Voimavirta
• Viemärivaraus WC:lle, minikeittiövaraus
• LED -valaistus
• Pinnoitettu lattia
• Lattiakaivo hiekan- ja öljynerotuksella
• Vesipiste (kylmä ja lämmin vesi)
• Koneellinen poistoilmanvaihto
• Sähköinen nosto-ovi, jossa erillinen käyntiovi
• Palosammutin
• Asfaltoitu, tilava piha-alue
• Katettua pihatilaa vuokrattavissa
• Isännöinti ja huoltosopimus, kameravalvonta
Ole yhteydessä, niin käydään tutustumassa!
Lisätiedot 040 5400 672 tai joni.romppainen@kiinteistotahkola.fi
Sijainti on erittäin hyvä, sillä paikalle on helppo tulla ja vältät kaupungin ruuhkat. Yhteydet ovat nopeat joka puolelle kaupunkia, ja Kaakkurin sekä Oulunportin kattavat palvelut ovat lähellä. Kohteessa on myös mahdollisuus moottoritielle näkyvälle valomainokselle.
Tilat ovat kaukolämmössä vesikiertoisella lattialämmityksellä. Lämmitys kuuluu vuokraan, vuokran lisäksi maksetaan käyttösähköstä ja vedestä kulutuksen mukaan. Tilat ovat juuri valmistuneet.
• Voimavirta
• Viemärivaraus WC:lle, minikeittiövaraus
• LED -valaistus
• Pinnoitettu lattia
• Lattiakaivo hiekan- ja öljynerotuksella
• Vesipiste (kylmä ja lämmin vesi)
• Koneellinen poistoilmanvaihto
• Sähköinen nosto-ovi, jossa erillinen käyntiovi
• Palosammutin
• Asfaltoitu, tilava piha-alue
• Katettua pihatilaa vuokrattavissa
• Isännöinti ja huoltosopimus, kameravalvonta
Ole yhteydessä, niin käydään tutustumassa!
Lisätiedot 040 5400 672 tai joni.romppainen@kiinteistotahkola.fi
Vapautuu
Heti vapaa
Rakennusvuosi
2025
Kerros
1
Ota yhteyttä
Kiinteistö-Tahkola Oy
Lumijoentie 1, 90400 Oulu
Näytä puhelinnumero
0207 480 250
Joni Romppainen
Näytä puhelinnumero
0405400672
Pyydä lisätietoa
