Vuokrataan toimistotilat, muut tilat - Helsinki
Eteläesplanadi 12, Keskusta, 00100 Helsinki #10817536
Edustava ja moderni 365 m² kuudennen kerroksen toimisto Kasarmikadun ja Eteläesplanadin kulmassa.
Osoite
Eteläesplanadi 12, 00100 Helsinki
Tilatyyppi
Toimistotilaa
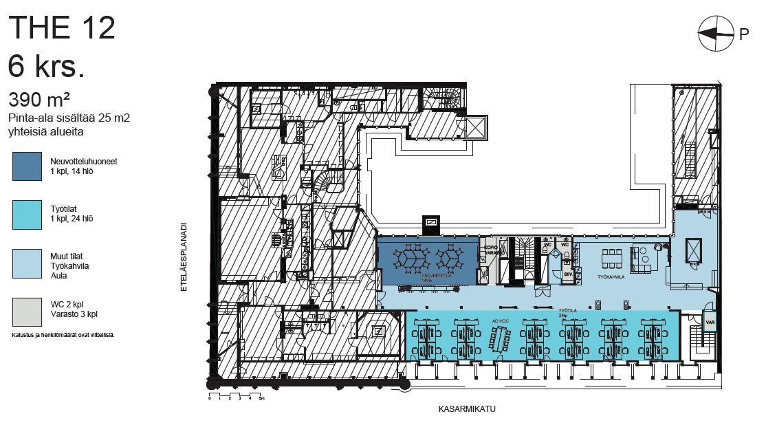
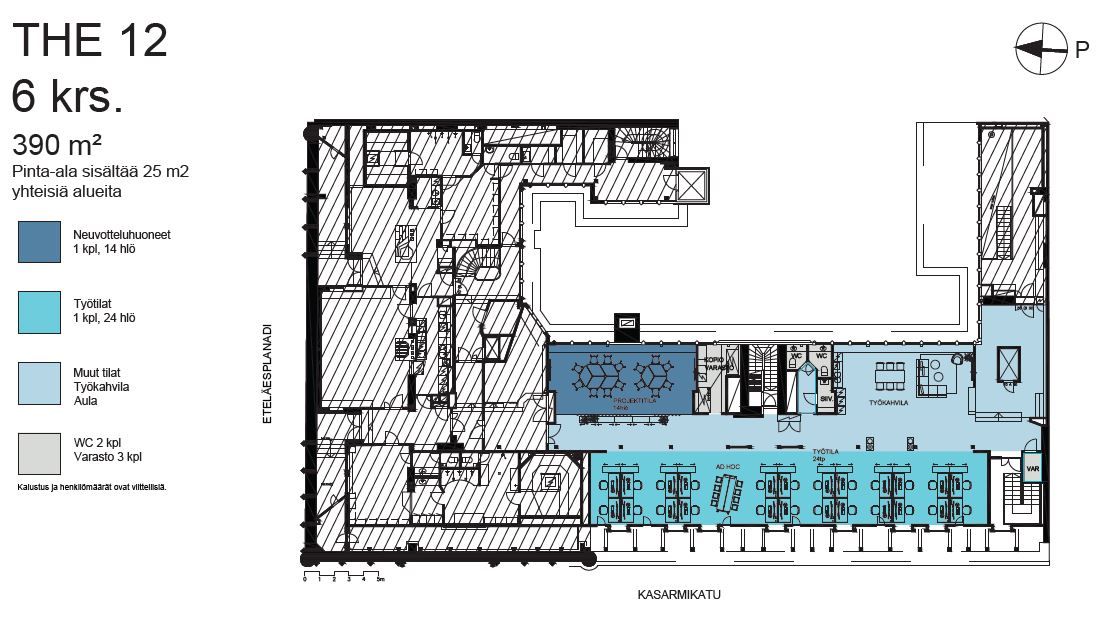
365 m2
Muuta tilaa
25 m2
Yhteensä
390 m2
Pohjapiirros
Kiinteistö
Vaativalle yritykselle edustava toimistotila, joka suunnitellaan ja muokataan asiakkaan toiveiden mukaan.
6. kerroksessa talon modernein tila, hieno avotilaksi soveltuva ullakkotoimisto. Tila suunnitellaan ja muokataan asiakkaan toiveiden mukaan. Korkeaa, vinokattoista tilaa. Tilaan kohdistuu jyvitys kiinteistön yhteisistä tiloista, noin 25 m² (sis. kokonaisneliömäärään).
Yksi ydinkeskustan näyttävimpiä arvokiinteistöjä, Eteläesplanadi 12 on vuonna 1899 rakennettu kaunis toimistorakennus. Kivitalosta on upeat näkymät Esplanadin puistoon. Rakennus sijaitsee paraatipaikalla keskustassa, alueen palvelujen ympäröimänä. Vain lyhyellä kävelyetäisyydellä sijaitsee muun muassa lukuisia, tasokkaita lounas- ja iltaravintoloita. Toimistotilat ovat käytännölliset, sopii avotilaksi ja tekniikka on moderni. Talossa on yhteiskäyttöiset suihkutilat ja näyttävät sisäänkäynnit.
Ilmoituksen sisäkuvat ovat kuvia eri tiloista ja havainnekuvat ovat luotu markkinointitarkoituksiin eivätkä välttämättä edusta lopullista toteutusta.
6. kerroksessa talon modernein tila, hieno avotilaksi soveltuva ullakkotoimisto. Tila suunnitellaan ja muokataan asiakkaan toiveiden mukaan. Korkeaa, vinokattoista tilaa. Tilaan kohdistuu jyvitys kiinteistön yhteisistä tiloista, noin 25 m² (sis. kokonaisneliömäärään).
Yksi ydinkeskustan näyttävimpiä arvokiinteistöjä, Eteläesplanadi 12 on vuonna 1899 rakennettu kaunis toimistorakennus. Kivitalosta on upeat näkymät Esplanadin puistoon. Rakennus sijaitsee paraatipaikalla keskustassa, alueen palvelujen ympäröimänä. Vain lyhyellä kävelyetäisyydellä sijaitsee muun muassa lukuisia, tasokkaita lounas- ja iltaravintoloita. Toimistotilat ovat käytännölliset, sopii avotilaksi ja tekniikka on moderni. Talossa on yhteiskäyttöiset suihkutilat ja näyttävät sisäänkäynnit.
Ilmoituksen sisäkuvat ovat kuvia eri tiloista ja havainnekuvat ovat luotu markkinointitarkoituksiin eivätkä välttämättä edusta lopullista toteutusta.
Kulkuyhteydet
Metroasema 500 m, Raitiovaunupysäkki 200 m, Bussipysäkki 300 m, Juna-asema 600 m, Lentoasema 20 km
Vapautuu
Heti
Rakennusvuosi
1899
Kerros
6 / 6
Energiatehokkuusluokka
E
Näkyvällä paikalla
Hissi
Ota yhteyttä
ScanReal Oy LKV
Opus Business Park
Hitsaajankatu 24
00810 Helsinki
info@scanreal.fi
Puh:
Näytä puhelinnumero
020 730 8830
Sopivat toimitilat yhdellä otolla!
Kartoitamme toimitilatarpeesi ja etsimme yrityksellesi parhaiten sopivat vapaat toimitilat. Koska vuokranantajat maksavat palvelumme, on tämä yrityksellesi veloituksetonta.
OTA YHTEYTTÄ - SOVI NÄYTTÖ!
Kaikki kohteemme eivät ole netissä, kerro tilatarpeesi niin kartoitamme vaihtoehdot.
Palvelumme on tilanhakijalle ilmainen
Pyydä lisätietoa
