Vuokrataan tuotantotilat, varastotilat - Masku
Isosuontie 18, 21250 Masku #10817453
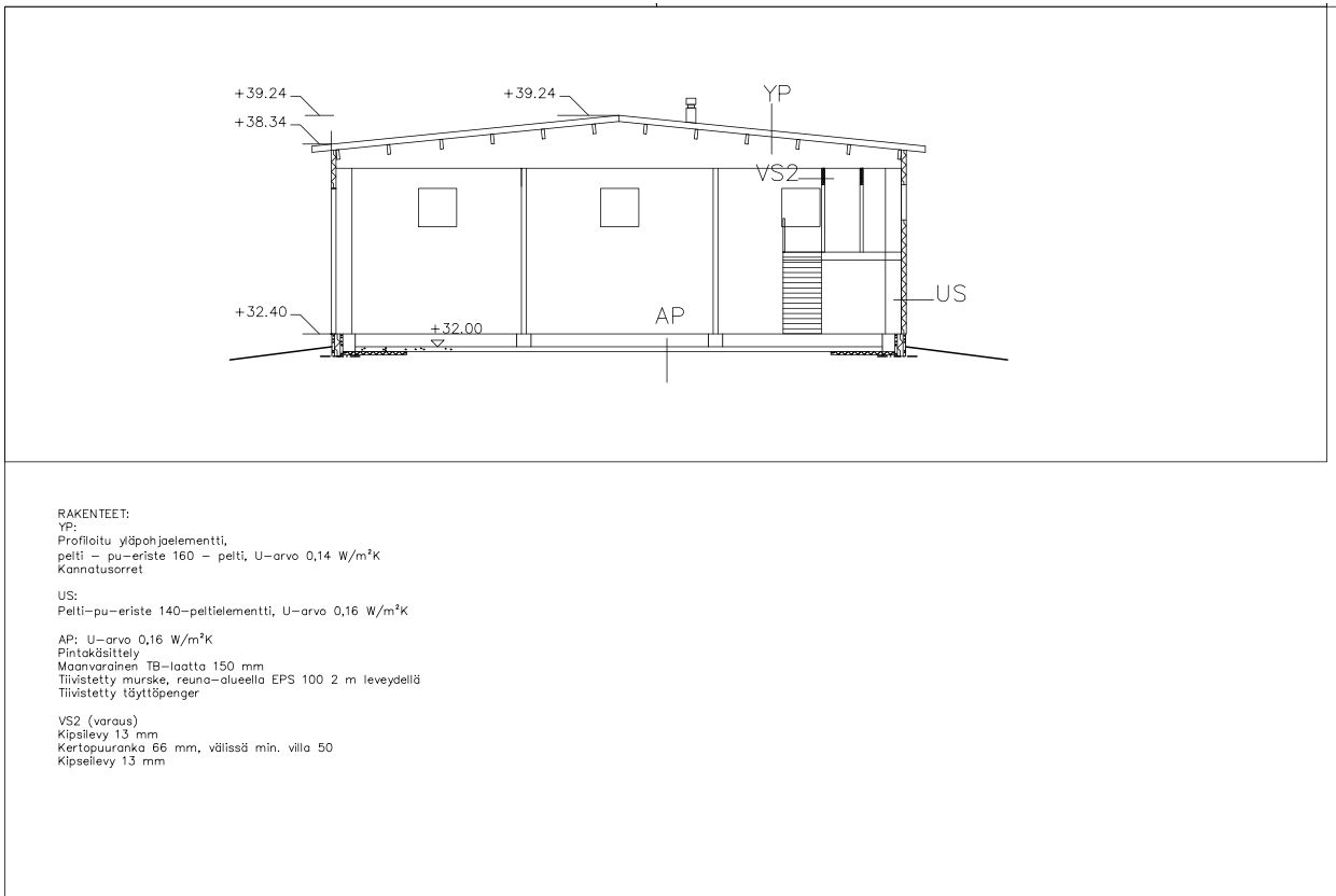
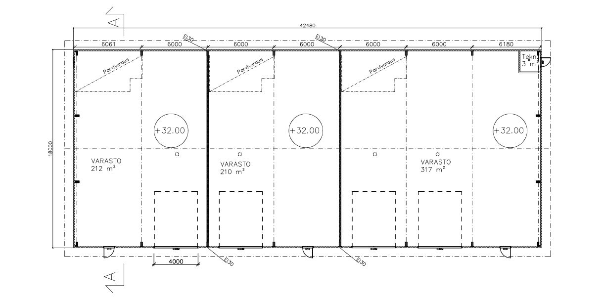
Uutta, elokuussa 2025 valmistunutta hallitilaa Maskun ja Raision rajalla. Rakennuksen pinta-ala on 760 m², joka on jaettavissa kolmeen osaan (noin 200 m2 ja 300 m2 hallit). Hallin huoneistoala on 748 m2.
Hallin sisäkorkeus on 6 metriä. Hallissa on 4 metriä leveät 5 metriä korkeat sähkökäyttöiset nosto-ovet. Lämmitysmuotona on maalämpö lattialämmityksellä, ja lattiakaivot on varustettu öljynerotuksella. Tiloissa on varaus parvirakentamiselle.
Kiinteistö sijaitsee Kustavintien ja Isosuontien risteyksessä lähellä Rauman valtatietä (E8). Iso ja kovapohjainen piha soveltuu hyvin raskaalle kalustolle. Viereinen noin 1 hehtaarin tontti on mahdollista vuokrata vaikka kaluston säilytykseen. Vuokrattavana olevan hallin edustallakin on hyvin tilaa kalustolle.
Vuokra 7,50 - 8,00 €/m2 riippuen vuokrattavasta pinta-alasta. Vuokra sisältää lämmityksen. Sähkö, vesi ja alv lisätään vuokraan.
Kuvista puuttuu vielä tiloja jakavat seinät.
Halli osto on myös mahdollista.
Uudiskohde
RHG Real Estate
Hämeenkatu 2 B20, 20500 Turku
Juho Viljanen
LKV
Näytä puhelinnumero
040 741 7522
