Vuokrataan toimistotilat - Espoo
Miestentie 3, Otaniemi, 02150 Espoo #10817146
Entinen opetustila on siistiksi saneerattu ja sopii loistavasti toimistokäyttöön.
Osoite
Miestentie 3, 02150 Espoo
Tilatyyppi
Toimistotilaa
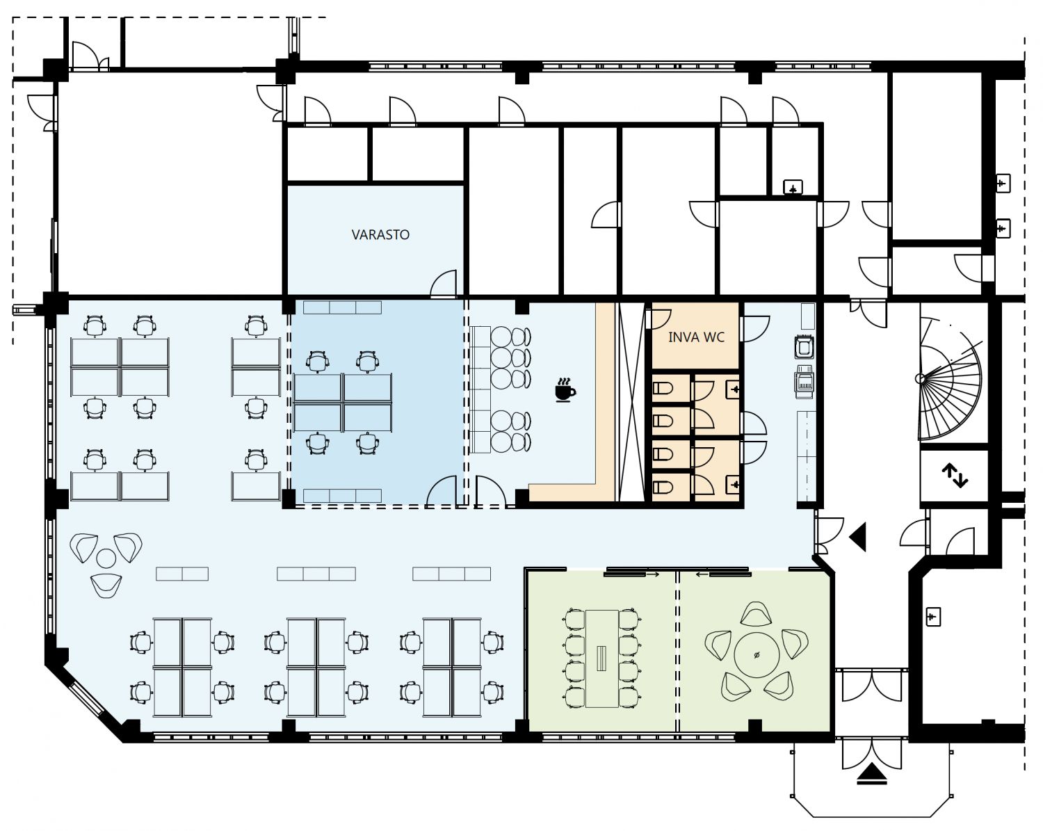
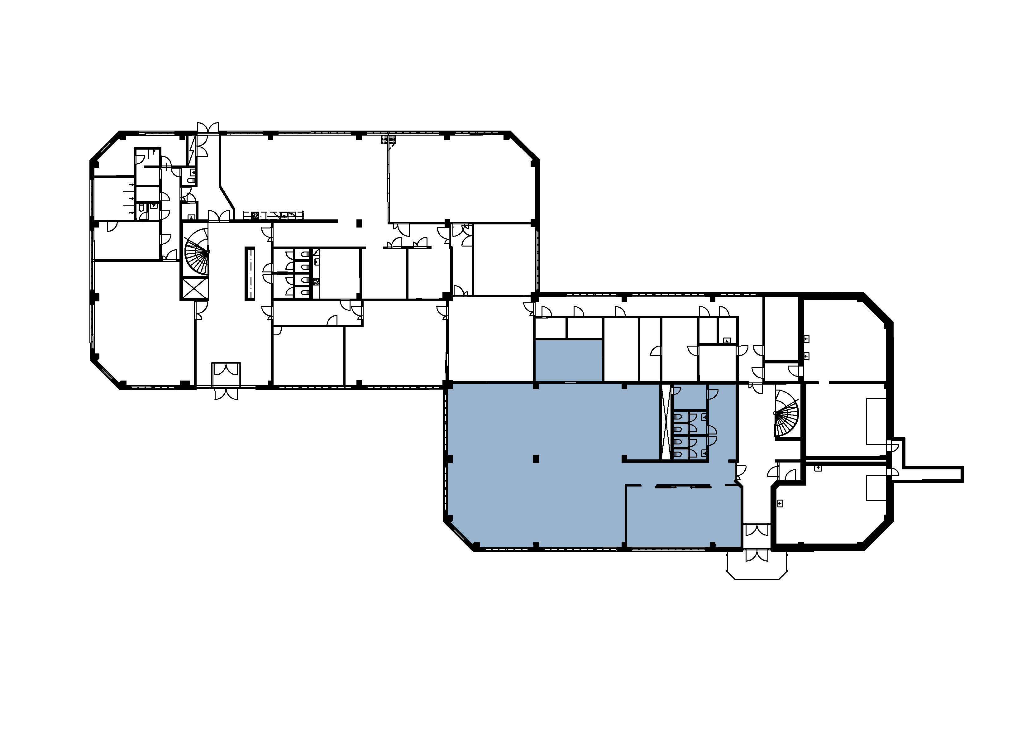
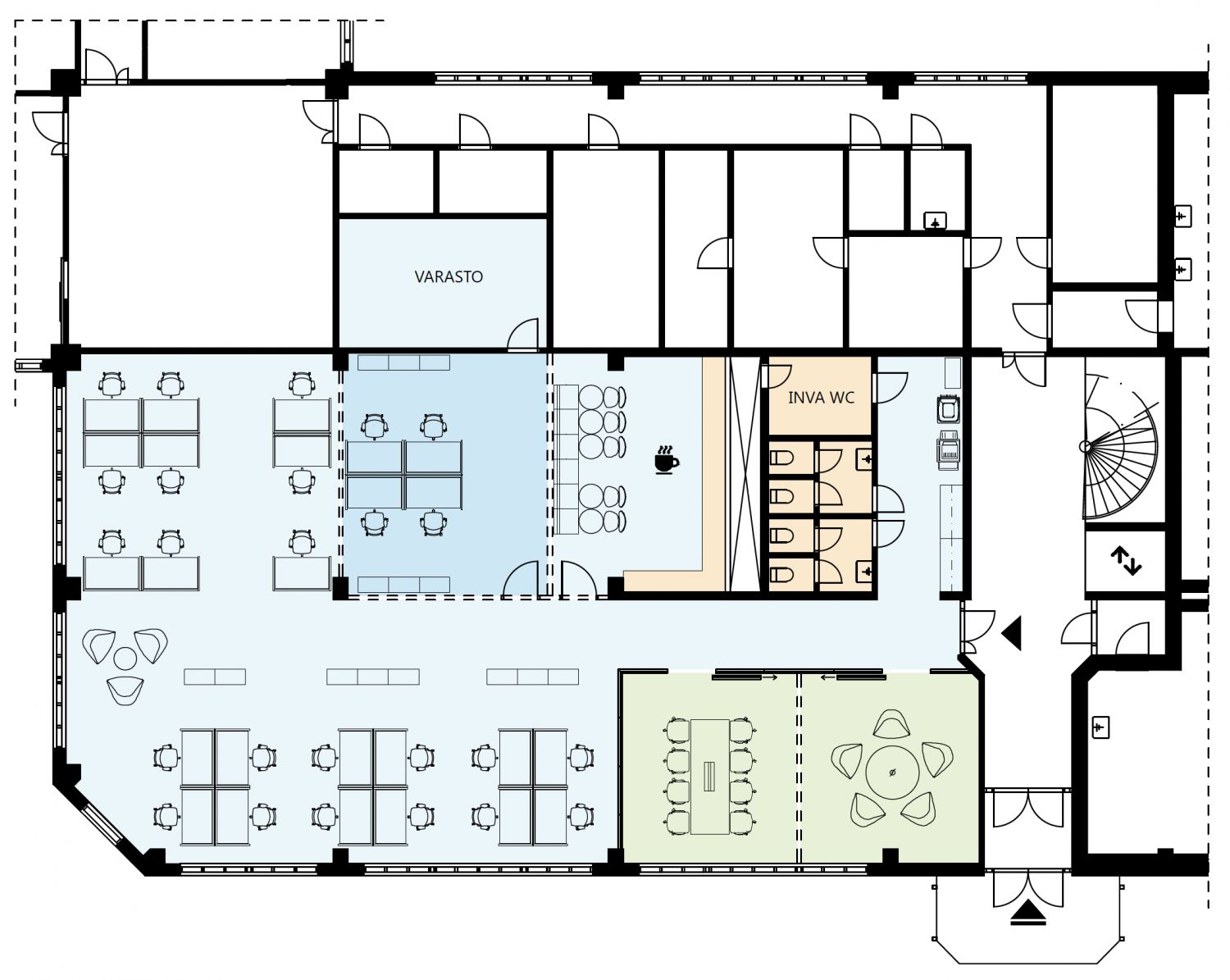
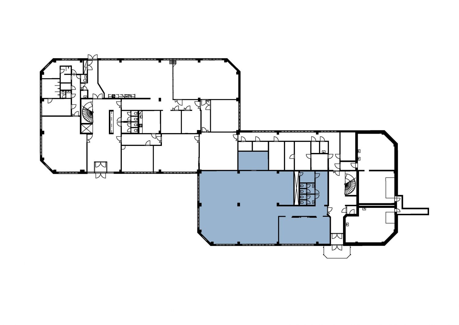
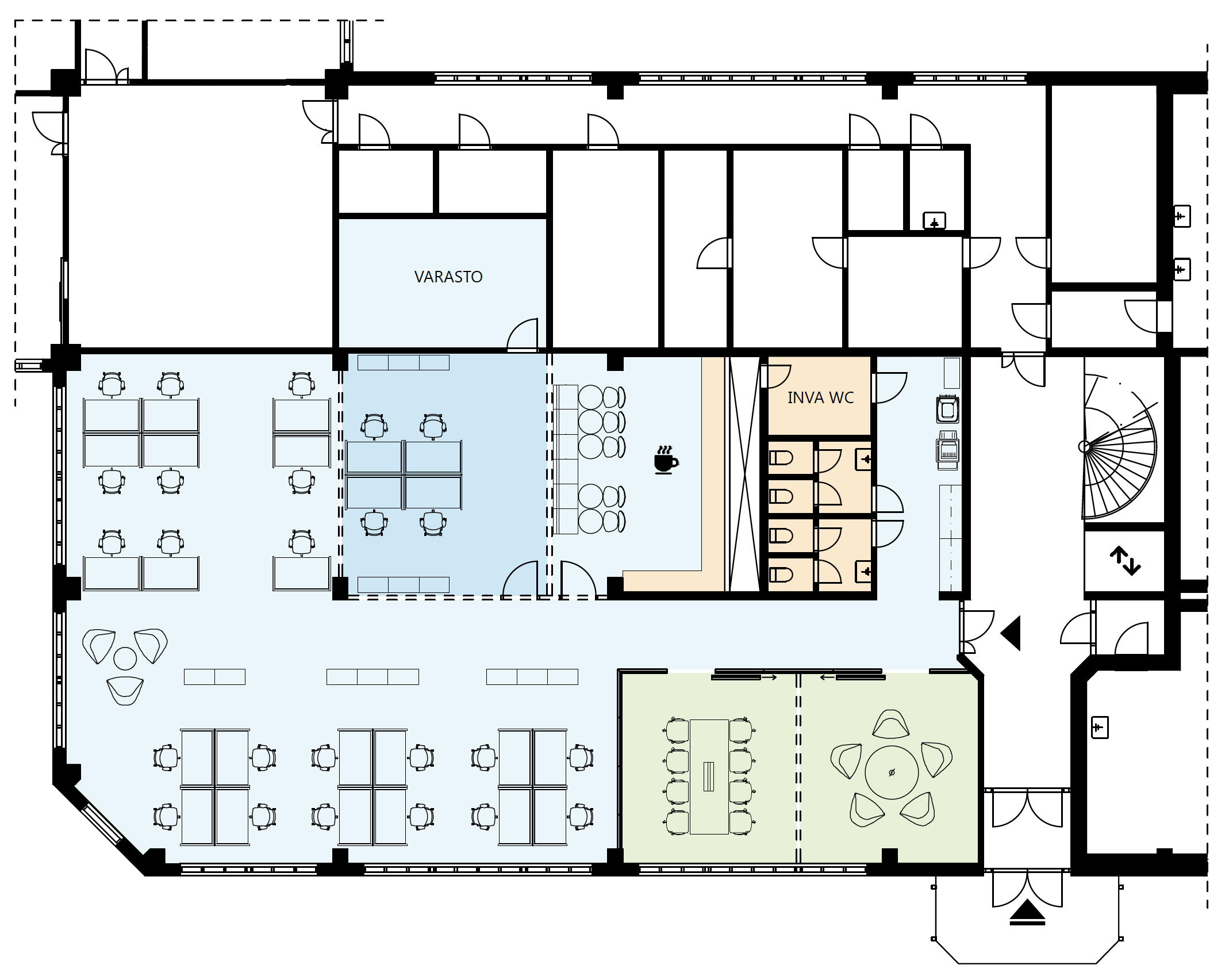
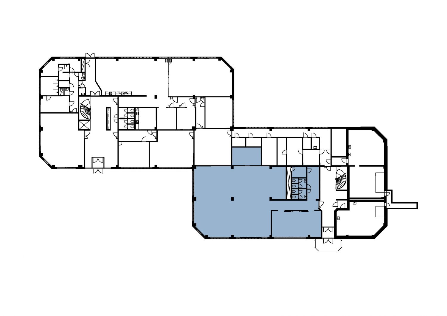
332 m2
Pohjapiirros
Kiinteistö
Otaniemen yliopistomiljöön ja Keilaniemen yrityskeskittymän dynaaminen ilmapiiri ympäröi tätä kiinteistöä.
Kiinteistö on saneerattu vuosina 2012–2013. Toimitilat muuntautuvat helposti yritysten tarpeiden mukaan. Avaraan tilaan voi rakentaa toimistohuoneita tai hyödyntää sitä koulutus- tai avokonttoritilana. Kiinteistön jäähdytysjärjestelmä lisää työskentelyn mukavuutta kesähelteillä. Etelä-Espoossa sijaitseva kiinteistö on loistavien kulkuyhteyksien varrella Kehä I:n vieressä. Keilaniemen metroasemalle on noin 300 metriä ja linja-autot sekä Raide-Jokeri liikennöivät läheltä. Parkkitilaa on pihalla runsaasti. Alle viidensadan metrin päässä aaltoileva meri lisää alueen viihtyisyyttä.
Kiinteistölle on myönnetty BREEAM In-Use Excellent -tason ympäristösertifikaatti. BREEAM (Building Research Establishment Environmental Assessment Method) on kansainvälinen rakennusten ympäristöluokitusjärjestelmä, joka tähtää rakennuksen käytön ympäristövaikutusten vähentämiseen sekä terveellisempien työympäristöjen kehittämiseen.
Kiinteistö on saneerattu vuosina 2012–2013. Toimitilat muuntautuvat helposti yritysten tarpeiden mukaan. Avaraan tilaan voi rakentaa toimistohuoneita tai hyödyntää sitä koulutus- tai avokonttoritilana. Kiinteistön jäähdytysjärjestelmä lisää työskentelyn mukavuutta kesähelteillä. Etelä-Espoossa sijaitseva kiinteistö on loistavien kulkuyhteyksien varrella Kehä I:n vieressä. Keilaniemen metroasemalle on noin 300 metriä ja linja-autot sekä Raide-Jokeri liikennöivät läheltä. Parkkitilaa on pihalla runsaasti. Alle viidensadan metrin päässä aaltoileva meri lisää alueen viihtyisyyttä.
Kiinteistölle on myönnetty BREEAM In-Use Excellent -tason ympäristösertifikaatti. BREEAM (Building Research Establishment Environmental Assessment Method) on kansainvälinen rakennusten ympäristöluokitusjärjestelmä, joka tähtää rakennuksen käytön ympäristövaikutusten vähentämiseen sekä terveellisempien työympäristöjen kehittämiseen.
Sijainti
Otaniemessä sijaitseva kiinteistö on loistavien kulkuyhteyksien päässä aivan Kehä I:n vieressä. Keilaniemen metroasema on 300 metrin päässä ja linja-autot sekä Raide-Jokeri liikennöivät läheltä. Lisäksi puistomaisessa miljöössä on mukava taittaa työmatkaa polkupyörällä.
Pysäköinti
Kiinteistön pihalta on vuokrattavissa autopaikkoja
Palvelut
Otaniemen ja Tapiolan palvelut ovat kävelyetäisyydellä.
Kulkuyhteydet
Lähimmälle bussipysäkille 550 m
Lähimmälle metroasemalle 300 m
Lentokentälle 25 min
Lähimmälle metroasemalle 300 m
Lentokentälle 25 min
Vapautuu
Kysy
Rakennusvuosi
1984
Kerros
1
Energiatehokkuusluokka
C2018
Ympäristöluokitus
BREEAM In-Use Excellent,RESB Global Sector Leader 2025
Ota yhteyttä
Sponda Oy
Yrjönkatu 29C, 00100 Helsinki
Näytä puhelinnumero
020 43131
Anna Puhtila
Senior Manager, Value Add Portfolio
Näytä puhelinnumero
+358 50 407 9601
Sponda Oy
https://www.sponda.fiPyydä lisätietoa
