Vuokrataan toimistotilat - Oulu
Aapistie 1, Oulu, Suomi, Kontinkangas, 90220 Oulu #10817114
Osoite
Aapistie 1, Oulu, Suomi, 90220 Oulu
Tilatyyppi
Toimistotilaa
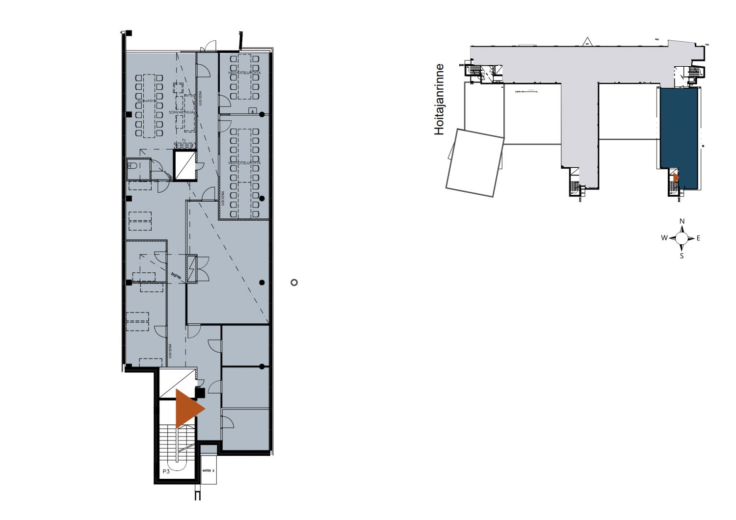
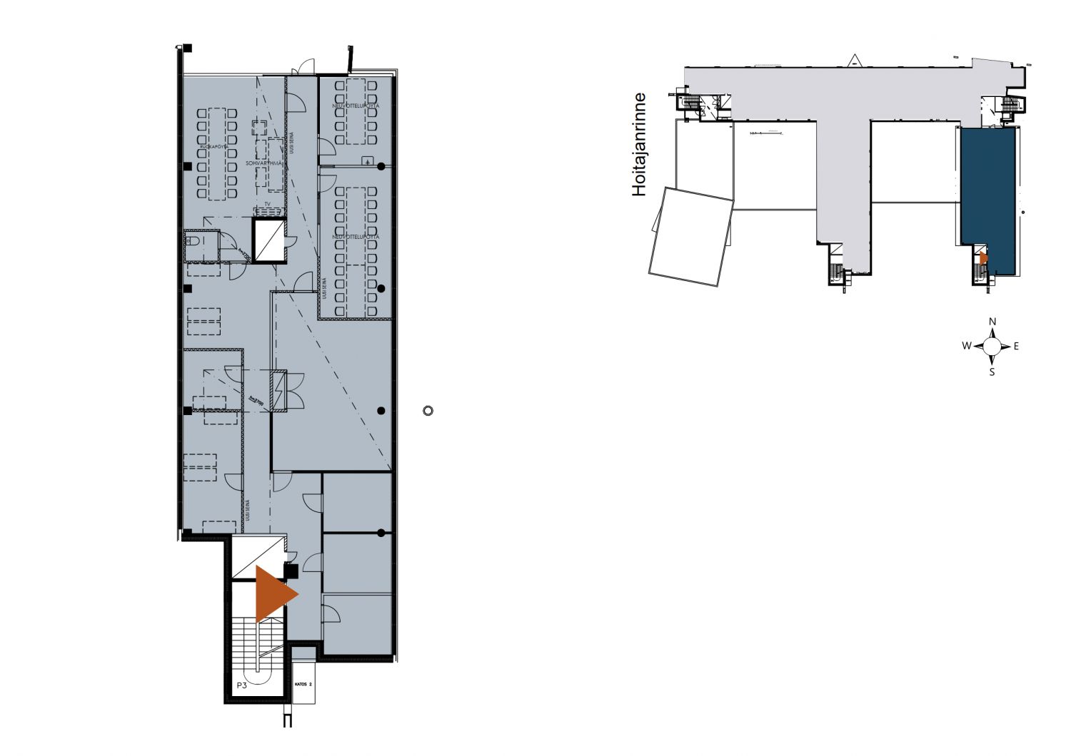
257 m2
Kiinteistö
Kastellin tutkimuskeskus
Ympäristö
Bussipysäkki: 350 m, Lentoasema: 15 km
Pysäköinti
Autopaikkoja vuokrattavissa
Kulkuyhteydet
Valokuitu (jakamossa)
Muuta
Vuokrattavana toimistotila 257 m² – Vapaana 3. kerroksen toimistotila. Tilassa on joustavat muokkausmahdollisuudet.
Kastelli tarjoaa monipuolisia toimisto- ja laboratoriotiloja aivan Oulun yliopistollisen sairaalan kupeesta.
Kiinteistössä on toteutettu kesän 2025 aikana julkisivusaneeraus. Tämän lisäksi kohteen sisätiloja tullaan kehittämään tulevien vuosien aikana. Suunnitelmissa on mm. päivittää kohteen pääaula, ravintolatiloja sekä yhteisiä kokoustiloja vuodesta 2026 alkaen.
Kiinteistön sijainti on keskeinen ja se on helposti saavutettavissa niin julkisen liikenteen avulla kuin myös omalla autolla tai pyöräillen.
Kastelli tarjoaa monipuolisia toimisto- ja laboratoriotiloja aivan Oulun yliopistollisen sairaalan kupeesta.
Kiinteistössä on toteutettu kesän 2025 aikana julkisivusaneeraus. Tämän lisäksi kohteen sisätiloja tullaan kehittämään tulevien vuosien aikana. Suunnitelmissa on mm. päivittää kohteen pääaula, ravintolatiloja sekä yhteisiä kokoustiloja vuodesta 2026 alkaen.
Kiinteistön sijainti on keskeinen ja se on helposti saavutettavissa niin julkisen liikenteen avulla kuin myös omalla autolla tai pyöräillen.
Vapautuu
Kysy
Rakennusvuosi
1993
Kerros
3
Energiatehokkuusluokka
E2013
Ota yhteyttä
LähiTapiola Kiinteistövarainhoito Oy
Anne-Mari Ijäs
Vuokrauspäällikkö
Näytä puhelinnumero
040 415 4137
Pyydä lisätietoa
