Vuokrataan toimistotilat - Helsinki
Pohjoinen Rautatiekatu 25, Kamppi, 00100 Helsinki #10817097
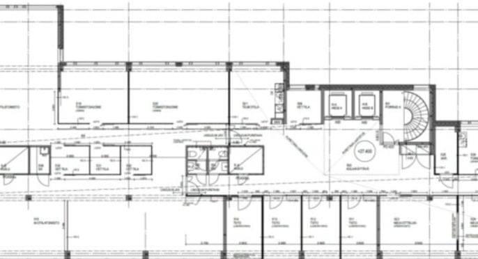
Nyt vuokrattavana moderni ja valoisa toimitila Helsingin keskustassa. Tila tarjoaa monipuolisesti sekä avotyötilaa että eri kokoisia työ- ja neuvotteluhuoneita. Lisäksi käytössä on viihtyisä taukohuone keittiöllä sekä wc-tilat.
Pohjoinen Rautatienkatu 25:ssä (PR25) sijaitsee moderni ja toimiva toimistorakennus, aivan Kampin monipuolisten palveluiden äärellä. Toimistokerrokset ovat tehokkaasti suunniteltuja, selkeitä ja helposti muokattavissa. Kellarikerroksessa vuokralaisia palvelee tilava pyöräkellari pukuhuoneineen, ja sisääntulokerroksessa on vuokralaisten yhteiskäytössä olevat neuvottelu- ja kokoustilat.
Kiinteistö sijaitsee erinomaisella paikalla keskustan monipuolisten palveluiden äärellä. Lisäksi vieressä kulkeva pyöräilyn pääväylä tarjoaa sujuvan ja vaivattoman reitin työmatkapyöräilijöille.
Me Croisettella autamme teitä löytämään teille parhaat tilat! Olemme puolueettomia asiantuntijoita ja tunnemme toimitilamarkkinat, talot sekä tilat vankalla kokemuksella. Meillä on välityksessä kaikki toimitilat ja tiedämme niiden alustavat vuokratasot.
Tehtävämme on tehdä toimitilahaustanne onnistunut ja helppo. Saamme palkkiomme kiinteistönomistajalta, joten sinulle palvelumme on täysin maksuton.
Hissi
Croisette Real Estate Partner
Erottajankatu 5 A 6, 00130 Helsinki
Näytä puhelinnumero
+358 400 585 857
Croisette Vuokraus
Näytä puhelinnumero
+358400585857
