Vuokrataan toimistotilat - Oulu
Idealinja 13, Perävainio, 90410 Oulu #10816967
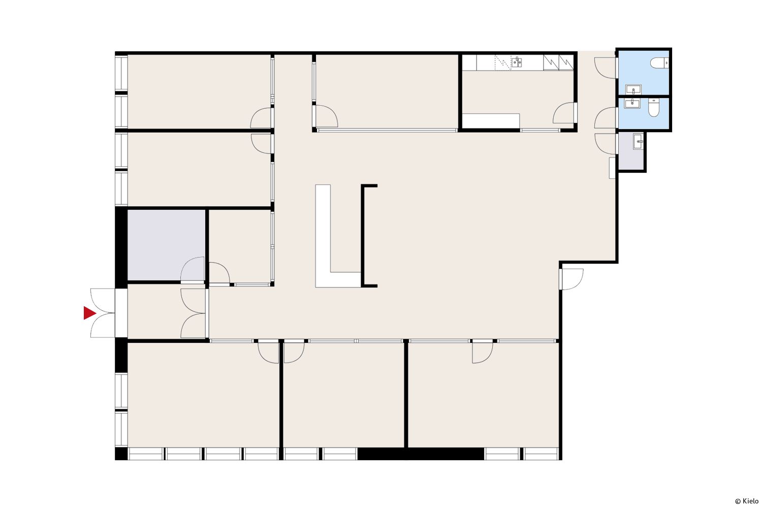
Vuokrattavana valoisa ja toimiva katutason liiketila Ideakulmassa, Oulun Perävainiossa! Tämä 358,5 m² tila tarjoaa erinomaiset puitteet yrityksellesi.
Tilassa on:
• yksittäisiä toimistohuoneita
• avotoimistotilaa
• keittiö
• neuvottelutilat
• wc- ja sosiaalitilat
Tila soveltuu erinomaisesti niin toimisto- kuin liiketilaksi.
Ideakulma on moderni liikekeskus erinomaisella sijainnilla Oulun Perävainiossa, aivan Eteläportin ja Kaakkurin kupeessa. Kiinteistö sijaitsee E8-moottoritien välittömässä läheisyydessä, mikä takaa sujuvat kulkuyhteydet niin Oulun keskustaan kuin lentokentällekin – vain noin 10 minuutin ajomatkan päässä. Julkinen liikenne toimii erinomaisesti, ja kiinteistön vieressä sijaitsevalta bussipysäkiltä on yhteydet sekä Oulun että Kempeleen suuntaan.
Kiinteistössä on runsaasti pysäköintitilaa, mukaan lukien lämpötolpallisia paikkoja. Läheisyydessä sijaitsevat Kaakkurin ostoskeskus ja Liikekeskus Zeppelin tarjoavat monipuoliset palvelut ja lounasvaihtoehdot. Ideakulma on suunniteltu palvelemaan nykyaikaisia yrityksiä, ja sen tilat soveltuvat erinomaisesti toimisto-, liiketila- tai tuotantokäyttöön. Asiakasvirta on taattu alueen monipuolisen yrityskentän ansiosta.
Katutasossa
Kielo
Saija Ylinen
Näytä puhelinnumero
046 875 2828
Tarjoamme toimi-, kokous- ja saunatiloja niin isoille kuin pienillekin yrityksille!
https://kielotoimitilat.fi/