Vuokrataan toimistotilat - Helsinki
Ratakatu 1 b, Keskusta, 00120 Helsinki #10816287
Rakennuksen kuvaus:
Kulttuurillisesti merkittävä Glorian rakennus sijaitsee arvostetun Kaartinkaupungin alueella. Suuri kiinteistö yltää Pieni Roobertinkadun puolelta, jossa Glorian teatteri sijaitse, aina Ratakadulle saakka, Yrjönkadun ja Ratakadun risteykseen. Kohteessa on aloitettu laaja saneeraus vuonna 2023, joka valmistuu 2025 ja kohde pääsee uuteen loistoon. Tilat modernisoidaan nykyaikan tarpeisiin, säästellen sen oma henki ja tunnelma. Uudet toimistot saavuttavat luksus-tason korkeine huoneineen ja isoine ikkunoineen.
Tilan kuvaus:
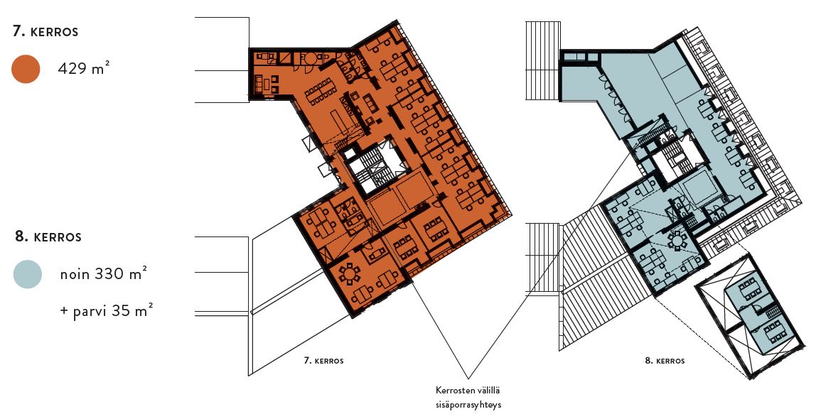
Kaksi talon ylintä kerrosta sekä pieni parvikerros vuokrataan yhtenä upeana kokonaisuutena. Kahdeksannessa kerroksessa on vuokralaisen oma terassi ja persoonallisen lisän tuo noin 35 m2 kokoinen parvi, johon tehtävissä esimerkiksi neuvotteluhuoneita. Korkea huonekorkeus ja kaari-ikkunat tekevät tiloista näyttävät. Saneeratuissa tiloissa on moderni tekniikka ja viihtyisät työskentelyolosuhteet. Tiloista on katunäkymin lisäksi näkymät talon atrium-sisäpihalle, josta saneerauksen yhteydessä tehdään vehreä oleskelualue vuokralaisille. Ainutlaatuinen kohde, jonka sisätilojen laatu ja tilojen hurmaavuus yllättää. Kerrokset 7-8 valmistuvat arviolta vuoden vaihteessa 2025-26.
Kerros: 7-8, parvi
