Vuokrataan toimistotilat - Helsinki
Salmisaarenaukio 1, Ruoholahti, keskusta, 00180 Helsinki #10815861
Rakennuksen kuvaus:
Tästä Ruoholahdessa sijaitsevasta vuonna 2007 valmistuneesta toimistotalosta on hienot merinäköalat. Yhteispalveluja ovat ravintola, koulutuskeskus, sekä vastaanottopalvelut. Atrium-aulasta, ravintolasta ja toimistotiloista näkymät mereen laskeutuviin portaisiin ja pienvenesatamaan, sekä ilta-aurinkoon. Edustava toimistotalo vaativille asiakkaille, tilaratkaisut toteutetaan asiakkaan ehdoilla. Liikenneyhteydet autolla mainiot ja alueella ja kiinteistöllä on runsaasti parkkipaikkoja.
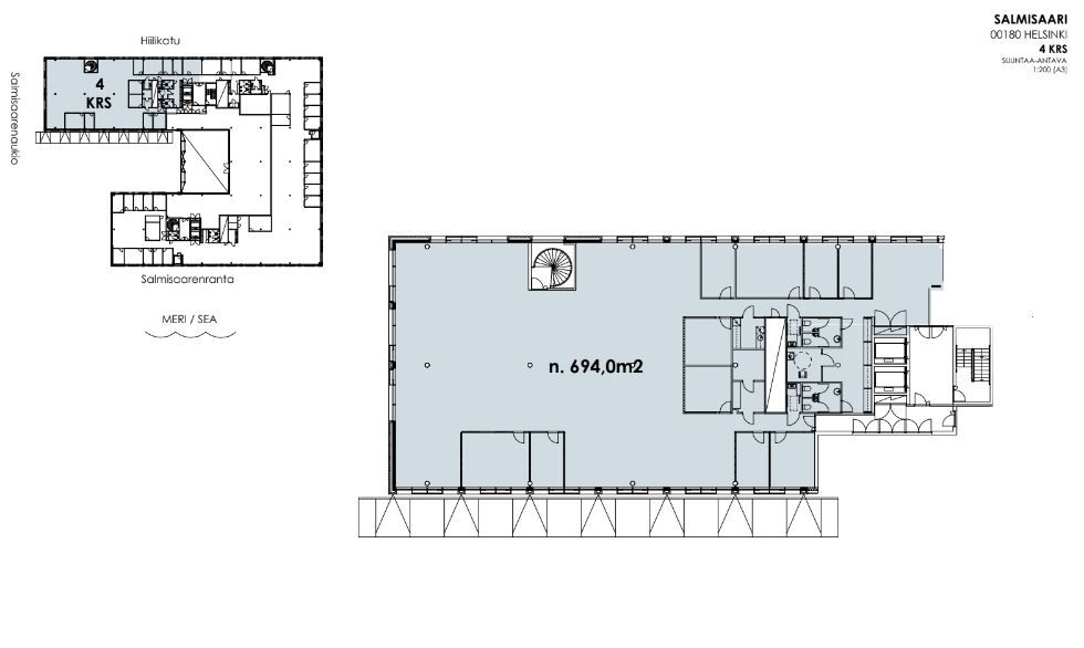
Tilan kuvaus:
Vuokrattavana koko 4. kerros, yhteensä 2123m2, jota jaettavissa erilaisia tilakokonaisuuksia vuokralaisten tarpeiden mukaan. Jaettavissa mm. 706m2 viihtyisä toimisto. Talon suuri kerroskoko mahdollistaa suuremmankin yrityksen istuttamisen yhteen tasoon ja tilojen joustavan jakamisen. Kyseinen vapaa tila tila on nykymuodossaankin muuttovalmis, mutta tarpeen tullen muokattavissa uudelle vuokralaiselle. Pintamateriaalit ovat laadukkaat, talossa on tavallista suurempi huonekorkeus ja moderni tekniikka takaa viihtyvyyden. Tilasta avautuu upea merimaisema.
Kerros: 4
